The Ridgeway, North Harrow, Harrow, HA2
By Christopher Edwards
£ 315,000
Reviews
3 out of 5 stars
Christopher Edwards says ..
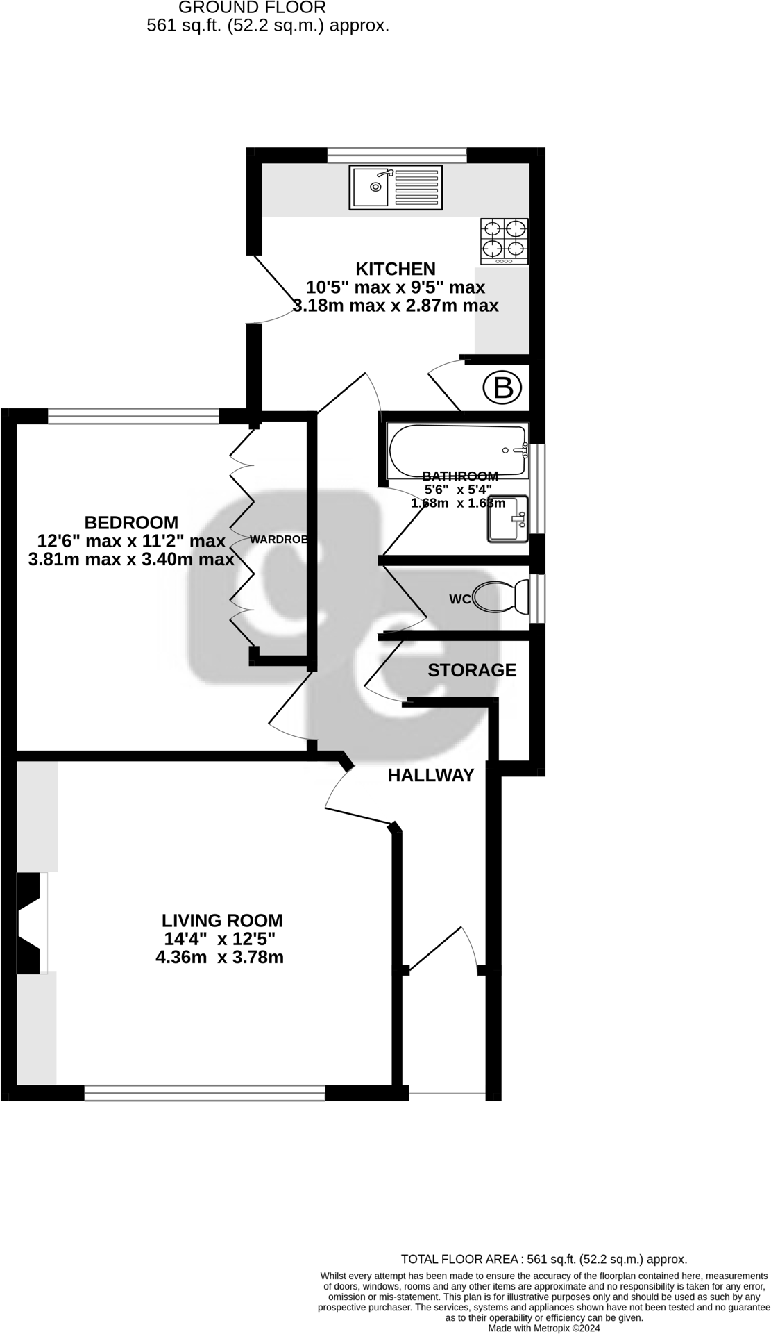
** NO ONWARD CHAIN ** A spacious one bedroom ground floor purpose built maisonette conveniently located close to shopping facilities, sought after schools, North Harrow Metropolitan line station, Rayners Lane Metropolitan/Piccadilly Line station and other transport links. The accommodation bri...
Property Oracle says ..
This one-bedroom maisonette located on The Ridgeway, North Harrow, presents a mixed bag of features. Its strong points are its location within close proximity to sought-after schools and excellent transport links via the North Harrow Metropolitan line station. The listing boasts a convenient location for access to shopping facilities. However, the property’s condition shows its age, with dated decor and likely requiring some refurbishment in the kitchen and bathroom. The garden space is small, but manageable. The provided photos offer a reasonable view of the internal and external space, illustrating a property that is clean and tidy. While the listed price of £315,000 appears reasonable based on location and transport connectivity, a more precise evaluation would require information on the total square footage of the property and direct comparisons with recently sold properties on The Ridgeway. A prospective buyer should be prepared for some potential renovation costs, but the excellent transport links and proximity to good schools offset this factor to some degree. The age and style of the property is suggestive of a 1950s or 1960s build, which will impact the costs of both renovation and potential modernisation work.
Therefore, we give this property 6 / 10. *Disclaimer: This is our option and does constitute a recommendation or financial advice. Do your own research. *
- Price
- 7
- Condition
- 6
- Location
- 7
- Land
- 4
- Bedrooms
- 1
- Bathrooms
- 1
- Sqft (est)
- 561.88
The heatmap indicates the level of crime in the area. The color of the heatmap indicates the crime severity and recency.
Metrics Year-on-Year
- Average area value
- 341,429.00 £Increased by 9.95 %
- Est sale value
- 175,868.44 £Decreased by 25.65 %
- Average area rental value
- 875.00 £/moDecreased by 18.53 %
- Est letting value
- 0.00 £/moDecreased by 100.00 %
- Est rental Yield
- 3.08 %Decreased by 25.78 %
- Crime Rate
- 0.00 %
Agent Activity
Christopher Edwards marked this listing as sold.
Christopher Edwards created the listing.
Nearby Schools
| Name | Type | Ofsted | Distance |
|---|---|---|---|
| Grange | Children's Centre Linked Site | 0.70 KM | |
| Regent Independent College | Other Independent School | 0.77 KM | |
| Vaughan Primary School | Community School | Outstanding | 0.80 KM |
| Grange Primary School | Community School | Requires improvement | 0.83 KM |
| Longfield Primary School | Community School | Good | 0.87 KM |
Images
Nearby Streets
| Name | Average Price | Average Sqft | Distance |
|---|---|---|---|
| Argyle Road | £ 0 | 0 | 0.00 KM |
| Station Road | £ 173,750 | 0 | 0.00 KM |
| Farm Avenue | £ 775,000 | 0 | 0.00 KM |
| Dukes Avenue | £ 642,500 | 0 | 0.00 KM |
| The Arches | £ 400,000 | 0 | 0.00 KM |
Nearby Transport
| Name | NLC | TLC | Distance |
|---|---|---|---|
| Northolt Park | 1478 | NLT | 2.41 KM |
| Headstone Lane | 1434 | HDL | 2.68 KM |
| Harrow-On-The-Hill | 598 | HOH | 2.74 KM |
| Harrow And Wealdstone | 1397 | HRW | 3.36 KM |
| Hatch End | 1398 | HTE | 3.46 KM |
Nearby Listings
| Address | Price | Type | Score | Distance |
|---|---|---|---|---|
| The Ridgeway, North Harrow, Harrow, HA2 | £ 315,000 | BUY | 6 / 10 | 0.00 KM |
| Harrow, Greater London, HA2 | £ 550,000 | BUY | 5 / 10 | 0.16 KM |
| Fernbrook Drive, North Harrow | £ 560,000 | BUY | Unknown | 0.17 KM |
| Harrow, Greater London, HA2 | £ 590,000 | BUY | Unknown | 0.17 KM |
| Elm Drive, North Harrow, HA2 | £ 860,000 | BUY | 7 / 10 | 0.17 KM |
Nearby Properties
| Address | Price | Distance |
|---|---|---|
| 230 The Ridgeway | £ 95,000 | 0.04 KM |
| 218 The Ridgeway | £ 305,000 | 0.04 KM |
| 202 The Ridgeway | £ 310,000 | 0.04 KM |
| 190 The Ridgeway | £ 338,000 | 0.04 KM |
| 206 The Ridgeway | £ 83,000 | 0.04 KM |