Spencer Harvey says ..
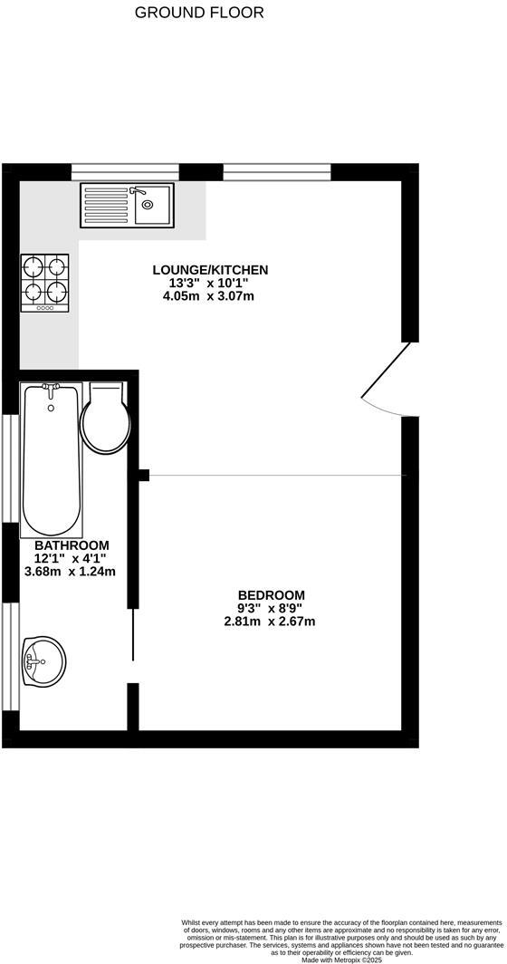
Part Furnished Studio Apartment – Audenshaw Located in a lovely, quiet cul-de-sac, this well-presented first floor studio apartment offers a cosy and convenient home, perfect for those seeking low-maintenance living. The property is offered part furnished and includes a kitchen ...
Property Oracle says ..
This is a one-bedroom flat in Audenshaw, Greater Manchester. The property is in a fair condition but would benefit from some modernisation. The flat is located close to local schools and amenities, and it offers some outdoor space. The asking price of £75,000 is significantly below the average for the area, making it an attractive opportunity for first-time buyers or investors. The property is a short distance from the Audenshaw Railway Cycle Path.
Therefore, we give this property 5 / 10. *Disclaimer: This is our option and does constitute a recommendation or financial advice. Do your own research. *
- Price
- 8
- Condition
- 5
- Location
- 6
- Land
- 3
- Bedrooms
- 1
- Bathrooms
- 1
- Sqft (est)
- 263.61
The heatmap indicates the level of crime in the area. The color of the heatmap indicates the crime severity and recency.
Metrics Year-on-Year
- Average area value
- 293,750.00 £Increased by 18.36 %
- Est sale value
- 100,435.41 £Increased by 35.59 %
- Average area rental value
- 1,299.00 £/moIncreased by 7.27 %
- Est letting value
- 263.61 £/moUnchanged by 0.00 %
- Est rental Yield
- 5.31 %Decreased by 9.39 %
- Crime Rate
- 0.00 %
Agent Activity
Spencer Harvey created the listing.
Nearby Schools
| Name | Type | Ofsted | Distance |
|---|---|---|---|
| Hawthorns School | Academy Special Converter | Outstanding | 0.25 KM |
| Aldwyn Primary School | Community School | Good | 0.30 KM |
| Moorside Primary School | Academy Converter | Good | 1.16 KM |
| Laurus Ryecroft | Free Schools | 1.21 KM | |
| Audenshaw Primary School | Community School | Good | 1.22 KM |
Images
Nearby Streets
| Name | Average Price | Average Sqft | Distance |
|---|---|---|---|
| Pipit Close | £ 349,950 | 0 | 0.00 KM |
| Kempton Close | £ 0 | 0 | 0.00 KM |
| Hawthorn Road | £ 0 | 0 | 0.00 KM |
| Park View | £ 0 | 0 | 0.00 KM |
| Audenshaw Railway Cycle Path | £ 0 | 0 | 0.00 KM |
Nearby Transport
| Name | NLC | TLC | Distance |
|---|---|---|---|
| Fairfield | 2780 | FRF | 2.05 KM |
| Guide Bridge | 2955 | GUI | 2.10 KM |
| Denton | 2855 | DTN | 2.84 KM |
| Gorton | 2962 | GTO | 4.17 KM |
| Ashton-Under-Lyne | 2790 | AHN | 4.18 KM |
Nearby Listings
| Address | Price | Type | Score | Distance |
|---|---|---|---|---|
| Heron Drive, Audenshaw | £ 75,000 | BUY | 5 / 10 | 0.00 KM |
| Heron Drive, Manchester, M34 | £ 235,000 | BUY | 7 / 10 | 0.08 KM |
| Kingfisher Avenue, Audenshaw, Manchester, M34 | £ 210,000 | BUY | 7 / 10 | 0.20 KM |
| Linnet Close, Audenshaw, M34 | £ 240,000 | BUY | Unknown | 0.21 KM |
| Linnet Close, Audenshaw, M34 | £ 470,000 | BUY | 7 / 10 | 0.21 KM |
Nearby Properties
| Address | Price | Distance |
|---|---|---|
| 72 Heron Drive | £ 105,000 | 0.08 KM |
| 35 Heron Drive | £ 65,000 | 0.08 KM |
| 19 Heron Drive | £ 210,000 | 0.08 KM |
| 12 Heron Drive | £ 112,000 | 0.08 KM |
| 21 Heron Drive | £ 105,000 | 0.08 KM |