Tern Drive, St. Ives, Cambridgeshire, PE27
By WellingtonWise
£ 385,000
Reviews
3 out of 5 stars
WellingtonWise says ..
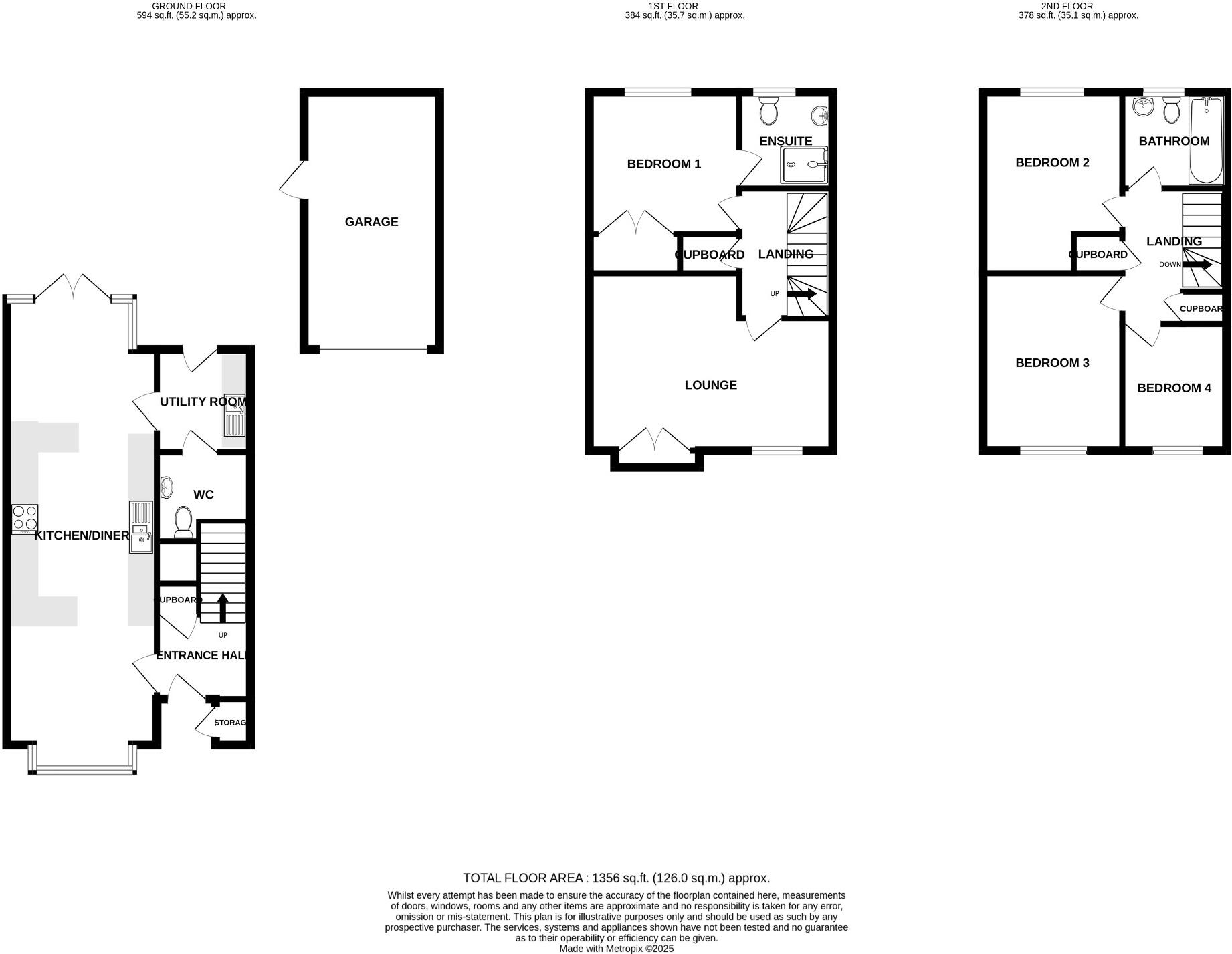
Rarely available three storey, four bedroom semi detached town house with spacious open plan kitchen/dining/family room, single garage, driveway and easy access to Cambridge and London. This generous home is located a short walk from St Ives town centre and close to Hemingford Grey village school
Property Oracle says ..
This is a modern semi-detached property located in a residential area of St. Ives, Cambridgeshire. The house offers four bedrooms and two bathrooms, making it suitable for families. The interior appears to be well-maintained, with a modern kitchen and bathrooms. The property benefits from a garden and is located within a reasonable distance of local schools. The asking price seems fair considering the property’s size, condition, and location. The proximity to local schools and amenities makes it an attractive option for families. The property is modern and doesn’t appear to need any immediate renovation work.
Therefore, we give this property 7 / 10. *Disclaimer: This is our option and does constitute a recommendation or financial advice. Do your own research. *
- Price
- 7
- Condition
- 8
- Location
- 7
- Land
- 6
- Bedrooms
- 4
- Bathrooms
- 2
- Sqft (est)
- 1,356.00
The heatmap indicates the level of crime in the area. The color of the heatmap indicates the crime severity and recency.
Metrics Year-on-Year
- Average area value
- 517,487.00 £Increased by 49.82 %
- Est sale value
- 558,672.00 £Decreased by 1.90 %
- Average area rental value
- 1,446.00 £/moIncreased by 13.06 %
- Est letting value
- 1,356.00 £/moUnchanged by 0.00 %
- Est rental Yield
- 3.35 %Decreased by 24.55 %
- Crime Rate
- 28.00 %Unchanged by 0.00 %
Agent Activity
WellingtonWise created the listing.
Nearby Schools
| Name | Type | Ofsted | Distance |
|---|---|---|---|
| Hemingford Grey Primary School | Community School | Good | 1.39 KM |
| St Ivo Academy | Academy Converter | Good | 1.95 KM |
| St Ives Child And Family Zone | Children's Centre | 2.00 KM | |
| Westfield Junior School | Community School | Good | 2.06 KM |
| Eastfield Infant And Nursery School | Community School | Good | 2.17 KM |
Images
Nearby Streets
| Name | Average Price | Average Sqft | Distance |
|---|---|---|---|
| Steppingstones | £ 325,000 | 0 | 0.00 KM |
| Bridge Street | £ 0 | 0 | 0.00 KM |
| A1307 | £ 400,000 | 0 | 0.00 KM |
| Market Lane | £ 0 | 0 | 0.00 KM |
| Alexandra Court | £ 0 | 0 | 0.00 KM |
Nearby Listings
| Address | Price | Type | Score | Distance |
|---|---|---|---|---|
| Tern Drive, St. Ives, Cambridgeshire, PE27 | £ 385,000 | BUY | 7 / 10 | 0.00 KM |
| The Old Mill, London Road, St Ives, Cambridgeshire, PE27 | £ 300,000 | BUY | 5 / 10 | 0.05 KM |
| St. Ives, Cambridgeshire, PE27 | £ 395,000 | BUY | Unknown | 0.06 KM |
| Wren Close, St. Ives, Cambridgeshire, PE27 5DW | £ 280,000 | BUY | Unknown | 0.06 KM |
| Wren Close, St. Ives | £ 108,000 | BUY | 7 / 10 | 0.07 KM |
Nearby Properties
| Address | Price | Distance |
|---|---|---|
| 18 Wren Close | £ 370,000 | 0.10 KM |
| 35 Wren Close | £ 328,000 | 0.11 KM |
| 26 Wren Close | £ 305,000 | 0.11 KM |
| 6 Wren Close | £ 257,500 | 0.11 KM |
| 5 Wren Close | £ 270,000 | 0.11 KM |