Foster Street, Maidstone, Kent, ME15
By Higgins Drysdale National Property Auctions
£ 497,000
Reviews
3 out of 5 stars
Higgins Drysdale National Property Auctions says ..
An Exceptional Terraced House on Foster Street, Maidstone - Perfect for HMO or Investment
Property Oracle says ..
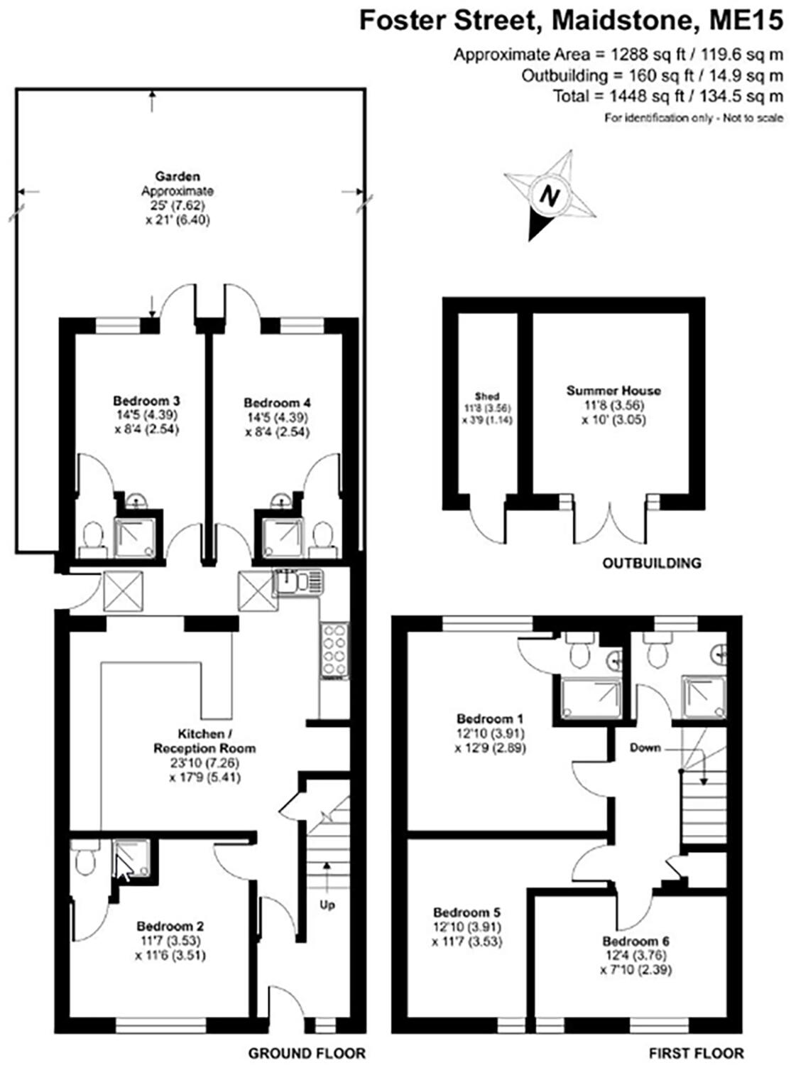
This property is a 6-bedroom, 5-bathroom terraced house located on Foster Street in Maidstone, Kent. The list price is £497,000, and the property has a plot size of 1,448 sqft and a total area of 1,868.32 sqft. The average price for similar properties in the area is £354,953, with an average price per sqft of £486. This property is significantly larger than the average, and therefore the price per sqft is lower than average. The property appears to have undergone recent renovations, as evidenced by the modern kitchen and bathrooms shown in the photos. The property also benefits from a garden and a rainwater recycle system. The location is convenient, with several train stations within a kilometer and several schools nearby. While the property is in good condition, the overall value for money is subjective and depends on individual buyer preferences.
Therefore, we give this property 7 / 10. *Disclaimer: This is our option and does constitute a recommendation or financial advice. Do your own research. *
- Price
- 7
- Condition
- 9
- Location
- 8
- Land
- 7
- Bedrooms
- 6
- Bathrooms
- 5
- Sqft (est)
- 1,868.32
- Lot (est)
- 1,448.00
The heatmap indicates the level of crime in the area. The color of the heatmap indicates the crime severity and recency.
Metrics Year-on-Year
- Average area value
- 457,500.00 £Increased by 10.94 %
- Est sale value
- 1,132,201.92 £Increased by 21.93 %
- Average area rental value
- 1,891.00 £/moIncreased by 26.91 %
- Est letting value
- 3,736.64 £/moIncreased by 100.00 %
- Est rental Yield
- 4.96 %Increased by 14.29 %
- Crime Rate
- 25.00 %Unchanged by 0.00 %
Agent Activity
Higgins Drysdale National Property Auctions created the listing.
Nearby Schools
| Name | Type | Ofsted | Distance |
|---|---|---|---|
| Sunshine Children'S Centre | Children's Centre | 0.67 KM | |
| South Borough Primary School | Academy Converter | Good | 0.69 KM |
| Mepa Academy Limited | Other Independent School | 0.69 KM | |
| Maidstone Grammar School | Foundation School | Good | 0.85 KM |
| Archbishop Courtenay Primary School | Academy Sponsor Led | Requires improvement | 1.01 KM |
Images
Nearby Streets
| Name | Average Price | Average Sqft | Distance |
|---|---|---|---|
| Mote Road | £ 0 | 0 | 0.00 KM |
| Woodville Road | £ 0 | 0 | 0.00 KM |
| Langton Way | £ 0 | 0 | 0.00 KM |
| A249 | £ 0 | 0 | 0.00 KM |
| Tufton Street | £ 0 | 0 | 0.00 KM |
Nearby Transport
| Name | NLC | TLC | Distance |
|---|---|---|---|
| Maidstone West | 5222 | MDW | 0.97 KM |
| Maidstone East | 5115 | MDE | 1.01 KM |
| Maidstone Barracks | 5237 | MDB | 1.45 KM |
| East Farleigh | 5234 | EFL | 4.66 KM |
| Barming | 5133 | BMG | 5.32 KM |
Nearby Listings
| Address | Price | Type | Score | Distance |
|---|---|---|---|---|
| Foster Street, Maidstone, Kent, ME15 | £ 497,000 | BUY | 7 / 10 | 0.00 KM |
| Knightrider Street, Maidstone, Kent, ME15 | £ 175,000 | BUY | 6 / 10 | 0.07 KM |
| Knightrider Street, Maidstone, Kent, ME15 | £ 210,000 | BUY | 7 / 10 | 0.07 KM |
| Orchard Street, Maidstone, ME15 | £ 400,000 | BUY | 8 / 10 | 0.07 KM |
| Brunswick Street, Maidstone | £ 475,000 | BUY | 7 / 10 | 0.09 KM |
Nearby Properties
| Address | Price | Distance |
|---|---|---|
| 28 Foster Street | £ 282,000 | 0.00 KM |
| 17 Foster Street | £ 218,000 | 0.00 KM |
| 16 Foster Street | £ 91,000 | 0.00 KM |
| 26 Foster Street | £ 227,500 | 0.00 KM |
| 8 Foster Street | £ 150,000 | 0.02 KM |