Plot 8, Coles Yard, Stuckton, Fordingbridge, Hampshire, SP6
By Woolley & Wallis
£ 475,000
Reviews
2 out of 5 stars
Woolley & Wallis says ..
PLOT 8 - A beautifully finished 2 - 3 -bedroom end-of terrace home within a stylish courtyard style development with far-reaching countryside views in the peaceful hamlet of Stuckton.
Property Oracle says ..
This newly built three-bedroom property in Stuckton, Fordingbridge, offers a contemporary and modern living space. The interior is finished to a high standard, with modern appliances and fixtures. The open-plan kitchen and living area creates a spacious feel. While the photographs only showcase the interior and a small part of the exterior, the available images suggest the property is well-built and in good condition.
The location, situated in the New Forest National Park, offers a scenic and tranquil environment, although it is worth noting that this might translate to a longer commute to major towns and cities. The property’s proximity to well-regarded primary and secondary schools presents a definite advantage for families. The lack of detailed information regarding local transport links, however, represents a significant point to consider.
The property appears to have limited external space, with primarily a gravel area visible in the images; this might be a crucial factor for potential buyers looking for a property with a garden. The list price of £475,000 requires further context. Comparing it to nearby listings which lack square footage data, it appears to be a generally reasonable price given the property’s condition and the attractive location. However, a full market valuation and more detailed property size comparison would be needed for a more conclusive assessment. The small land size influences the overall value proposition. Ultimately, this property would suit a buyer prioritizing a modern, high-quality interior in a scenic rural location. However, buyers should be aware of the absence of ample outdoor space and potential limitations in terms of local transport links.
Therefore, we give this property 5 / 10. *Disclaimer: This is our option and does constitute a recommendation or financial advice. Do your own research. *
- Price
- 7
- Condition
- 7
- Location
- 6
- Land
- 2
- Bedrooms
- 3
- Bathrooms
- 2
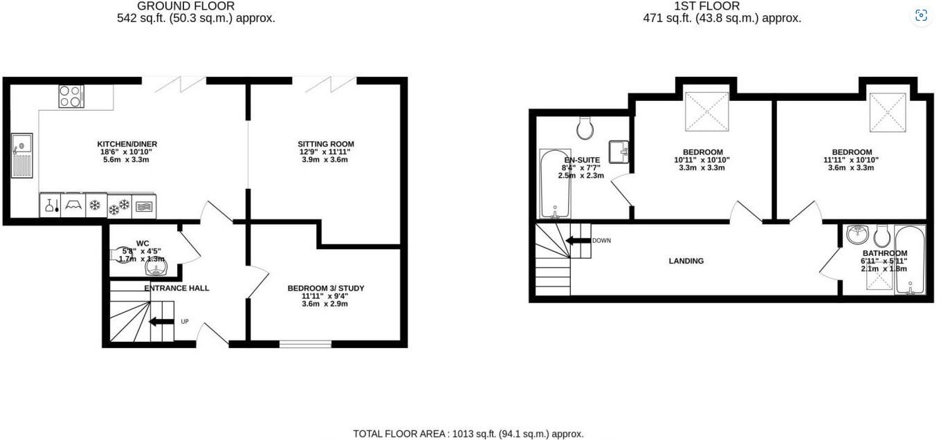
- Sqft (est)
- 1,013.00
The heatmap indicates the level of crime in the area. The color of the heatmap indicates the crime severity and recency.
Metrics Year-on-Year
- Average area value
- 471,111.00 £Increased by 12.11 %
- Est sale value
- 546,007.00 £Increased by 34.75 %
- Average area rental value
- 1,283.00 £/moDecreased by 19.91 %
- Est letting value
- 1,013.00 £/moUnchanged by 0.00 %
- Est rental Yield
- 3.27 %Decreased by 28.45 %
- Crime Rate
- 0.00 %
Agent Activity
Woolley & Wallis created the listing.
Nearby Schools
| Name | Type | Ofsted | Distance |
|---|---|---|---|
| Hyde Church Of England Primary School | Voluntary Controlled School | Good | 1.55 KM |
| The Burgate School And Sixth Form | Academy Converter | Good | 2.63 KM |
| The Bridges And Pathways Children'S Centre | Children's Centre | 2.83 KM | |
| Fordingbridge Infant School | Community School | Good | 2.88 KM |
| Fordingbridge Junior School | Community School | Good | 2.88 KM |
Images
Nearby Streets
| Name | Average Price | Average Sqft | Distance |
|---|---|---|---|
| Hyde Lane | £ 0 | 0 | 0.00 KM |
| Bickton | £ 888,333 | 0 | 0.00 KM |
| Bickton Mill | £ 0 | 0 | 0.00 KM |
| The Paddock | £ 850,000 | 0 | 0.00 KM |
Nearby Listings
| Address | Price | Type | Score | Distance |
|---|---|---|---|---|
| Plot 8, Coles Yard, Stuckton, Fordingbridge, Hampshire, SP6 | £ 475,000 | BUY | 5 / 10 | 0.00 KM |
| Plot 9, Coles Yard, Stuckton, Fordingbridge, Hampshire, SP6 | £ 425,000 | BUY | 5 / 10 | 0.00 KM |
| Stuckton, Fordingbridge, SP6 | £ 450,000 | BUY | 7 / 10 | 0.00 KM |
| Stuckton, Fordingbridge, SP6 | £ 395,000 | BUY | 7 / 10 | 0.01 KM |
| Cole Yard, Stuckton, SP6 | £ 425,000 | BUY | Unknown | 0.07 KM |
Nearby Properties
| Address | Price | Distance |
|---|---|---|
| 3 The Cottages | £ 245,000 | 0.36 KM |
| 2 The Cottages | £ 295,000 | 0.36 KM |
| Hyde Lane Cottage | £ 550,000 | 0.49 KM |
| Walnut Cottage | £ 499,000 | 0.49 KM |
| Bray Cottage | £ 400,000 | 0.49 KM |