Percy Gardens, Worcester Park, Surrey, KT4
By Connor Prince
£ 200,000
Reviews
3 out of 5 stars
Connor Prince says ..
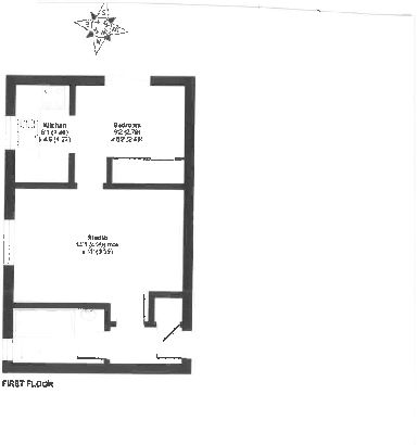
A ground floor studio flat with a fitted kitchen with appliances, white bathroom suite and a separate bedroom area. Situated in a residential cul-de-sac location within 250 metres of Malden Manor's railway station giving access to Waterloo in 30 minutes.
Property Oracle says ..
This one bedroom flat is located in Worcester Park, Surrey. The property is conveniently located near Malden Manor train station (0.19km) providing easy access to London and surrounding areas. Several primary schools are within a 0.5km radius, including Malden Parochial Cofe Primary School which is rated as Outstanding by Ofsted. The flat itself appears to be in reasonable condition, though further information would be needed to provide a definitive assessment. The images show a small, but functional living space and bedroom. The kitchen is compact, and the bathroom is relatively small. There is limited outdoor space. The list price of £200,000 is significantly lower than the average price for the area (£776,526), however, this is likely due to the smaller size of the property (270.86 sqft) compared to the average (1,480 sqft). Nearby comparable properties range from £200,000 to £250,000 for flats, suggesting the list price is within a reasonable range for a property of this size and type in this location.
Therefore, we give this property 6 / 10. *Disclaimer: This is our option and does constitute a recommendation or financial advice. Do your own research. *
- Price
- 7
- Condition
- 7
- Location
- 8
- Land
- 2
- Bedrooms
- 1
- Bathrooms
- 1
- Sqft (est)
- 270.86
The heatmap indicates the level of crime in the area. The color of the heatmap indicates the crime severity and recency.
Metrics Year-on-Year
- Average area value
- 376,667.00 £Decreased by 11.42 %
- Est sale value
- 80,987.14 £Decreased by 27.43 %
- Average area rental value
- 1,100.00 £/moIncreased by 18.92 %
- Est letting value
- 0.00 £/mo
- Est rental Yield
- 3.50 %Increased by 34.10 %
- Crime Rate
- 16.00 %Unchanged by 0.00 %
Agent Activity
Connor Prince created the listing.
Nearby Schools
| Name | Type | Ofsted | Distance |
|---|---|---|---|
| Malden Parochial Cofe Primary School | Voluntary Aided School | Outstanding | 0.40 KM |
| Liberty Woodland School | Other Independent School | Requires improvement | 0.43 KM |
| Malden Manor Primary And Nursery School | Community School | Good | 0.43 KM |
| Richard Challoner School | Academy Converter | 0.43 KM | |
| Old Malden Children'S Centre | Children's Centre | 0.46 KM |
Images
Nearby Streets
| Name | Average Price | Average Sqft | Distance |
|---|---|---|---|
| Vicarage Close | £ 0 | 0 | 0.00 KM |
| Riverhill Mews | £ 0 | 0 | 0.00 KM |
| Church Road | £ 892,000 | 0 | 0.00 KM |
| Yew Tree Close | £ 532,500 | 0 | 0.00 KM |
| Turner Road | £ 771,667 | 0 | 0.00 KM |
Nearby Transport
| Name | NLC | TLC | Distance |
|---|---|---|---|
| Malden Manor | 5599 | MAL | 0.19 KM |
| Worcester Park | 5579 | WCP | 1.90 KM |
| Tolworth | 5573 | TOL | 2.04 KM |
| New Malden | 5567 | NEM | 2.41 KM |
| Stoneleigh | 5606 | SNL | 2.67 KM |
Nearby Listings
| Address | Price | Type | Score | Distance |
|---|---|---|---|---|
| Percy Gardens, Worcester Park, Surrey, KT4 | £ 200,000 | BUY | 6 / 10 | 0.00 KM |
| Percy Gardens, Worcester Park, KT4 | £ 200,000 | BUY | Unknown | 0.01 KM |
| Percy Gardens, Worcester Park, Kingston Borough, KT4 7RX | £ 189,000 | BUY | 6 / 10 | 0.01 KM |
| Percy Gardens, Worcester Park, KT4 | £ 225,000 | BUY | 6 / 10 | 0.01 KM |
| Percy Gardens, Worcester Park | £ 225,000 | BUY | 6 / 10 | 0.02 KM |
Nearby Properties
| Address | Price | Distance |
|---|---|---|
| 4 Percy Gardens | £ 425,000 | 0.00 KM |
| 1 Percy Gardens | £ 89,000 | 0.06 KM |
| 7 Percy Gardens | £ 215,000 | 0.06 KM |
| 3 Percy Gardens | £ 450,000 | 0.06 KM |
| 11 Percy Gardens | £ 600,000 | 0.06 KM |