Nimmo Street, Greenock
Neill Clerk logo

Nimmo Street, Greenock

By Neill Clerk

£ 143,000

Reviews

3 out of 5 stars

Neill Clerk says ..

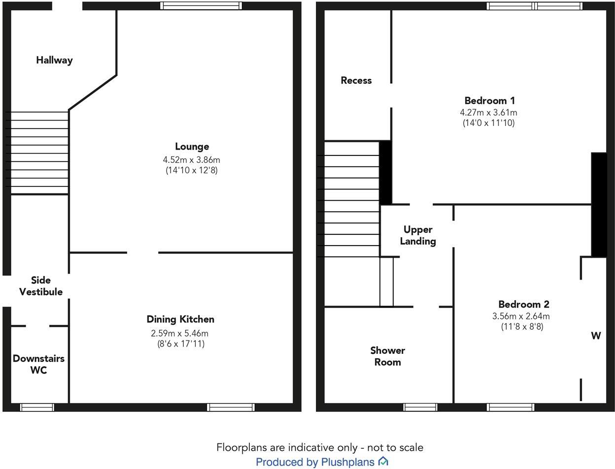
Offering an excellent family home this well presented two bedroom SEMI DETACHED VILLA occupies a highly desirable cul de sac location convenient for amenities and close to Notre Dame High School. Particular features include a monoblock driveway offering off street parking for two cars and an add...

Property Oracle says ..

This is a well-presented semi-detached property in Greenock. It features two bedrooms and two bathrooms, making it suitable for a small family or couple. The property benefits from a modern interior, a good-sized garden, and proximity to local amenities and transport links. The listing price appears reasonable given the property’s condition and location.

Therefore, we give this property 7 / 10. *Disclaimer: This is our option and does constitute a recommendation or financial advice. Do your own research. *

Price
7
Condition
7
Location
6
Land
8
Bedrooms
2
Bathrooms
2
Sqft (est)
607.19

The heatmap indicates the level of crime in the area. The color of the heatmap indicates the crime severity and recency.

Metrics Year-on-Year

Average area value
583,333.00 £
Increased by 32.79 %
from 439,290.00 £
Est sale value
225,874.68 £
Increased by 82.35 %
from 123,866.76 £
Average area rental value
1,050.00 £/mo
Decreased by 22.96 %
from 1,363.00 £/mo
Est letting value
0.00 £/mo
from 0.00 £/mo
Est rental Yield
2.16 %
Decreased by 41.94 %
from 3.72 %
Crime Rate
0.00 %
from 0.00 %

Agent Activity

  • Neill Clerk created the listing.

Images

IMG_4811.JPG IMG_4830.JPG IMG_4834.JPG IMG_4812.JPG IMG_4815.JPG IMG_4823.JPG IMG_4820.JPG IMG_4829.JPG IMG_4822.JPG IMG_4824.JPG IMG_4825.JPG IMG_4826.JPG IMG_4819.JPG IMG_4837.JPG IMG_4832.JPG IMG_4835.JPG IMG_4836.JPG IMG_4814.JPG IMG_4817.JPG

Nearby Streets

NameAverage PriceAverage SqftDistance
Nimmo Street £ 000.00 KM
Lewis Road £ 128,00000.00 KM
Iona Street £ 65,00000.00 KM
Minto Street £ 89,00000.00 KM
Glen Douglas Road £ 125,00000.00 KM

Nearby Transport

NameNLCTLCDistance
Drumfrochar9967DFR0.62 KM
Greenock West9682GKW1.49 KM
Fort Matilda9675FTM2.48 KM
Branchton9938BCN2.58 KM
Greenock Central9681GKC3.08 KM

Nearby Listings

AddressPriceTypeScoreDistance
Nimmo Street, Greenock £ 143,000BUY7 / 100.00 KM
Nimmo Street, Inverclyde, Greenock, PA16 £ 145,000BUY7 / 100.04 KM
Old Inverkip Road, Greenock, PA16 £ 220,000BUYUnknown0.13 KM
Nimmo Street, Greenock, PA16 £ 100,000BUY8 / 100.14 KM
Hibernia Street, Greenock £ 114,000BUY7 / 100.18 KM