Bayweaver Street, Ledsham Garden Village, Little Sutton
By Platinum Independent Estate Agents
£ 110,000
Reviews
3 out of 5 stars
Platinum Independent Estate Agents says ..
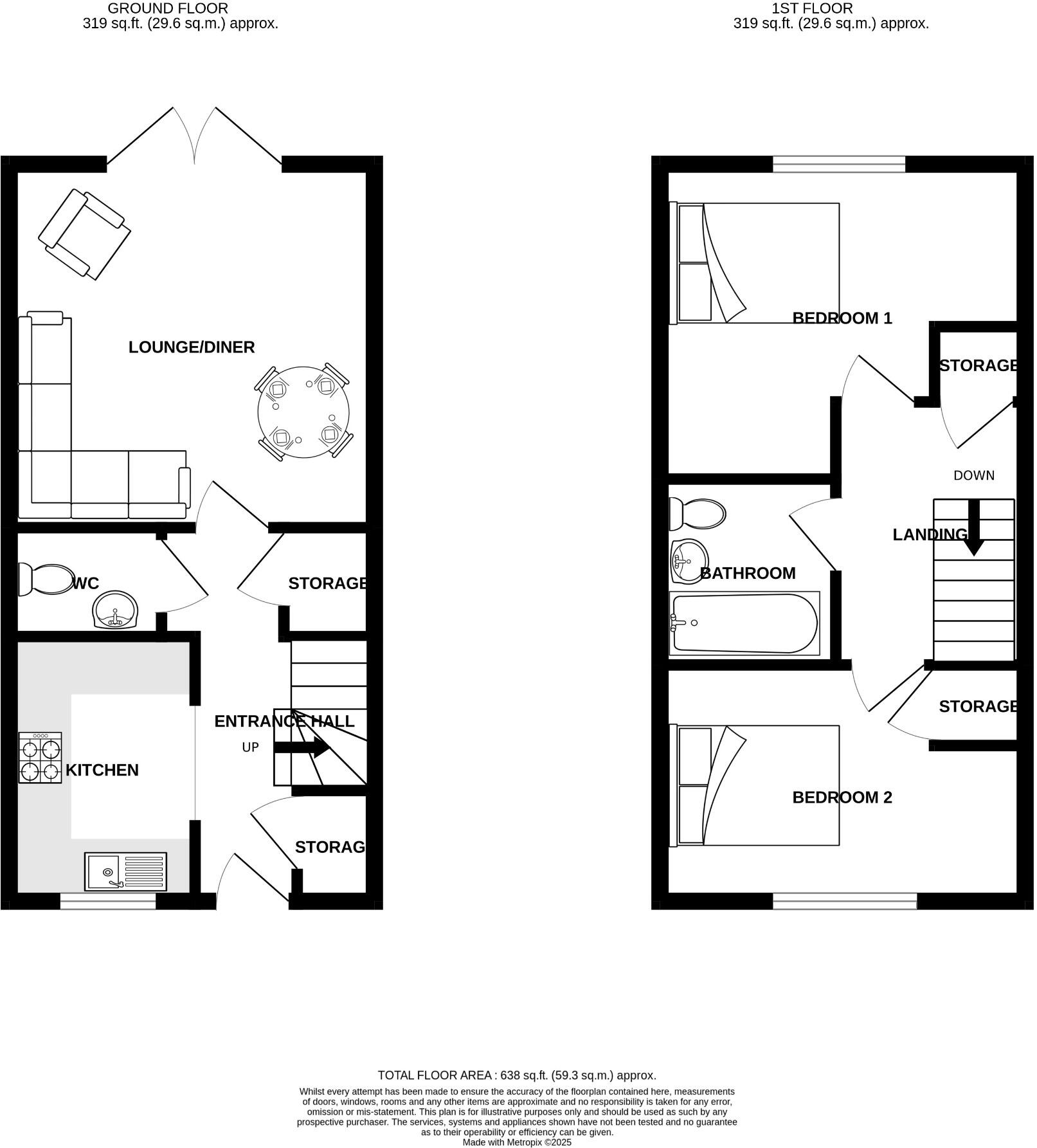
50% Shared Ownership. Platinum are pleased to offer onto the market this superb two bedroom end of terrace house. This fantastic property can be found on the popular development of 'Ledsham Garden Village' in Little Sutton, boasting contemporary kitchen, downstairs cloakroom and benefiting from a mo
Property Oracle says ..
This property is a 2 bedroom, 1 bathroom end of terrace house located in Ledsham Garden Village, Little Sutton. The property is modern and well maintained, with a small garden. The location is good, with nearby schools and transport links. However, the list price is significantly lower than the average price for the area, suggesting it may be undervalued. More information on the property’s condition and size would be needed to confirm this.
Therefore, we give this property 7 / 10. *Disclaimer: This is our option and does constitute a recommendation or financial advice. Do your own research. *
- Price
- 7
- Condition
- 9
- Location
- 8
- Land
- 6
- Bedrooms
- 2
- Bathrooms
- 1
- Sqft (est)
- 638.00
- Lot (est)
- 638.00
The heatmap indicates the level of crime in the area. The color of the heatmap indicates the crime severity and recency.
Metrics Year-on-Year
- Average area value
- 386,869.00 £Increased by 13.21 %
- Est sale value
- 218,196.00 £Increased by 19.58 %
- Average area rental value
- 1,300.00 £/moIncreased by 15.25 %
- Est letting value
- 638.00 £/mo
- Est rental Yield
- 4.03 %Increased by 1.77 %
- Crime Rate
- 15.00 %Unchanged by 0.00 %
Agent Activity
Platinum Independent Estate Agents created the listing.
Nearby Schools
| Name | Type | Ofsted | Distance |
|---|---|---|---|
| Little Sutton C Of E Primary School | Academy Converter | 1.04 KM | |
| Sutton Green Primary School | Community School | Good | 1.17 KM |
| Parklands Community Primary And Nursery School | Academy Converter | 1.49 KM | |
| Parklands Children'S Centre | Children's Centre | 1.51 KM | |
| Rossmore School | Community School | Good | 1.96 KM |
Images
Nearby Streets
| Name | Average Price | Average Sqft | Distance |
|---|---|---|---|
| Taylor Close | £ 399,950 | 0 | 0.00 KM |
| Culver Gardens | £ 280,000 | 0 | 0.00 KM |
| Leamington Road | £ 416,111 | 0 | 0.00 KM |
| McMillan Street | £ 493,333 | 0 | 0.00 KM |
| Rosewood Close | £ 0 | 0 | 0.00 KM |
Nearby Transport
| Name | NLC | TLC | Distance |
|---|---|---|---|
| Little Sutton | 2156 | LTT | 1.48 KM |
| Capenhurst | 2186 | CPU | 2.10 KM |
| Overpool | 2157 | OVE | 3.29 KM |
| Hooton | 2193 | HOO | 3.58 KM |
| Eastham Rake | 2128 | ERA | 4.71 KM |
Nearby Listings
| Address | Price | Type | Score | Distance |
|---|---|---|---|---|
| Bayweaver Street, Ledsham Garden Village, Little Sutton | £ 110,000 | BUY | 7 / 10 | 0.00 KM |
| Collier Court, Little Sutton | £ 295,000 | BUY | 7 / 10 | 0.06 KM |
| Collier Court, Little Sutton, Ellesmere Port | £ 315,000 | BUY | 7 / 10 | 0.06 KM |
| Owler Place, Little Sutton, Ellesmere Port, CH66 | £ 270,000 | BUY | 7 / 10 | 0.12 KM |
| Gilder Way, Little Sutton, Ellesmere Port, Cheshire, CH66 | £ 345,000 | BUY | Unknown | 0.13 KM |
Nearby Properties
| Address | Price | Distance |
|---|---|---|
| 7 Penistone Drive | £ 135,000 | 0.42 KM |
| 5 Penistone Drive | £ 140,500 | 0.42 KM |
| 10 Penistone Drive | £ 140,000 | 0.42 KM |
| 2 Penistone Drive | £ 144,500 | 0.42 KM |
| 12 Penistone Drive | £ 142,000 | 0.42 KM |