Lomond says ..
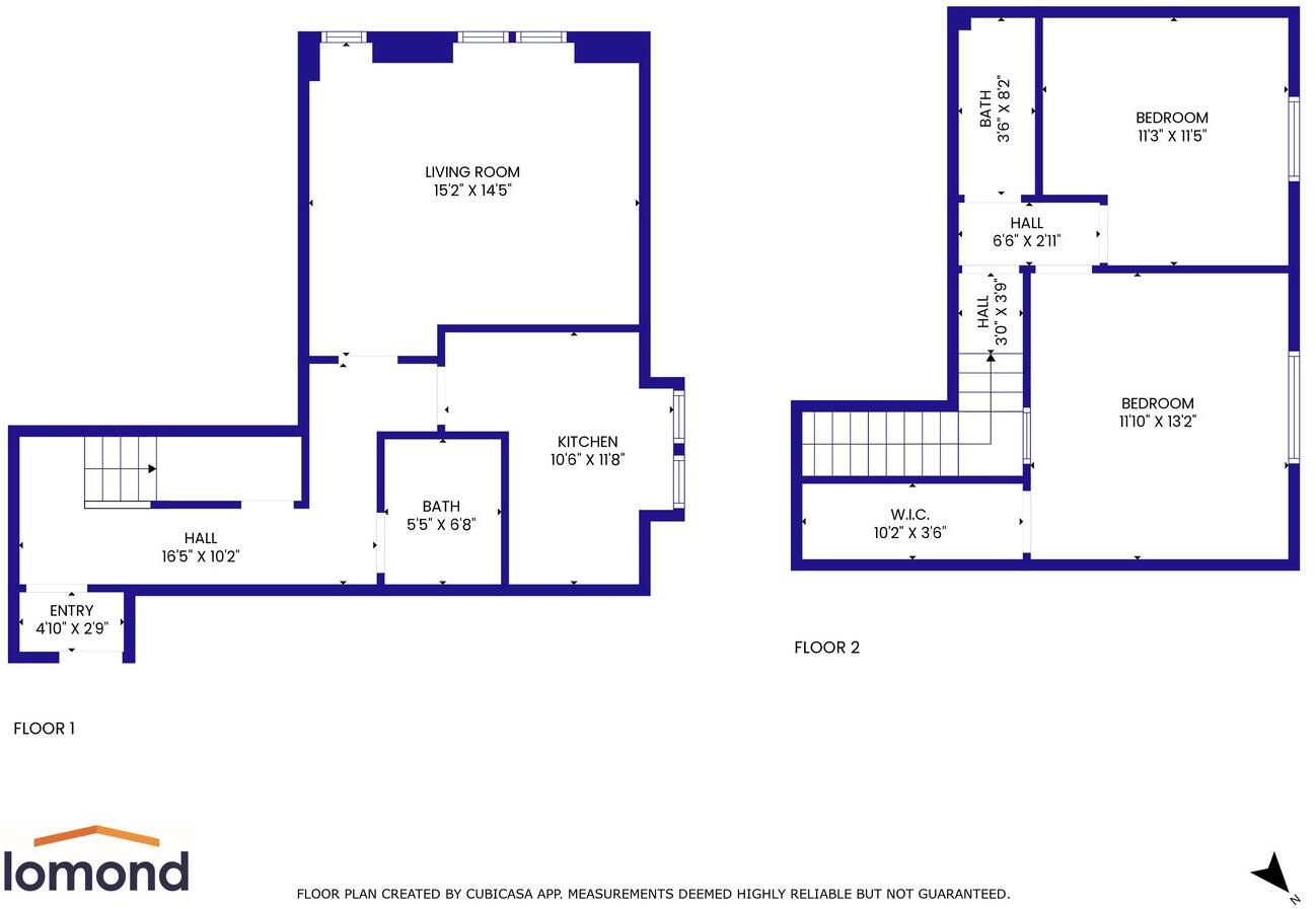
Situated in the heart of Troon, just moments from the beach, this beautifully presented two-bedroom duplex apartment offers modern, spacious living across two levels. Ideal for professionals, couples, or holiday home seekers, Flat 4 combines character, comfort, and a highly convenient location...
Property Oracle says ..
This two-bedroom apartment on Templehill, Troon, presents a solid opportunity for buyers. Its location in a central area of Troon offers convenient access to local amenities and transport links. While the property is in reasonable condition, some modernisation could enhance its appeal. The asking price of £90,000 seems competitive, especially when compared to the average property price in the area. The lack of garden space is typical for an apartment.
Therefore, we give this property 5 / 10. *Disclaimer: This is our option and does constitute a recommendation or financial advice. Do your own research. *
- Price
- 8
- Condition
- 6
- Location
- 7
- Land
- 1
- Bedrooms
- 2
- Bathrooms
- 2
- Sqft (est)
- 941.71
The heatmap indicates the level of crime in the area. The color of the heatmap indicates the crime severity and recency.
Metrics Year-on-Year
- Average area value
- 198,227.00 £Decreased by 30.81 %
- Est sale value
- 317,356.27 £Increased by 28.63 %
- Average area rental value
- 1,098.00 £/moIncreased by 28.27 %
- Est letting value
- 941.71 £/mo
- Est rental Yield
- 6.65 %Increased by 85.24 %
- Crime Rate
- 0.00 %
Agent Activity
Lomond created the listing.
Images
Nearby Streets
| Name | Average Price | Average Sqft | Distance |
|---|---|---|---|
| Dukes Road | £ 0 | 0 | 0.00 KM |
| Shore Road | £ 0 | 0 | 0.00 KM |
| North Shore Road | £ 85,000 | 0 | 0.00 KM |
| Bradan Court | £ 89,000 | 0 | 0.00 KM |
| Dallas Road | £ 185,000 | 0 | 0.00 KM |
Nearby Transport
| Name | NLC | TLC | Distance |
|---|---|---|---|
| Troon | 9562 | TRN | 1.19 KM |
| Barassie | 9466 | BSS | 2.48 KM |
| Prestwick International Airport | 9544 | PRA | 6.94 KM |
| Prestwick Town | 9543 | PTW | 7.34 KM |
| Irvine | 9508 | IRV | 7.45 KM |
Nearby Listings
| Address | Price | Type | Score | Distance |
|---|---|---|---|---|
| Templehill, Troon, KA10 | £ 70,000 | BUY | Unknown | 0.00 KM |
| Templehill, Troon, KA10 | £ 90,000 | BUY | 5 / 10 | 0.00 KM |
| Templehill, Troon, Ayrshire, KA10 | £ 77,500 | BUY | 7 / 10 | 0.02 KM |
| Templehill, Troon, Ayrshire, KA10 | £ 65,000 | BUY | 7 / 10 | 0.02 KM |
| 16, Templehill, Troon, Ayrshire | £ 80,000 | BUY | 5 / 10 | 0.02 KM |