College Road, Colliers Wood, London, SW19
By Cross & Prior
£ 520,000
Reviews
3 out of 5 stars
Cross & Prior says ..
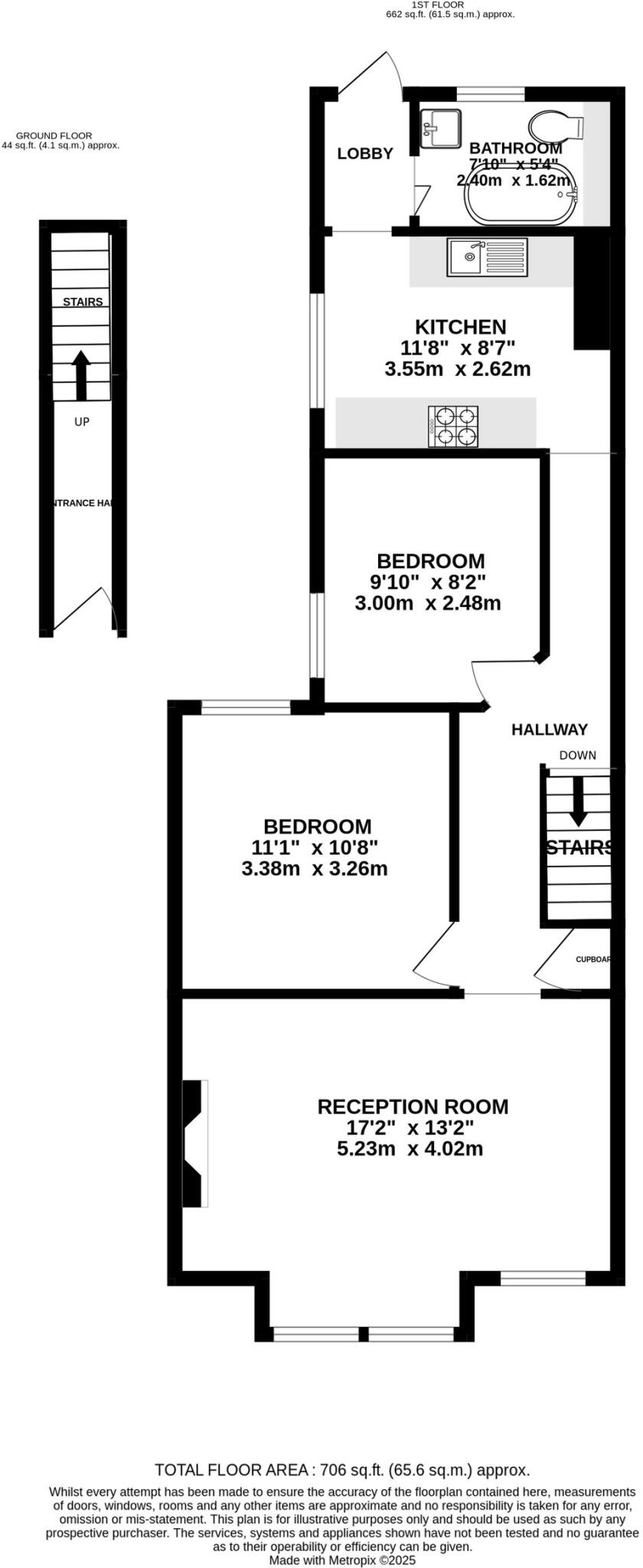
A stunning period maisonette boasting two double bedrooms, a full-width reception room, a modern kitchen and bathroom, and a beautiful private garden. Presented in immaculate condition throughout, this property is ideally situated on a popular road in the heart of Colliers Wood, just a short w...
Property Oracle says ..
This maisonette is located in Colliers Wood, Merton, which is a convenient location with good transport links and nearby schools. The property itself appears to be in good condition, having undergone some modernisation while retaining traditional character. The images show a recently renovated interior with a modern kitchen and bathroom. There is a small, well-maintained rear garden. While the plot size is small, it is adequate for a property of this type in this area. The list price is slightly below the average price for the area, and given the property’s condition and location, it seems like a reasonable price. However, the lack of sqft information for comparable properties makes it difficult to definitively assess the price per sqft.
Therefore, we give this property 7 / 10. *Disclaimer: This is our option and does constitute a recommendation or financial advice. Do your own research. *
- Price
- 8
- Condition
- 9
- Location
- 8
- Land
- 6
- Bedrooms
- 2
- Bathrooms
- 1
- Sqft (est)
- 706.11
The heatmap indicates the level of crime in the area. The color of the heatmap indicates the crime severity and recency.
Metrics Year-on-Year
- Average area value
- 578,333.00 £Increased by 10.22 %
- Est sale value
- 499,219.77 £Increased by 13.48 %
- Average area rental value
- 2,070.00 £/moIncreased by 12.32 %
- Est letting value
- 1,412.22 £/moUnchanged by 0.00 %
- Est rental Yield
- 4.30 %Increased by 2.14 %
- Crime Rate
- 6.00 %Unchanged by 0.00 %
Agent Activity
Cross & Prior created the listing.
Nearby Schools
| Name | Type | Ofsted | Distance |
|---|---|---|---|
| Singlegate Primary School | Community School | Outstanding | 0.35 KM |
| All Saints' Cofe Primary School | Voluntary Aided School | Good | 0.59 KM |
| Garfield Primary School | Community School | Good | 0.78 KM |
| St George'S Hospital Medical School | Higher Education Institutions | 0.85 KM | |
| Sellincourt Primary School | Community School | Good | 1.10 KM |
Images
Nearby Streets
| Name | Average Price | Average Sqft | Distance |
|---|---|---|---|
| Holmbury Court | £ 0 | 0 | 0.00 KM |
| East Road | £ 791,667 | 0 | 0.00 KM |
| Douglas Court | £ 0 | 0 | 0.00 KM |
| Breakspear Gardens | £ 0 | 0 | 0.00 KM |
| Laburnum Road | £ 546,667 | 0 | 0.00 KM |
Nearby Transport
| Name | NLC | TLC | Distance |
|---|---|---|---|
| Haydons Road | 5289 | HYR | 1.32 KM |
| Tooting | 5389 | TOO | 1.85 KM |
| Earlsfield | 5584 | EAD | 2.67 KM |
| Mitcham Eastfields | 5069 | MTC | 2.94 KM |
| Wimbledon | 5578 | WIM | 3.14 KM |
Nearby Listings
| Address | Price | Type | Score | Distance |
|---|---|---|---|---|
| College Road, Colliers Wood, London, SW19 | £ 520,000 | BUY | 7 / 10 | 0.00 KM |
| College Road, Colliers Wood | £ 540,000 | BUY | Unknown | 0.01 KM |
| College Road, London, SW19 | £ 425,000 | BUY | 6 / 10 | 0.02 KM |
| College Road, Colliers Wood | £ 515,000 | BUY | Unknown | 0.02 KM |
| College Road, Colliers Wood | £ 500,000 | BUY | 6 / 10 | 0.02 KM |
Nearby Properties
| Address | Price | Distance |
|---|---|---|
| 2 College Road | £ 59,500 | 0.04 KM |
| 30 College Road | £ 475,000 | 0.04 KM |
| 36 College Road | £ 495,000 | 0.04 KM |
| 12 College Road | £ 265,000 | 0.04 KM |
| 14 College Road | £ 250,000 | 0.04 KM |