Symon Smith says ..
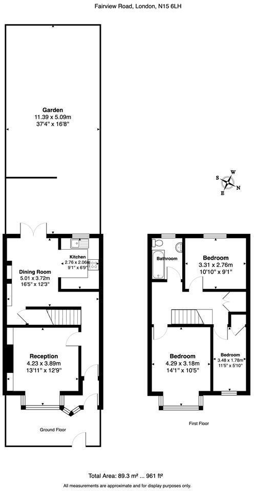
Fairview Road, N15, a charming terraced house nestled in the heart of the prestigious Stamford Hill in London. Symon Smith is delighted to present this beautiful property for sale. This delightful house, built approximately in the 1930s, comprising of THREE bedrooms, One reception rooms...
Property Oracle says ..
The property is located in Seven Sisters, Haringey, a diverse area in North London. The area benefits from good transport links, with several Overground stations within walking distance, providing convenient access to central London and other parts of the city. There are also a number of schools nearby, although their Ofsted ratings vary. The property itself is a three-bedroom house with one bathroom. While the listing does not provide square footage, the photos show a house that appears to be in need of some renovation or modernisation. The garden is present, but it looks overgrown and requires attention. Considering the average house price in the area is £1,128,824 and the average price per square foot is £725, the listed price of £1,000,000 appears to be slightly below average, which could be attractive to buyers. However, the need for renovations should be factored into any offer.
Therefore, we give this property 5 / 10. *Disclaimer: This is our option and does constitute a recommendation or financial advice. Do your own research. *
- Price
- 6
- Condition
- 4
- Location
- 7
- Land
- 5
- Bedrooms
- 3
- Bathrooms
- 1
The heatmap indicates the level of crime in the area. The color of the heatmap indicates the crime severity and recency.
Metrics Year-on-Year
- Average area value
- 789,000.00 £Increased by 13.27 %
- Average area rental value
- 2,233.00 £/moIncreased by 4.05 %
- Est rental Yield
- 3.40 %Decreased by 8.11 %
- Crime Rate
- 4.00 %Unchanged by 0.00 %
Agent Activity
Symon Smith created the listing.
Nearby Schools
| Name | Type | Ofsted | Distance |
|---|---|---|---|
| Bnei Zion Community School | Other Independent School | Inadequate | 0.27 KM |
| Bnos Zion Of Bobov | Other Independent School | Requires improvement | 0.28 KM |
| Bobov Primary Boys School | Other Independent School | Inadequate | 0.40 KM |
| Crowland Primary School | Community School | Outstanding | 0.44 KM |
| St Ignatius Rc Primary School | Voluntary Aided School | Good | 0.46 KM |
Images
Nearby Streets
| Name | Average Price | Average Sqft | Distance |
|---|---|---|---|
| Fairview Road | £ 0 | 0 | 0.00 KM |
| Barry Avenue | £ 0 | 0 | 0.00 KM |
| Olinda Road | £ 841,665 | 0 | 0.00 KM |
| Platinum Mews | £ 700,000 | 0 | 0.00 KM |
| A10 | £ 0 | 0 | 0.00 KM |
Nearby Transport
| Name | NLC | TLC | Distance |
|---|---|---|---|
| South Tottenham | 7404 | STO | 0.41 KM |
| Seven Sisters | 6931 | SVS | 0.81 KM |
| Stamford Hill | 6968 | SMH | 0.86 KM |
| Stoke Newington | 6934 | SKW | 1.43 KM |
| Tottenham Hale | 6951 | TOM | 1.60 KM |
Nearby Listings
| Address | Price | Type | Score | Distance |
|---|---|---|---|---|
| Fairview Road, London | £ 1,000,000 | BUY | 5 / 10 | 0.00 KM |
| Barry Avenue, LONDON N15 | £ 1,100,000 | BUY | 6 / 10 | 0.14 KM |
| Craven Park Road, London | £ 750,000 | BUY | 5 / 10 | 0.17 KM |
| Craven Park Road, London | £ 800,000 | BUY | 5 / 10 | 0.18 KM |
| Ferndale Road, Tottenham, London, N15 | £ 850,000 | BUY | 7 / 10 | 0.21 KM |
Nearby Properties
| Address | Price | Distance |
|---|---|---|
| 48 Fairview Road | £ 850,000 | 0.05 KM |
| 36 Fairview Road | £ 316,000 | 0.05 KM |
| 54 Fairview Road | £ 100,000 | 0.05 KM |
| 58 Fairview Road | £ 700,000 | 0.05 KM |
| 7 Cadoxton Avenue | £ 228,000 | 0.07 KM |