Sandpiper Way, The Willows, Torquay, Devon
By Homewise
£ 315,000
Reviews
4 out of 5 stars
Homewise says ..
Guide price for a Home for Life Lifetime Lease for OVER 60s tailored to your personal circumstances and requirements. Your price may vary. OVER 60S could benefit from SAVINGS of up to 59% from the market value with a one-off payment for a Lifetime Lease on this property. £31...
Property Oracle says ..
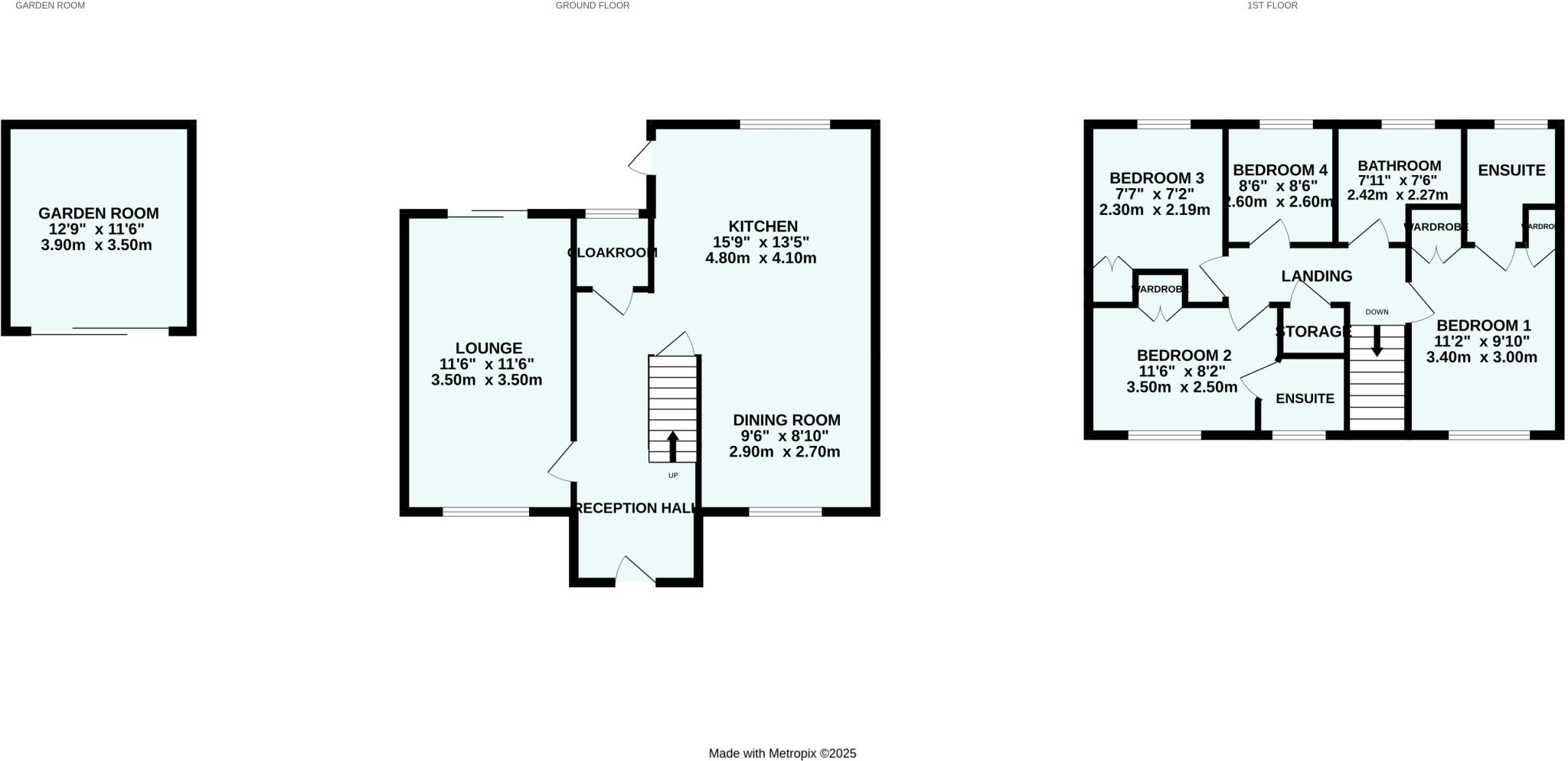
The property is a 4-bedroom detached house located in Sandpiper Way, The Willows, Torquay, Devon, with a list price of £315,000. The property has a total area of 1,287.36 sqft and is situated in a desirable area.
The property appears to be in good condition, with recently updated bathrooms and kitchen. The images show a modern and well-maintained interior. The exterior also looks well-kept, with a patio area and garden. There is evidence of a garage and off-street parking.
The location is excellent, with good access to local schools, including several highly-rated grammar schools within a reasonable distance. The proximity to Torbay and nearby transportation links (Great Western Railway stations) adds to its appeal.
While the plot size is not specified, the images show a garden that appears to be of a reasonable size for a property of this type.
Considering the average price per sqft in the area (£283) and the property’s size (1287.36 sqft), a rough estimate of the property’s value would be around £364,000. However, this is just a basic calculation and doesn’t take into account other factors that can influence property prices, such as condition, location, and additional features (garage, garden, etc.). The list price of £315,000 appears to be below the estimated value based solely on size and average price per sqft, therefore representing potentially good value. However, a more in-depth analysis is needed to fully assess the price’s reasonableness.
Based on the available information, the property seems to be a good value for money, particularly considering its condition and location. The presence of a garden and garage further enhances its appeal.
Therefore, we give this property 8 / 10. *Disclaimer: This is our option and does constitute a recommendation or financial advice. Do your own research. *
- Price
- 8
- Condition
- 9
- Location
- 9
- Land
- 7
- Bedrooms
- 4
- Bathrooms
- 0
- Sqft (est)
- 1,287.36
The heatmap indicates the level of crime in the area. The color of the heatmap indicates the crime severity and recency.
Metrics Year-on-Year
- Average area value
- 271,992.00 £Decreased by 13.54 %
- Est sale value
- 363,035.52 £Decreased by 3.42 %
- Average area rental value
- 992.00 £/moDecreased by 5.88 %
- Est letting value
- 1,287.36 £/mo
- Est rental Yield
- 4.38 %Increased by 8.96 %
- Crime Rate
- 5.00 %Unchanged by 0.00 %
Agent Activity
Homewise created the listing.
Nearby Schools
| Name | Type | Ofsted | Distance |
|---|---|---|---|
| Shiphay Learning Academy | Academy Converter | 1.17 KM | |
| Torquay Boys' Grammar School | Academy Converter | Good | 1.69 KM |
| Sherwell Valley Primary School | Community School | Good | 1.71 KM |
| Torquay Girls Grammar School | Academy Converter | Outstanding | 1.76 KM |
| Kingskerswell Church Of England Primary School | Voluntary Controlled School | Good | 1.90 KM |
Images
Nearby Streets
| Name | Average Price | Average Sqft | Distance |
|---|---|---|---|
| Water Lane | £ 0 | 0 | 0.00 KM |
| Caroline Close | £ 550,000 | 0 | 0.00 KM |
| South Devon Highway | £ 400,000 | 0 | 0.00 KM |
| South Devon Highway | £ 472,500 | 0 | 0.00 KM |
| Saturday's Lane | £ 0 | 0 | 0.00 KM |
Nearby Transport
| Name | NLC | TLC | Distance |
|---|---|---|---|
| Torre | 3432 | TRR | 2.57 KM |
| Torquay | 3434 | TQY | 3.85 KM |
| Newton Abbot | 3426 | NTA | 6.00 KM |
| Paignton | 3427 | PGN | 6.22 KM |
| Teignmouth | 3430 | TGM | 9.78 KM |
Nearby Listings
| Address | Price | Type | Score | Distance |
|---|---|---|---|---|
| Sandpiper Way, The Willows, Torquay, Devon | £ 315,000 | BUY | 8 / 10 | 0.00 KM |
| Sandpiper Way, The Willows, Torquay, Devon | £ 470,000 | BUY | 7 / 10 | 0.01 KM |
| Rooftops, Sandpiper Way | £ 525,000 | BUY | 7 / 10 | 0.02 KM |
| Eaglewood Close, Torquay, Devon, TQ2 | £ 230,000 | BUY | 6 / 10 | 0.11 KM |
| The Willows, Torquay | £ 475,000 | BUY | 7 / 10 | 0.17 KM |
Nearby Properties
| Address | Price | Distance |
|---|---|---|
| 10 Sandpiper Way | £ 435,000 | 0.00 KM |
| 17 Sandpiper Way | £ 250,000 | 0.00 KM |
| 7 Sandpiper Way | £ 178,500 | 0.00 KM |
| 12 Sandpiper Way | £ 365,000 | 0.00 KM |
| 29 Sandpiper Way | £ 245,000 | 0.02 KM |