Hunters says ..
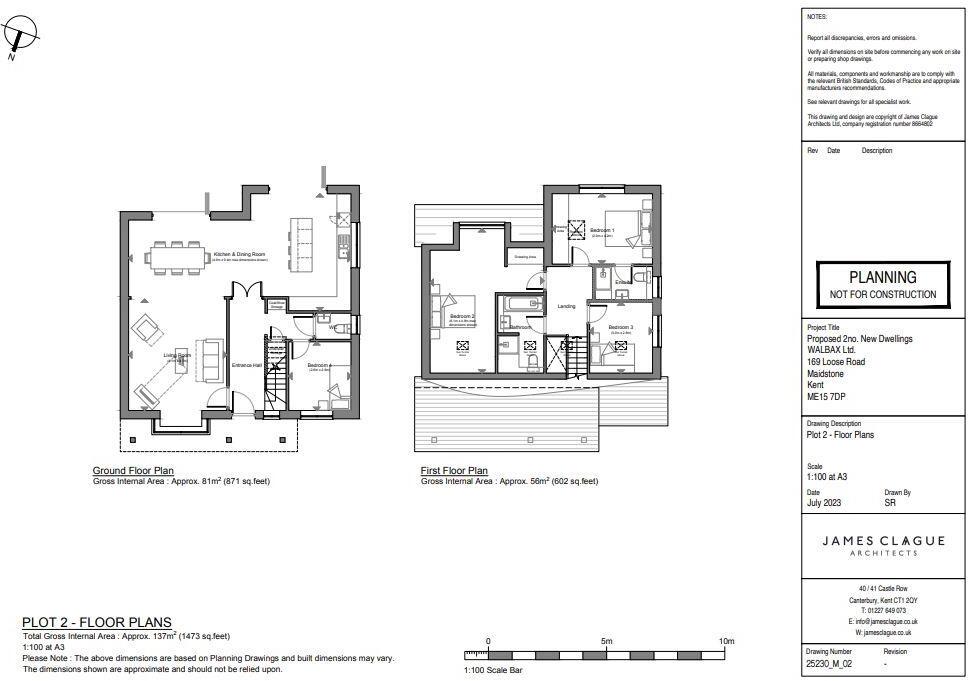
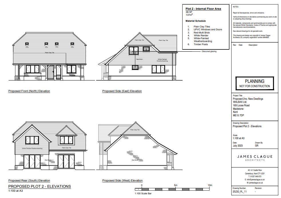
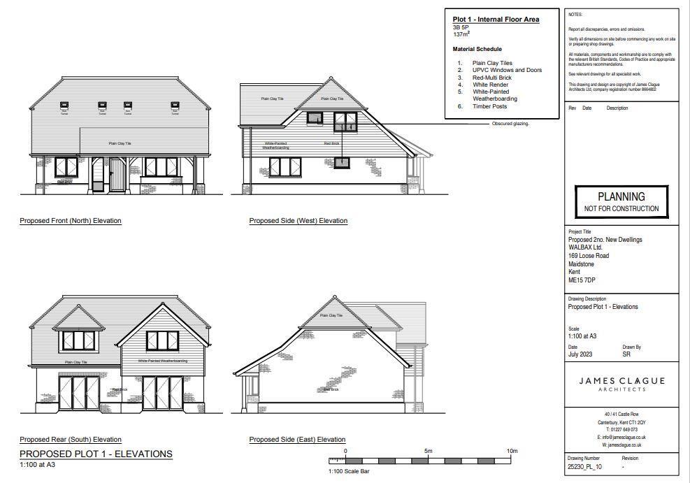
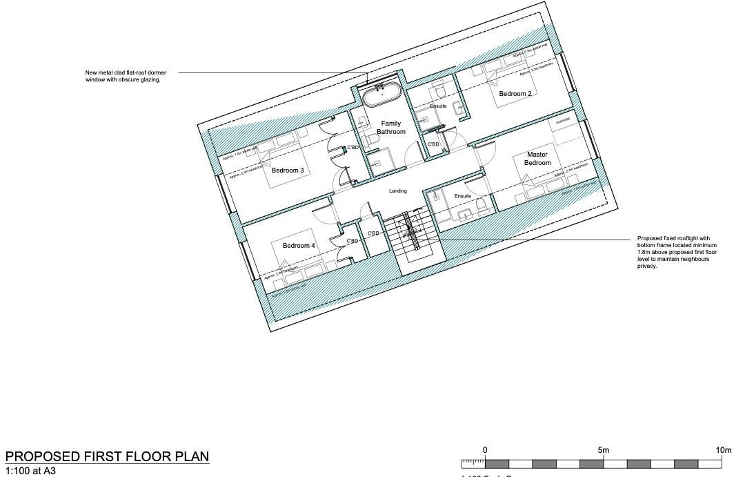
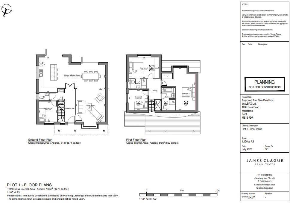
Development/Plots Opportunity - Full Planning Permission Granted This unique property benefits from extensive grounds that offers a versatile package that is perfect for both personal use and development potential. The existing property comes with planning permission to expand and enhanc...
Property Oracle says ..
Therefore, we give this property 8 / 10. *Disclaimer: This is our option and does constitute a recommendation or financial advice. Do your own research. *
- Price
- 7
- Condition
- 10
- Location
- 8
- Land
- 7
- Bedrooms
- 3
- Bathrooms
- 2
- Sqft (est)
- 1,474.66
The heatmap indicates the level of crime in the area. The color of the heatmap indicates the crime severity and recency.
Metrics Year-on-Year
- Average area value
- 279,877.00 £Decreased by 1.23 %
- Est sale value
- 541,200.22 £Increased by 21.12 %
- Average area rental value
- 1,053.00 £/moDecreased by 7.39 %
- Est letting value
- 1,474.66 £/moUnchanged by 0.00 %
- Est rental Yield
- 4.51 %Decreased by 6.43 %
- Crime Rate
- 0.00 %
from 283,358.00 £
from 446,821.98 £
from 1,137.00 £/mo
from 1,474.66 £/mo
from 4.82 %
from 0.00 %
Agent Activity
Hunters created the listing.
Nearby Schools
| Name | Type | Ofsted | Distance |
|---|---|---|---|
| South Borough Primary School | Academy Converter | Good | 0.44 KM |
| Maidstone Grammar School | Foundation School | Good | 0.52 KM |
| Sunshine Children'S Centre | Children's Centre | 0.54 KM | |
| Park Way Primary School | Community School | Good | 0.55 KM |
| Five Acre Wood School | Foundation Special School | Outstanding | 1.31 KM |
Images
Nearby Streets
| Name | Average Price | Average Sqft | Distance |
|---|---|---|---|
| Armstrong Road | £ 475,000 | 0 | 0.00 KM |
| Strachan Close | £ 190,000 | 0 | 0.00 KM |
| Regent Close | £ 270,000 | 0 | 0.00 KM |
| Enterprise Road | £ 0 | 0 | 0.00 KM |
| Cranmer Court | £ 0 | 0 | 0.00 KM |
Nearby Transport
| Name | NLC | TLC | Distance |
|---|---|---|---|
| Maidstone West | 5222 | MDW | 1.90 KM |
| Maidstone East | 5115 | MDE | 2.12 KM |
| Maidstone Barracks | 5237 | MDB | 2.54 KM |
| East Farleigh | 5234 | EFL | 5.04 KM |
| Bearsted | 5091 | BSD | 5.53 KM |
Nearby Listings
| Address | Price | Type | Score | Distance |
|---|---|---|---|---|
| Loose Road, Maidstone | £ 795,000 | BUY | 8 / 10 | 0.00 KM |
| Loose Road, Maidstone | £ 550,000 | BUY | 7 / 10 | 0.05 KM |
| Loose Road, Maidstone | £ 425,000 | BUY | 6 / 10 | 0.09 KM |
| Loose Road, Maidstone | £ 500,000 | BUY | 7 / 10 | 0.23 KM |
| Park Way, Maidstone, ME15 | £ 500,000 | BUY | 6 / 10 | 0.26 KM |
Nearby Properties
| Address | Price | Distance |
|---|---|---|
| 177 Loose Road | £ 410,000 | 0.02 KM |
| 179 Loose Road | £ 285,000 | 0.02 KM |
| 175 Loose Road | £ 408,500 | 0.02 KM |
| 171 Loose Road | £ 220,000 | 0.02 KM |
| 134 Loose Road | £ 290,000 | 0.04 KM |