Rampton Baseley says ..
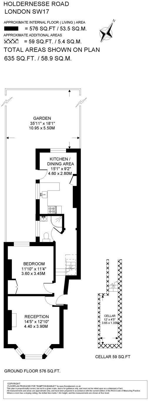
This superb one-double bedroom garden flat is arranged over the ground floor of an attractive Victorian property. Measuring approximately 576 sq ft, the flat is immaculately presented throughout with a wonderful feeling of light and space and the benefit of a 35ft private garden.
Property Oracle says ..
This one-bedroom, one-bathroom flat located on Holdernesse Road, SW17, is presented as a well-maintained property with a private garden. The interior appears to have been recently updated, creating a modern and bright feel. The location in the Nightingale area of Wandsworth offers good access to public transport, with multiple train stations within a short distance. Several highly-rated primary schools are also nearby, making it a potentially attractive option for families. However, it’s important to note that the provided information on nearby properties lacks detailed square footage and specific pricing information, making a precise comparison of value difficult. The provided property photos indicate a small but pleasant garden. The lack of precise details on plot size, alongside the more limited amenities of a single bathroom and bedroom, might mean the asking price reflects a premium for the desirable location and presentation. Further information would allow for a more definitive assessment of value for money. Overall, the property presents a good standard of accommodation in a well-located, desirable area. Prospective buyers should consider the smaller size of the property and garden compared to other options in the surrounding neighbourhood.
Therefore, we give this property 6 / 10. *Disclaimer: This is our option and does constitute a recommendation or financial advice. Do your own research. *
- Price
- 6
- Condition
- 7
- Location
- 7
- Land
- 4
- Bedrooms
- 1
- Bathrooms
- 1
- Sqft (est)
- 635.00
The heatmap indicates the level of crime in the area. The color of the heatmap indicates the crime severity and recency.
Metrics Year-on-Year
- Average area value
- 1,130,667.00 £Increased by 13.32 %
- Est sale value
- 840,105.00 £Increased by 91.74 %
- Average area rental value
- 2,767.00 £/moIncreased by 5.85 %
- Est letting value
- 1,905.00 £/moIncreased by 200.00 %
- Est rental Yield
- 2.94 %Decreased by 6.37 %
- Crime Rate
- 9.00 %Unchanged by 0.00 %
Agent Activity
Rampton Baseley marked this listing as sold.
Rampton Baseley created the listing.
Nearby Schools
| Name | Type | Ofsted | Distance |
|---|---|---|---|
| St Anselm'S Catholic Primary School | Voluntary Aided School | Outstanding | 0.32 KM |
| Rutherford House School | Free Schools | Good | 0.54 KM |
| Fircroft Primary School | Community School | Good | 0.55 KM |
| Hillbrook Primary School And Centre For Childen & Families | Children's Centre | 0.56 KM | |
| Eveline Day School | Other Independent School | 0.65 KM |
Images
Nearby Streets
| Name | Average Price | Average Sqft | Distance |
|---|---|---|---|
| Fovant Hut | £ 0 | 0 | 0.00 KM |
| Upper Tooting Park | £ 480,000 | 0 | 0.00 KM |
| Topsham Road | £ 750,000 | 0 | 0.00 KM |
| Brook Close | £ 0 | 0 | 0.00 KM |
| Pavilion Square | £ 450,000 | 0 | 0.00 KM |
Nearby Transport
| Name | NLC | TLC | Distance |
|---|---|---|---|
| Balham | 5399 | BAL | 1.05 KM |
| Wandsworth Common | 5395 | WSW | 1.05 KM |
| Tooting | 5389 | TOO | 1.96 KM |
| Earlsfield | 5584 | EAD | 3.12 KM |
| Clapham Junction | 5595 | CLJ | 3.19 KM |
Nearby Listings
| Address | Price | Type | Score | Distance |
|---|---|---|---|---|
| Holdernesse Road, Tooting | £ 375,000 | BUY | Unknown | 0.00 KM |
| Holdernesse Road, London | £ 600,000 | BUY | 6 / 10 | 0.01 KM |
| Holdernesse Road, Tooting Bec | £ 1,100,000 | BUY | 6 / 10 | 0.02 KM |
| Holdernesse Road, London, SW17 | £ 280,000 | BUY | 5 / 10 | 0.07 KM |
| Chetwode Road, Tooting Bec, London, SW17 | £ 700,000 | BUY | 7 / 10 | 0.07 KM |
Nearby Properties
| Address | Price | Distance |
|---|---|---|
| 15a Holdernesse Road | £ 351,000 | 0.01 KM |
| 21 Holdernesse Road | £ 545,000 | 0.01 KM |
| 12 Holdernesse Road | £ 765,000 | 0.01 KM |
| Artcroft | £ 460,000 | 0.01 KM |
| 7a Holdernesse Road | £ 525,000 | 0.01 KM |