Devonshire Road, Weston-super-Mare
OC

Devonshire Road, Weston-super-Mare

By Ocean

£ 440,000

Reviews

3 out of 5 stars

Ocean says ..

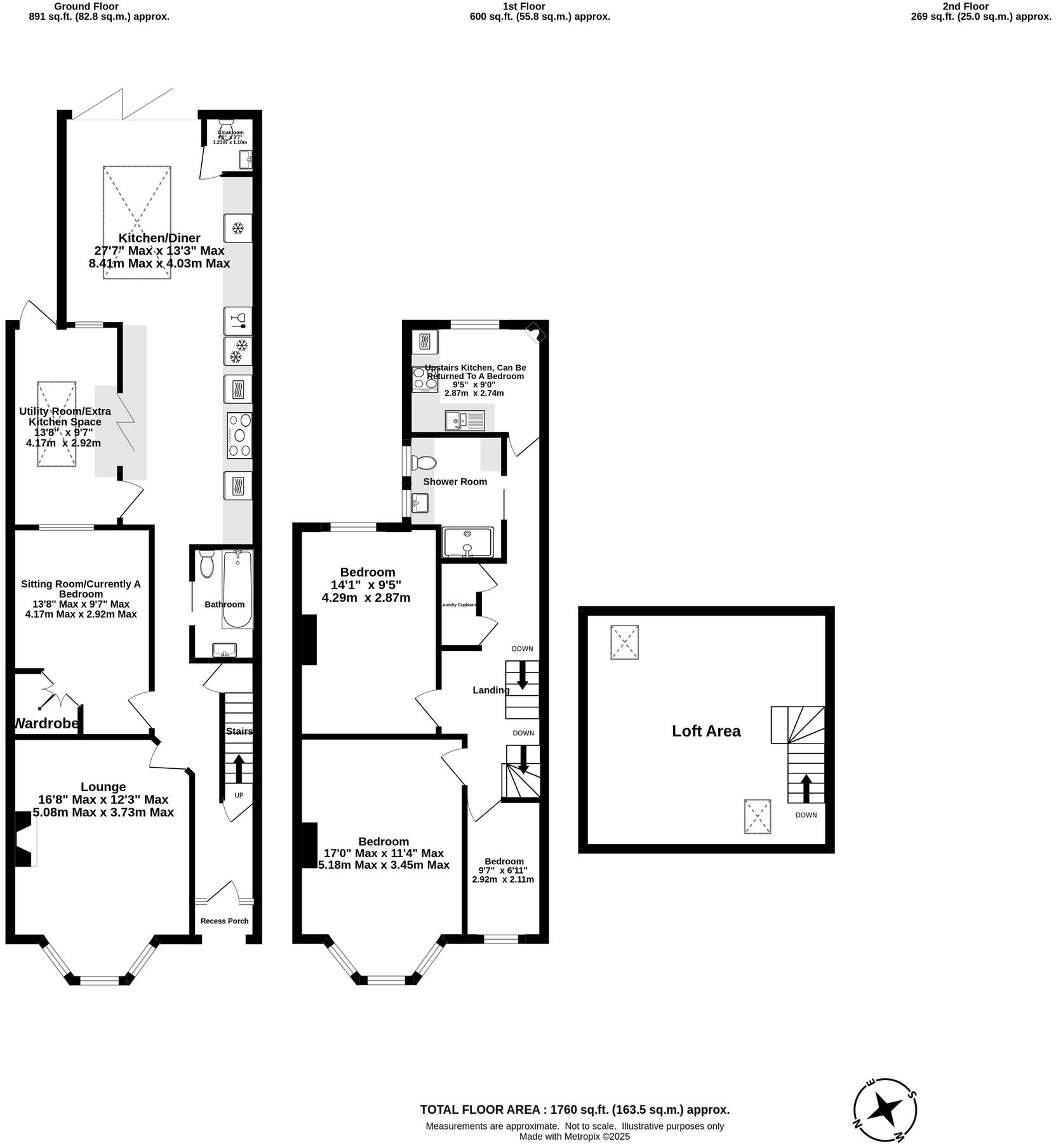
Ocean Weston-super-Mare are delighted to present this majestic and generously proportioned four-bedroom period home. This is a true 'Tardis' property offering unique, versatile accommodation and finished to an exceptional standard. Viewing is a must to appreciate what is on offer.

Property Oracle says ..

Therefore, we give this property 7 / 10. *Disclaimer: This is our option and does constitute a recommendation or financial advice. Do your own research. *

Price
9
Condition
9
Location
7
Land
6
Bedrooms
4
Bathrooms
2
Sqft (est)
1,490.00

The heatmap indicates the level of crime in the area. The color of the heatmap indicates the crime severity and recency.

Metrics Year-on-Year

Average area value
881,250.00 £
Increased by 10.74 %
from 795,785.00 £
Est sale value
1,028,100.00 £
Increased by 54.71 %
from 664,540.00 £
Average area rental value
1,300.00 £/mo
Decreased by 43.36 %
from 2,295.00 £/mo
Est letting value
1,490.00 £/mo
Unchanged by 0.00 %
from 1,490.00 £/mo
Est rental Yield
1.77 %
Decreased by 48.84 %
from 3.46 %
Crime Rate
2.00 %
Unchanged by 0.00 %
from 2.00 %

Agent Activity

  • Ocean created the listing.

Nearby Schools

NameTypeOfstedDistance
Broadoak AcademyAcademy Converter0.64 KM
South Weston Children'S CentreChildren's Centre0.82 KM
Windwhistle Primary SchoolAcademy Converter0.84 KM
Hans Price AcademyAcademy Sponsor LedGood1.06 KM
Bournville Primary SchoolAcademy Converter1.10 KM

Images

Photo 1 Photo 2 Photo 3 Photo 4 Photo 5 Photo 6 Photo 7 Photo 8 Photo 9 Photo 10 Photo 11 Photo 12 Photo 13 Photo 14 Photo 15 Photo 16 Photo 17 Photo 18 Photo 19 Photo 20 Photo 21 Photo 22 Photo 23 Photo 24 Photo 25 Photo 26 Photo 27 Photo 28 Photo 29 Photo 30 Photo 31 Photo 32 Photo 33 Photo 34 Photo 35 Photo 36 Photo 37 Photo 38 Photo 39 Photo 40

Nearby Streets

NameAverage PriceAverage SqftDistance
Malvern Road £ 187,50000.00 KM
Lyndhurst Road £ 000.00 KM
Pembroke Road £ 000.00 KM
Wingard Court £ 335,00000.00 KM
Windwhistle Road £ 745,00000.00 KM

Nearby Transport

NameNLCTLCDistance
Weston-Super-Mare3391WSM1.25 KM
Weston Milton3388WNM3.73 KM
Worle3390WOR7.47 KM

Nearby Listings

AddressPriceTypeScoreDistance
Devonshire Road, Weston-super-Mare £ 440,000BUY7 / 100.00 KM
Devonshire Road, South Ward - Stunningly Presented & Fully Refurbished £ 325,000BUY7 / 100.02 KM
2 X FLATS | WSM £ 175,000BUYUnknown0.03 KM
Devonshire Road, Weston-Super-Mare, BS23 £ 325,000BUY6 / 100.07 KM
2 BED | TOP FLOOR | WSM £ 115,000BUY5 / 100.11 KM

Nearby Properties

AddressPriceDistance
43 Devonshire Road £ 156,0000.01 KM
51 Devonshire Road £ 272,0000.01 KM
57 Devonshire Road £ 226,0000.02 KM
53a Devonshire Road £ 105,0000.02 KM
47 Devonshire Road £ 213,0000.02 KM