Jacobs Steel says ..
We are delighted to offer for sale this spacious three bedroom semi detached family home situated in this popular North Southwick location benefitting from being in a good school catchment area.
Property Oracle says ..
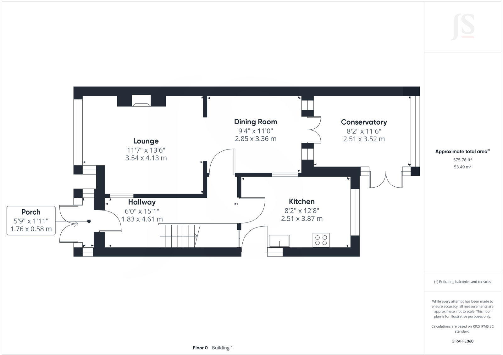
This 3-bedroom semi-detached house in Southwick, West Sussex is listed at £375,000. The property is situated on Old Shoreham Road and benefits from a relatively small plot size of 575.76 sqft. The house itself is 564.66 sqft. While the location is convenient with nearby schools and transportation links, the property appears to be in need of some modernisation and updating, as evidenced in the provided images. The average house price in the area is significantly higher at £760,428, and the average price per sqft is £723. Compared to this, the list price of this property seems relatively low, potentially reflecting its condition. However, without further information on the property’s specific condition and any potential issues, it’s difficult to definitively assess its value.
Therefore, we give this property 5 / 10. *Disclaimer: This is our option and does constitute a recommendation or financial advice. Do your own research. *
- Price
- 7
- Condition
- 4
- Location
- 7
- Land
- 5
- Bedrooms
- 3
- Bathrooms
- 1
- Sqft (est)
- 564.66
- Lot (est)
- 575.76
The heatmap indicates the level of crime in the area. The color of the heatmap indicates the crime severity and recency.
Metrics Year-on-Year
- Average area value
- 797,139.00 £Decreased by 0.25 %
- Est sale value
- 509,323.32 £Increased by 37.92 %
- Average area rental value
- 2,445.00 £/moDecreased by 5.67 %
- Est letting value
- 1,129.32 £/moUnchanged by 0.00 %
- Est rental Yield
- 3.68 %Decreased by 5.40 %
- Crime Rate
- 8.00 %Unchanged by 0.00 %
Agent Activity
Jacobs Steel created the listing.
Nearby Schools
| Name | Type | Ofsted | Distance |
|---|---|---|---|
| Holmbush Primary Academy | Academy Converter | Good | 0.57 KM |
| Shoreham Academy | Academy Sponsor Led | Outstanding | 0.62 KM |
| Herons Dale School | Community Special School | Good | 0.64 KM |
| Glebe Primary School | Community School | Requires improvement | 0.70 KM |
| Shoreham College | Other Independent School | 1.06 KM |
Images
Nearby Streets
| Name | Average Price | Average Sqft | Distance |
|---|---|---|---|
| Clarendon Road | £ 337,475 | 0 | 0.00 KM |
| Elizabeth Road | £ 0 | 0 | 0.00 KM |
| Grange Road | £ 0 | 0 | 0.00 KM |
| Lower Drive | £ 0 | 0 | 0.00 KM |
| Chiltern Close | £ 400,000 | 0 | 0.00 KM |
Nearby Transport
| Name | NLC | TLC | Distance |
|---|---|---|---|
| Southwick | 5286 | SWK | 1.19 KM |
| Fishersgate | 5284 | FSG | 2.62 KM |
| Shoreham-By-Sea | 5277 | SSE | 3.36 KM |
| Portslade | 5276 | PLD | 4.11 KM |
| Aldrington | 5280 | AGT | 6.47 KM |
Nearby Listings
| Address | Price | Type | Score | Distance |
|---|---|---|---|---|
| Old Shoreham Road, Southwick | £ 375,000 | BUY | 5 / 10 | 0.00 KM |
| Downland Avenue, Southwick, Brighton, West Sussex, BN42 | £ 650,000 | BUY | 7 / 10 | 0.06 KM |
| Downland Avenue, Southwick, Brighton, BN42 4RG | £ 600,000 | BUY | 7 / 10 | 0.07 KM |
| Old Shoreham Road, Southwick | £ 350,000 | BUY | 7 / 10 | 0.09 KM |
| Old Shoreham Road, Southwick | £ 325,000 | BUY | 6 / 10 | 0.09 KM |
Nearby Properties
| Address | Price | Distance |
|---|---|---|
| 26 Downland Avenue | £ 324,950 | 0.06 KM |
| 44 Downland Avenue | £ 385,000 | 0.06 KM |
| 34 Downland Avenue | £ 460,000 | 0.06 KM |
| 28 Downland Avenue | £ 195,000 | 0.06 KM |
| 16 Downland Avenue | £ 387,000 | 0.06 KM |