Julie Philpot says ..
On the market for the first time, this spacious and well planned detached chalet bungalow offers great flexibility in design whilst providing the opportunity for further expansion if so desired, and subject to obtaining the necessary approval and consents. The property is very well presented, is ...
Property Oracle says ..
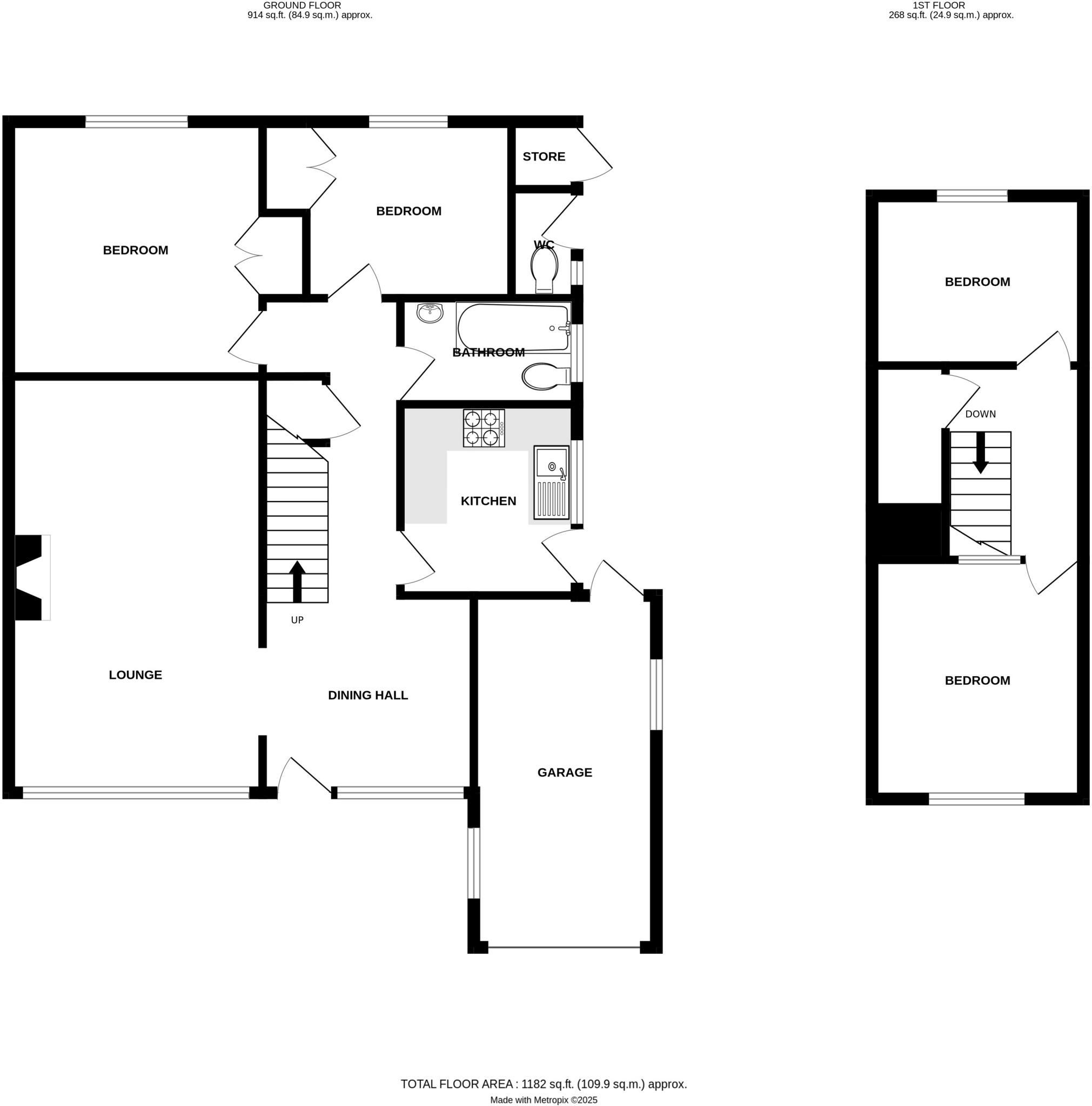
The property is a detached bungalow located in Kenilworth, Warwickshire. It features four bedrooms and one bathroom within 1,182 square feet. The location benefits from its proximity to local schools and Kenilworth Train Station. The property includes a garden, offering outdoor space. The list price is £485,000, which appears reasonable compared to the average property price and price per square foot in the area.
Therefore, we give this property 7 / 10. *Disclaimer: This is our option and does constitute a recommendation or financial advice. Do your own research. *
- Price
- 7
- Condition
- 6
- Location
- 8
- Land
- 7
- Bedrooms
- 4
- Bathrooms
- 1
- Sqft (est)
- 1,182.00
The heatmap indicates the level of crime in the area. The color of the heatmap indicates the crime severity and recency.
Metrics Year-on-Year
- Average area value
- 450,680.00 £Increased by 2.66 %
- Est sale value
- 556,722.00 £Increased by 11.61 %
- Average area rental value
- 1,290.00 £/moIncreased by 8.77 %
- Est letting value
- 1,182.00 £/moUnchanged by 0.00 %
- Est rental Yield
- 3.43 %Increased by 5.86 %
- Crime Rate
- 1.00 %Unchanged by 0.00 %
Agent Activity
Julie Philpot created the listing.
Nearby Schools
| Name | Type | Ofsted | Distance |
|---|---|---|---|
| Kenilworth School And Sixth Form | Academy Converter | 0.55 KM | |
| Thorns Community Infant School | Community School | Good | 0.78 KM |
| Park Hill Junior School | Community School | Good | 0.86 KM |
| Kenilworth Nursery School & Early Years Training Centre | Local Authority Nursery School | Outstanding | 1.61 KM |
| Crackley Hall School | Other Independent School | 1.71 KM |
Images
Nearby Streets
| Name | Average Price | Average Sqft | Distance |
|---|---|---|---|
| Brooke Road | £ 750,000 | 0 | 0.00 KM |
| Denemoor Court | £ 0 | 0 | 0.00 KM |
| Field Close | £ 0 | 0 | 0.00 KM |
| Thomas Bates Road | £ 0 | 0 | 0.00 KM |
| Edwin Gee Road | £ 0 | 0 | 0.00 KM |
Nearby Transport
| Name | NLC | TLC | Distance |
|---|---|---|---|
| Kenilworth | 7985 | KNW | 1.31 KM |
| Warwick | 4600 | WRW | 6.51 KM |
| Canley | 1129 | CNL | 6.62 KM |
| Leamington Spa | 4597 | LMS | 6.88 KM |
| Tile Hill | 1035 | THL | 7.19 KM |
Nearby Listings
| Address | Price | Type | Score | Distance |
|---|---|---|---|---|
| Kineton Road, Kenilworth | £ 485,000 | BUY | 7 / 10 | 0.00 KM |
| Barford Road, Kenilworth | £ 559,950 | BUY | 7 / 10 | 0.08 KM |
| Barford Road, Kenilworth, Warwickshire | £ 585,000 | BUY | Unknown | 0.08 KM |
| Newfield Avenue, Kenilworth | £ 525,000 | BUY | 6 / 10 | 0.12 KM |
| Lindisfarne Drive, Kenilworth | £ 650,000 | BUY | 6 / 10 | 0.18 KM |
Nearby Properties
| Address | Price | Distance |
|---|---|---|
| 7 Kineton Road | £ 250,000 | 0.02 KM |
| 3 Kineton Road | £ 520,000 | 0.02 KM |
| 1 Kineton Road | £ 241,000 | 0.05 KM |
| 10 Kineton Road | £ 497,000 | 0.05 KM |
| 3 Ashow Close | £ 340,000 | 0.08 KM |