Richard Kendall says ..
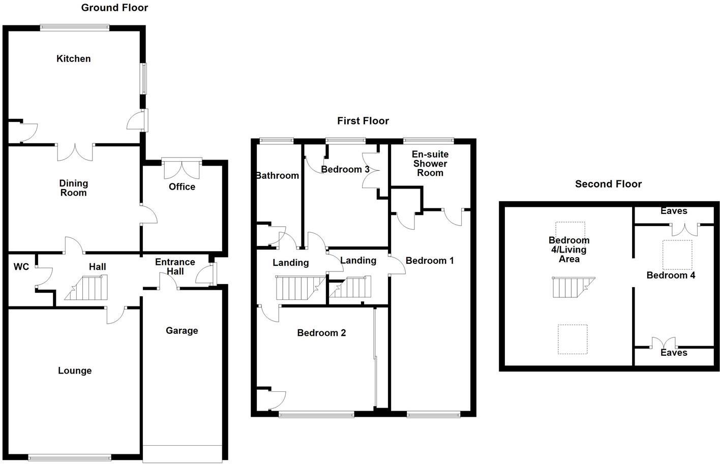
A well proportioned FOUR bedroom detached family home boasting side EXTENSION, spacious accommodation and a good sized rear GARDEN. VIRTUAL TOUR AVAILABLE. Awaitign EPC rating.
Property Oracle says ..
Therefore, we give this property 6 / 10. *Disclaimer: This is our option and does constitute a recommendation or financial advice. Do your own research. *
- Price
- 5
- Condition
- 8
- Location
- 7
- Land
- 7
- Bedrooms
- 4
- Bathrooms
- 2
- Sqft (est)
- 1,599.00
The heatmap indicates the level of crime in the area. The color of the heatmap indicates the crime severity and recency.
Metrics Year-on-Year
- Average area value
- 193,327.00 £Decreased by 28.04 %
- Est sale value
- 348,582.00 £Decreased by 13.15 %
- Average area rental value
- 771.00 £/moDecreased by 4.22 %
- Est letting value
- 0.00 £/mo
- Est rental Yield
- 4.79 %Increased by 33.06 %
- Crime Rate
- 8.00 %Unchanged by 0.00 %
from 268,670.00 £
from 401,349.00 £
from 805.00 £/mo
from 0.00 £/mo
from 3.60 %
from 8.00 %
Agent Activity
Richard Kendall created the listing.
Nearby Schools
| Name | Type | Ofsted | Distance |
|---|---|---|---|
| English Martyrs Catholic Primary School, A Voluntary Academy | Academy Converter | Requires improvement | 0.25 KM |
| St Michael'S Cofe Academy | Academy Sponsor Led | Good | 0.55 KM |
| Wakefield Snapethorpe Primary School | Community School | Outstanding | 1.04 KM |
| Sunbeam Children'S Centre | Children's Centre | 1.13 KM | |
| Evolve Academy | Academy Alternative Provision Sponsor Led | 1.22 KM |
Images
Nearby Streets
| Name | Average Price | Average Sqft | Distance |
|---|---|---|---|
| Hall Road | £ 0 | 0 | 0.00 KM |
| The Brambles | £ 87,000 | 0 | 0.00 KM |
| Wayside Crescent | £ 325,000 | 0 | 0.00 KM |
| Manor Crescent | £ 0 | 0 | 0.00 KM |
| Flanshaw Field Drive | £ 99,000 | 0 | 0.00 KM |
Nearby Transport
| Name | NLC | TLC | Distance |
|---|---|---|---|
| Wakefield Westgate | 8591 | WKF | 3.00 KM |
| Outwood | 8309 | OUT | 4.71 KM |
| Wakefield Kirkgate | 8584 | WKK | 4.91 KM |
| Sandal And Agbrigg | 8358 | SNA | 5.98 KM |
Nearby Listings
| Address | Price | Type | Score | Distance |
|---|---|---|---|---|
| Eden Avenue, Wakefield | £ 475,000 | BUY | 6 / 10 | 0.00 KM |
| Eden Avenue, Wakefield | £ 275,000 | BUY | 7 / 10 | 0.03 KM |
| Poplar Avenue, Wakefield | £ 350,000 | BUY | 6 / 10 | 0.05 KM |
| Poplar Avenue, WAKEFIELD | £ 425,000 | BUY | 5 / 10 | 0.05 KM |
| Hirst Road, Wakefield | £ 225,000 | BUY | Unknown | 0.07 KM |
Nearby Properties
| Address | Price | Distance |
|---|---|---|
| 10 Poplar Avenue | £ 309,500 | 0.05 KM |
| 5 Poplar Avenue | £ 269,000 | 0.05 KM |
| 18 Poplar Avenue | £ 377,500 | 0.05 KM |
| 12 Poplar Avenue | £ 170,000 | 0.05 KM |
| 15 Poplar Avenue | £ 205,000 | 0.05 KM |