Gerard Walk, Westhampnett, PO18
By Henry Adams
£ 397,000
Reviews
3 out of 5 stars
Henry Adams says ..
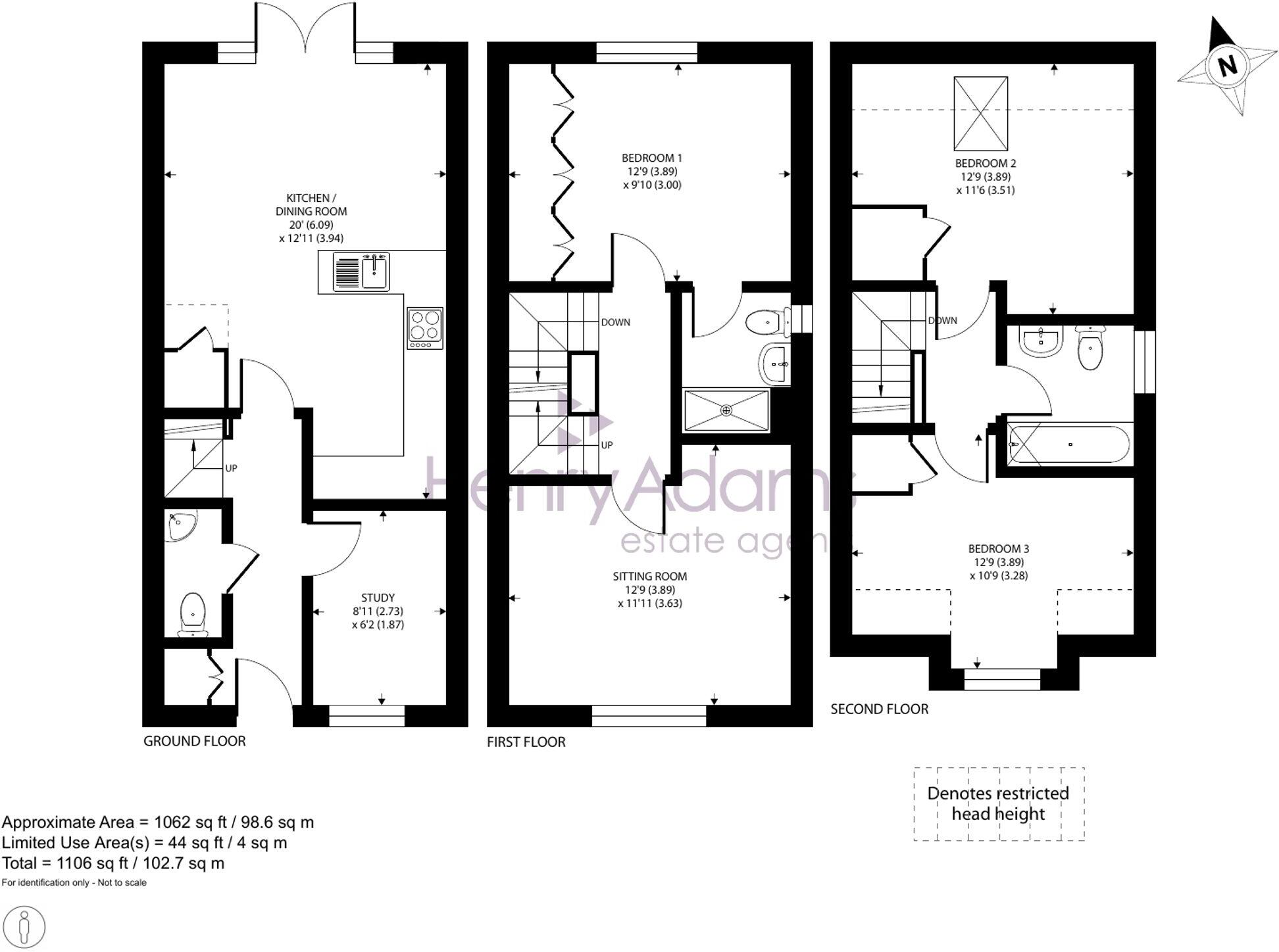
VACANT POSSESSION. Modern three-storey SEMI-DETACHED HOME with open-plan kitchen/dining room, study, first floor sitting room. THREE/FOUR BEDROOMS (two en-suite), garden and ALLOCATED PARKING. Viewing recommended. EPC-C
Property Oracle says ..
This semi-detached property in Westhampnett, Chichester, offers a modern living space with three bedrooms and two bathrooms. The house appears to be well-maintained, featuring a contemporary kitchen and bathrooms. It benefits from a garden, providing outdoor space. The location offers a balance between suburban tranquility and accessibility to local amenities, including schools and transport links. The asking price of £397,000 seems reasonable when compared to other properties in the area and the average price per square foot.
Therefore, we give this property 7 / 10. *Disclaimer: This is our option and does constitute a recommendation or financial advice. Do your own research. *
- Price
- 7
- Condition
- 8
- Location
- 7
- Land
- 6
- Bedrooms
- 3
- Bathrooms
- 2
- Sqft (est)
- 1,683.50
The heatmap indicates the level of crime in the area. The color of the heatmap indicates the crime severity and recency.
Metrics Year-on-Year
- Average area value
- 903,571.00 £Increased by 35.99 %
- Est sale value
- 1,176,766.50 £Increased by 9.39 %
- Average area rental value
- 4,500.00 £/moIncreased by 168.18 %
- Est letting value
- 5,050.50 £/moIncreased by 200.00 %
- Est rental Yield
- 5.98 %Increased by 97.36 %
- Crime Rate
- 3.00 %Unchanged by 0.00 %
Agent Activity
Henry Adams created the listing.
Nearby Schools
| Name | Type | Ofsted | Distance |
|---|---|---|---|
| The March Cofe Primary School | Academy Converter | 0.81 KM | |
| Portfield Primary Academy | Academy Sponsor Led | Good | 1.22 KM |
| Chichester Nursery School | Local Authority Nursery School | Good | 1.38 KM |
| Chichester Children And Family Centre | Children's Centre | 1.38 KM | |
| Westbourne House School | Other Independent School | 1.83 KM |
Images
Nearby Streets
| Name | Average Price | Average Sqft | Distance |
|---|---|---|---|
| Clark Dr | £ 0 | 0 | 0.00 KM |
| Surtees Street | £ 0 | 0 | 0.00 KM |
| Ironstone Way | £ 0 | 0 | 0.00 KM |
| Limestone Road | £ 0 | 0 | 0.00 KM |
| B2144 | £ 220,000 | 0 | 0.00 KM |
Nearby Transport
| Name | NLC | TLC | Distance |
|---|---|---|---|
| Chichester | 5255 | CCH | 3.36 KM |
| Fishbourne (Sussex) | 5261 | FSB | 6.66 KM |
Nearby Listings
| Address | Price | Type | Score | Distance |
|---|---|---|---|---|
| Gerard Walk, Westhampnett, PO18 | £ 397,000 | BUY | 7 / 10 | 0.00 KM |
| Gerard Walk, Westhampnett, Chichester, West Sussex, PO18 | £ 385,000 | BUY | 7 / 10 | 0.03 KM |
| Gerard Walk, Westhampnett, PO18 | £ 350,000 | BUY | Unknown | 0.08 KM |
| Fairman Road, Westhampnett, PO18 | £ 450,000 | BUY | 7 / 10 | 0.10 KM |
| Fairman Road, Westhampnett, Chichester, West Sussex, PO18 | £ 465,000 | BUY | 7 / 10 | 0.20 KM |
Nearby Properties
| Address | Price | Distance |
|---|---|---|
| 31 The Sadlers | £ 249,950 | 0.21 KM |
| 27 The Sadlers | £ 275,000 | 0.21 KM |
| 15 The Sadlers | £ 296,000 | 0.21 KM |
| 7 The Sadlers | £ 259,950 | 0.21 KM |
| 20 The Sadlers | £ 295,000 | 0.21 KM |