HA
Ledcameroch Gardens, Dunblane, FK15
By Halliday Homes
£ 445,000
Reviews
3 out of 5 stars
Halliday Homes says ..
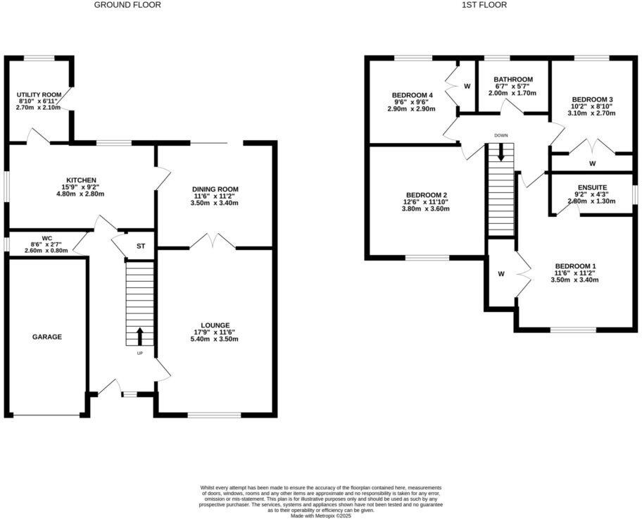
Halliday Homes are delighted to present to the market this superb, detached family home, ideally situated in a quiet and highly desirable residential area within the historic Cathedral City of Dunblane. Beautifully maintained by the current owners, the property offers spacious and flexible accomm...
Property Oracle says ..
Therefore, we give this property 7 / 10. *Disclaimer: This is our option and does constitute a recommendation or financial advice. Do your own research. *
- Price
- 8
- Condition
- 7
- Location
- 8
- Land
- 7
- Bedrooms
- 4
- Bathrooms
- 2
- Sqft (est)
- 1,091.35
The heatmap indicates the level of crime in the area. The color of the heatmap indicates the crime severity and recency.
Metrics Year-on-Year
- Average area value
- 534,995.00 £Increased by 15.67 %
- Est sale value
- 710,468.85 £Increased by 44.35 %
- Average area rental value
- 911.00 £/moIncreased by 2.02 %
- Est letting value
- 1,091.35 £/mo
- Est rental Yield
- 2.04 %Decreased by 12.07 %
- Crime Rate
- 0.00 %
from 462,536.00 £
from 492,198.85 £
from 893.00 £/mo
from 0.00 £/mo
from 2.32 %
from 0.00 %
Agent Activity
Halliday Homes created the listing.
Images
Nearby Streets
| Name | Average Price | Average Sqft | Distance |
|---|---|---|---|
| Ledcameroch Gardens | £ 0 | 0 | 0.00 KM |
| Chisholm Avenue | £ 0 | 0 | 0.00 KM |
| Daniel Avenue | £ 189,998 | 0 | 0.00 KM |
| The Crescent | £ 0 | 0 | 0.00 KM |
| St Mary's Drive | £ 450,000 | 0 | 0.00 KM |
Nearby Transport
| Name | NLC | TLC | Distance |
|---|---|---|---|
| Dunblane | 8713 | DBL | 1.40 KM |
| Bridge Of Allan | 9889 | BEA | 4.13 KM |
| Stirling | 9888 | STG | 8.51 KM |
Nearby Listings
| Address | Price | Type | Score | Distance |
|---|---|---|---|---|
| Ledcameroch Gardens, Dunblane, FK15 | £ 445,000 | BUY | 7 / 10 | 0.00 KM |
| Ledcameroch Gardens, Dunblane, FK15 | £ 360,000 | BUY | 7 / 10 | 0.05 KM |
| Perth Road, Dunblane, FK15 | £ 320,000 | BUY | 7 / 10 | 0.12 KM |
| Perth Road, Dunblane, FK15 | £ 149,000 | BUY | Unknown | 0.26 KM |
| Chisholm Avenue, Dunblane, FK15 | £ 320,000 | BUY | Unknown | 0.29 KM |