Bell Street, The Ropery, Hebburn
By WalkersXchange
£ 207,950
Reviews
3 out of 5 stars
WalkersXchange says ..
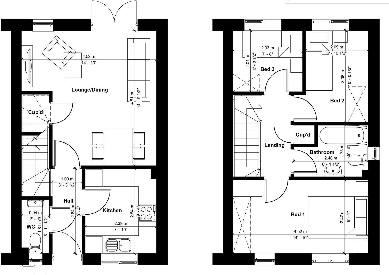
The Tavor, Plots 63, 64, 65 & 66 with south east facing rear garden and two parking spaces - The Ropery incorporates a variety of house styles that are designed to captivate today's discerning buyers, offering a blend of modern amenities, stylish design, and functional living...
Property Oracle says ..
This is a modern semi-detached property located in Hebburn North. The property benefits from a garden and appears to be in excellent condition, suggesting it requires no immediate renovation. The location offers access to local schools and transportation links. The price seems reasonable compared to other properties in the area, making it an attractive option for potential buyers.
Therefore, we give this property 7 / 10. *Disclaimer: This is our option and does constitute a recommendation or financial advice. Do your own research. *
- Price
- 8
- Condition
- 9
- Location
- 7
- Land
- 7
- Bedrooms
- 3
- Bathrooms
- 1
- Sqft (est)
- 228.63
The heatmap indicates the level of crime in the area. The color of the heatmap indicates the crime severity and recency.
Metrics Year-on-Year
- Average area value
- 410,714.00 £Increased by 0.52 %
- Est sale value
- 96,024.60 £Increased by 4.48 %
- Average area rental value
- 1,363.00 £/moDecreased by 8.52 %
- Est letting value
- 228.63 £/moUnchanged by 0.00 %
- Est rental Yield
- 3.98 %Decreased by 9.13 %
- Crime Rate
- 12.00 %Unchanged by 0.00 %
Agent Activity
WalkersXchange created the listing.
Nearby Schools
| Name | Type | Ofsted | Distance |
|---|---|---|---|
| St Aloysius Catholic Infant School, Hebburn | Academy Converter | 0.44 KM | |
| St Aloysius Catholic Junior School Academy | Academy Converter | Outstanding | 0.47 KM |
| The Sue Hedley Nursery School | Local Authority Nursery School | Outstanding | 1.04 KM |
| South Tyneside Early Excellence Centre | Children's Centre | 1.11 KM | |
| Keelman'S Way School | Foundation Special School | Good | 1.19 KM |
Images
Nearby Streets
| Name | Average Price | Average Sqft | Distance |
|---|---|---|---|
| Thistle Street | £ 175,000 | 0 | 0.00 KM |
| Thomas Drive | £ 330,000 | 0 | 0.00 KM |
| B1297 | £ 0 | 0 | 0.00 KM |
| Alfred Street | £ 0 | 0 | 0.00 KM |
| Saint John's Walk | £ 0 | 0 | 0.00 KM |
Nearby Transport
| Name | NLC | TLC | Distance |
|---|---|---|---|
| Heworth | 7766 | HEW | 4.91 KM |
| Manors | 7603 | MAS | 9.46 KM |
Nearby Listings
| Address | Price | Type | Score | Distance |
|---|---|---|---|---|
| The Ayalon - Plot 33, Bell Street, Hebburn | £ 339,950 | BUY | 7 / 10 | 0.00 KM |
| Bell Street, The Ropery, Hebburn | £ 207,950 | BUY | 7 / 10 | 0.00 KM |
| The Alexander - Plot 26, Bell Street, Hebburn | £ 244,950 | BUY | Unknown | 0.00 KM |
| The Alexander - Plot 27, Bell Street, Hebburn | £ 244,950 | BUY | Unknown | 0.00 KM |
| The Alexander - Plot 28, Bell Street, Hebburn | £ 244,950 | BUY | Unknown | 0.00 KM |
Nearby Properties
| Address | Price | Distance |
|---|---|---|
| 52 Landfall Drive | £ 74,000 | 0.10 KM |
| 1 Landfall Drive | £ 123,750 | 0.10 KM |
| 64 Landfall Drive | £ 129,950 | 0.10 KM |
| 72 Landfall Drive | £ 83,000 | 0.10 KM |
| 6 Landfall Drive | £ 110,075 | 0.10 KM |