ST
Simpson Way, Wymondham, Norwich
By Starkings & Watson
£ 485,000
Reviews
3 out of 5 stars
Starkings & Watson says ..
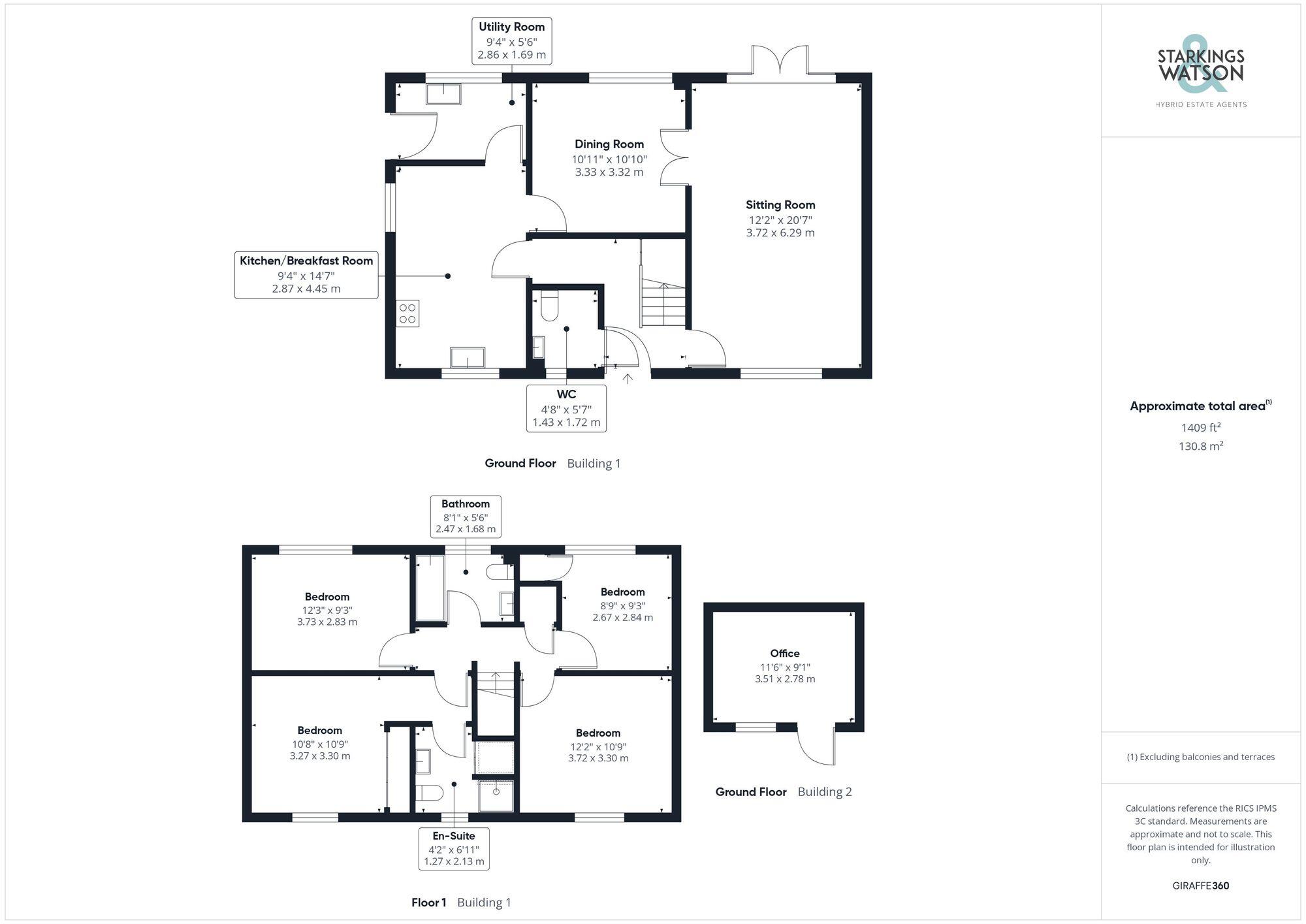
MOTIVATED VENDOR! Located within a sought-after CUL-DE-SAC residential area, this stunning executive style FOUR BEDROOM DETACHED HOUSE presents an ideal retreat for families seeking contemporary living. Boasting over 1400 SQFT (stms) of internal accommodation all of which is presented in excellen...
Property Oracle says ..
Therefore, we give this property 6 / 10. *Disclaimer: This is our option and does constitute a recommendation or financial advice. Do your own research. *
- Price
- 4
- Condition
- 8
- Location
- 7
- Land
- 7
- Bedrooms
- 4
- Bathrooms
- 2
- Sqft (est)
- 1,089.88
The heatmap indicates the level of crime in the area. The color of the heatmap indicates the crime severity and recency.
Metrics Year-on-Year
- Average area value
- 346,250.00 £Increased by 11.21 %
- Est sale value
- 323,694.36 £Increased by 3.12 %
- Average area rental value
- 1,105.00 £/moDecreased by 1.78 %
- Est letting value
- 0.00 £/moDecreased by 100.00 %
- Est rental Yield
- 3.83 %Decreased by 11.75 %
- Crime Rate
- 5.00 %Unchanged by 0.00 %
from 311,337.00 £
from 313,885.44 £
from 1,125.00 £/mo
from 1,089.88 £/mo
from 4.34 %
from 5.00 %
Agent Activity
Starkings & Watson created the listing.
Nearby Schools
| Name | Type | Ofsted | Distance |
|---|---|---|---|
| Ashleigh Primary School And Nursery, Wymondham | Community School | Outstanding | 1.61 KM |
| Wymondham Area Children'S Centre | Children's Centre | 1.65 KM | |
| Wymondham High Academy | Academy Converter | Good | 2.56 KM |
| Robert Kett Primary School | Foundation School | Requires improvement | 2.68 KM |
| Browick Road Primary And Nursery School | Community School | Outstanding | 2.88 KM |
Images
Nearby Streets
| Name | Average Price | Average Sqft | Distance |
|---|---|---|---|
| Barnes Close | £ 0 | 0 | 0.00 KM |
| Wisteria Drive | £ 441,667 | 0 | 0.00 KM |
| Croft Way | £ 0 | 0 | 0.00 KM |
| Granger Close | £ 0 | 0 | 0.00 KM |
| Turner Close | £ 0 | 0 | 0.00 KM |
Nearby Transport
| Name | NLC | TLC | Distance |
|---|---|---|---|
| Wymondham | 7383 | WMD | 3.17 KM |
| Spooner Row | 7379 | SPN | 8.03 KM |
Nearby Listings
| Address | Price | Type | Score | Distance |
|---|---|---|---|---|
| Simpson Way, Wymondham, Norwich | £ 485,000 | BUY | 6 / 10 | 0.00 KM |
| Simpson Way, Wymondham, Norfolk, NR18 | £ 350,000 | BUY | 7 / 10 | 0.06 KM |
| Jeckyll Road, Wymondham, NR18 | £ 260,000 | BUY | 7 / 10 | 0.07 KM |
| Jeckyll Road, Wymondham, NR18 | £ 290,000 | BUY | 7 / 10 | 0.07 KM |
| Coldham Grove, Wymondham, Norwich | £ 375,000 | BUY | 6 / 10 | 0.15 KM |
Nearby Properties
| Address | Price | Distance |
|---|---|---|
| 6 Blake Drive | £ 204,950 | 0.05 KM |
| 4 Blake Drive | £ 239,950 | 0.05 KM |
| 9 Pond Way | £ 277,950 | 0.05 KM |
| 13 Pond Way | £ 440,000 | 0.05 KM |
| 7 Pond Way | £ 357,500 | 0.05 KM |