Coventry Road, Fillongley, CV7
By Bayzos Estate Agents
£ 270,000
Reviews
3 out of 5 stars
Bayzos Estate Agents says ..
Sought After Location Of Fillongley | No Upward Chain | Open Plan Living - Kitchen & Dining Space | Investors Or First Time Buyers Attention | Opportunity To Make It Your Own | Low Maintenance Rear Garden | Separate Toilet & Bathroom On First Floor | Garage to Potentially Rent From Council - Subj...
Property Oracle says ..
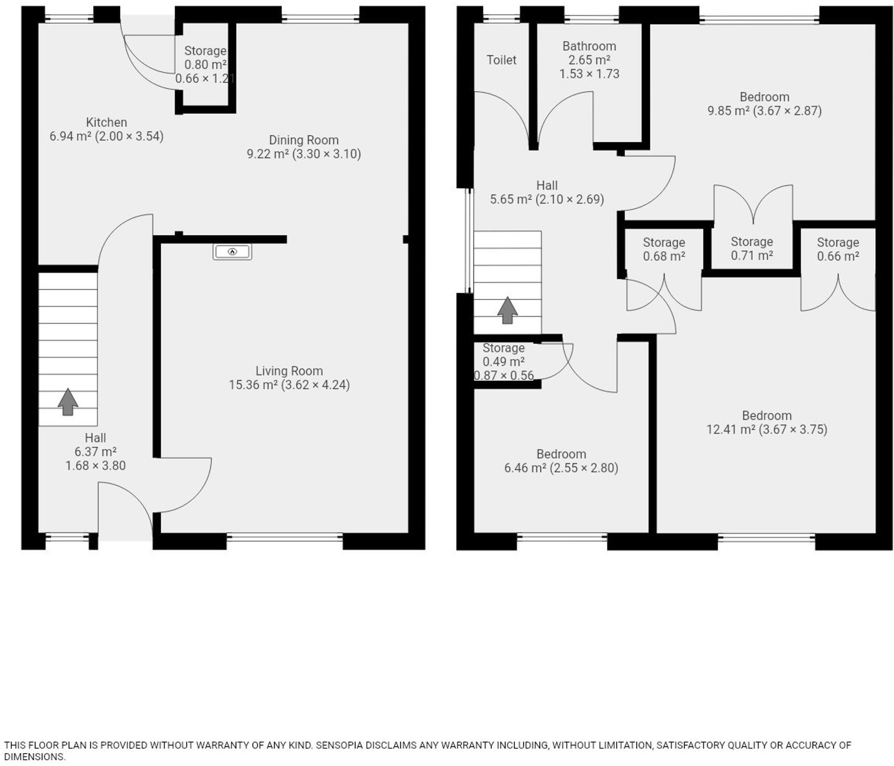
This is a three-bedroom semi-detached house located on Coventry Road, Fillongley. The property offers a balance of rural living with convenient access to nearby amenities and transportation. The house includes a garden, which enhances its appeal. While the property is in reasonable condition, there is room for further improvements. The asking price of £270,000 appears to be fair, making it an attractive option for potential buyers.
Therefore, we give this property 6 / 10. *Disclaimer: This is our option and does constitute a recommendation or financial advice. Do your own research. *
- Price
- 8
- Condition
- 6
- Location
- 6
- Land
- 7
- Bedrooms
- 3
- Bathrooms
- 1
- Sqft (est)
- 870.80
The heatmap indicates the level of crime in the area. The color of the heatmap indicates the crime severity and recency.
Metrics Year-on-Year
- Average area value
- 683,165.00 £Decreased by 33.92 %
- Est sale value
- 328,291.60 £Increased by 12.20 %
- Average area rental value
- 1,373.00 £/moDecreased by 34.56 %
- Est letting value
- 0.00 £/mo
- Est rental Yield
- 2.41 %Decreased by 1.23 %
- Crime Rate
- 63.00 %Unchanged by 0.00 %
Agent Activity
Bayzos Estate Agents created the listing.
Nearby Schools
| Name | Type | Ofsted | Distance |
|---|---|---|---|
| Bournebrook Cofe Primary School | Voluntary Controlled School | Good | 0.38 KM |
| Corley Centre | Community Special School | Good | 3.29 KM |
| Arley Primary School | Community School | Good | 3.36 KM |
| Arc School Old Arley | Other Independent Special School | Good | 3.78 KM |
| Arc School Ansley | Other Independent Special School | Good | 4.80 KM |
Images
Nearby Streets
| Name | Average Price | Average Sqft | Distance |
|---|---|---|---|
| St Mary's Road | £ 0 | 0 | 0.00 KM |
| The Oaks | £ 0 | 0 | 0.00 KM |
Nearby Transport
| Name | NLC | TLC | Distance |
|---|---|---|---|
| Tile Hill | 1035 | THL | 9.55 KM |
| Canley | 1129 | CNL | 9.95 KM |
Nearby Listings
| Address | Price | Type | Score | Distance |
|---|---|---|---|---|
| Coventry Road, Fillongley, CV7 | £ 270,000 | BUY | 6 / 10 | 0.00 KM |
| Castle Close, Fillongley, Coventry, Warwickshire, CV7 | £ 625,000 | BUY | 7 / 10 | 0.06 KM |
| Castle View, Fillongley, Coventry, CV7 8ET | £ 150,000 | BUY | 6 / 10 | 0.20 KM |
| Coventry Road, Fillongley, Coventry, CV7 | £ 900,000 | BUY | 7 / 10 | 0.22 KM |
| Coventry Road, Fillongley, CV7 | £ 430,000 | BUY | 6 / 10 | 0.24 KM |
Nearby Properties
| Address | Price | Distance |
|---|---|---|
| 29 Eastlang Road | £ 167,500 | 0.04 KM |
| 1 Castle Close | £ 195,000 | 0.06 KM |
| 5 Eastlang Road | £ 199,950 | 0.07 KM |
| 21 Eastlang Road | £ 251,000 | 0.07 KM |
| 7 Eastlang Road | £ 72,500 | 0.07 KM |