Laskowski & Co says ..
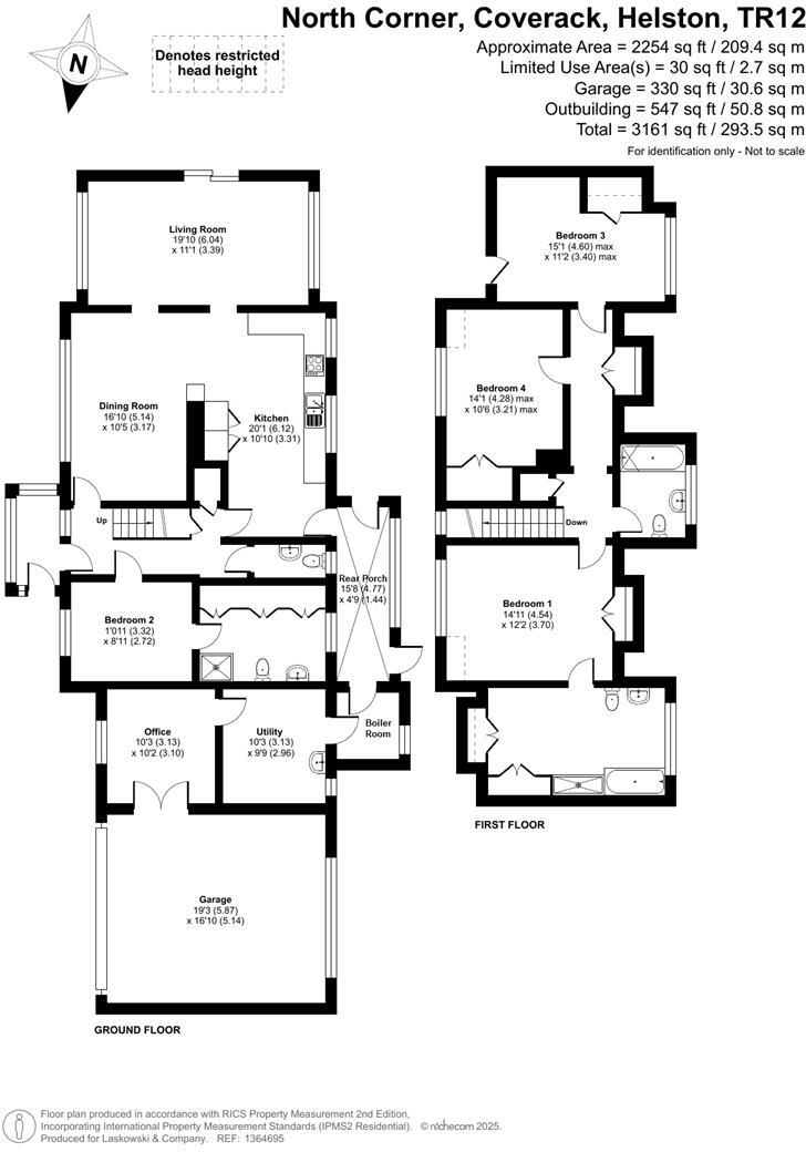
A wonderful opportunity to acquire this detached 4/5 bedroom detached dormer bungalow, situated in a tucked away position in the highly sought-after and picturesque village of Coverack. 'Tall Trees' occupies a generous plot of approximately 0.5 an acre, to include an extensive lawned garden which...
Property Oracle says ..
This detached property in Coverack, Cornwall, presents a desirable opportunity. It features 4 bedrooms and 3 bathrooms, making it suitable for families. The interior appears to be in good condition, with modern bathrooms, though the kitchen could benefit from updating. A significant asset is the large garden, offering ample outdoor space. The location in Coverack is attractive, being a coastal village with a nearby primary school. While the price per square foot is above the local average, the overall condition, size, and location justify the asking price. The property includes a garage and patio, adding to its appeal. Overall, it’s a well-rounded property in a sought-after location.
Therefore, we give this property 7 / 10. *Disclaimer: This is our option and does constitute a recommendation or financial advice. Do your own research. *
- Price
- 7
- Condition
- 7
- Location
- 8
- Land
- 9
- Bedrooms
- 4
- Bathrooms
- 3
- Sqft (est)
- 1,803.17
The heatmap indicates the level of crime in the area. The color of the heatmap indicates the crime severity and recency.
Metrics Year-on-Year
- Average area value
- 380,500.00 £Decreased by 7.95 %
- Est sale value
- 549,966.85 £Increased by 0.66 %
- Average area rental value
- 1,550.00 £/moIncreased by 31.91 %
- Est letting value
- 1,803.17 £/mo
- Est rental Yield
- 4.89 %Increased by 43.40 %
- Crime Rate
- 0.00 %
Agent Activity
Laskowski & Co created the listing.
Nearby Schools
| Name | Type | Ofsted | Distance |
|---|---|---|---|
| Coverack Primary School | Academy Converter | Good | 0.83 KM |
| St Keverne Community Primary School | Academy Converter | Good | 2.57 KM |
| Manaccan Primary School | Academy Converter | Good | 7.08 KM |
| Mawnan Cofe Va Primary School | Voluntary Aided School | Good | 9.57 KM |
Images
Nearby Streets
| Name | Average Price | Average Sqft | Distance |
|---|---|---|---|
| Tregisky Lane | £ 995,000 | 0 | 0.00 KM |
Nearby Listings
| Address | Price | Type | Score | Distance |
|---|---|---|---|---|
| Coverack, Helston | £ 750,000 | BUY | 7 / 10 | 0.00 KM |
| North Corner, Coverack, Helston, Cornwall | £ 800,000 | BUY | Unknown | 0.06 KM |
| Versatile home in the village of Coverack | £ 800,000 | BUY | 6 / 10 | 0.46 KM |
| North Corner, Coverack, Helston, Cornwall | £ 1,200,000 | BUY | 7 / 10 | 0.48 KM |
| Coverack, Impressive detached bungalow in village setting | £ 675,000 | BUY | 7 / 10 | 0.48 KM |
Nearby Properties
| Address | Price | Distance |
|---|---|---|
| Sunnymead | £ 695,000 | 0.28 KM |
| Rose Cottage | £ 550,000 | 0.28 KM |
| Penmarth House | £ 1,150,000 | 0.28 KM |
| Trampers | £ 257,000 | 0.28 KM |
| Menavean | £ 750,000 | 0.28 KM |