Larkspur Circle, Thurston, Bury St. Edmunds
By William H. Brown
£ 410,000
Reviews
3 out of 5 stars
William H. Brown says ..
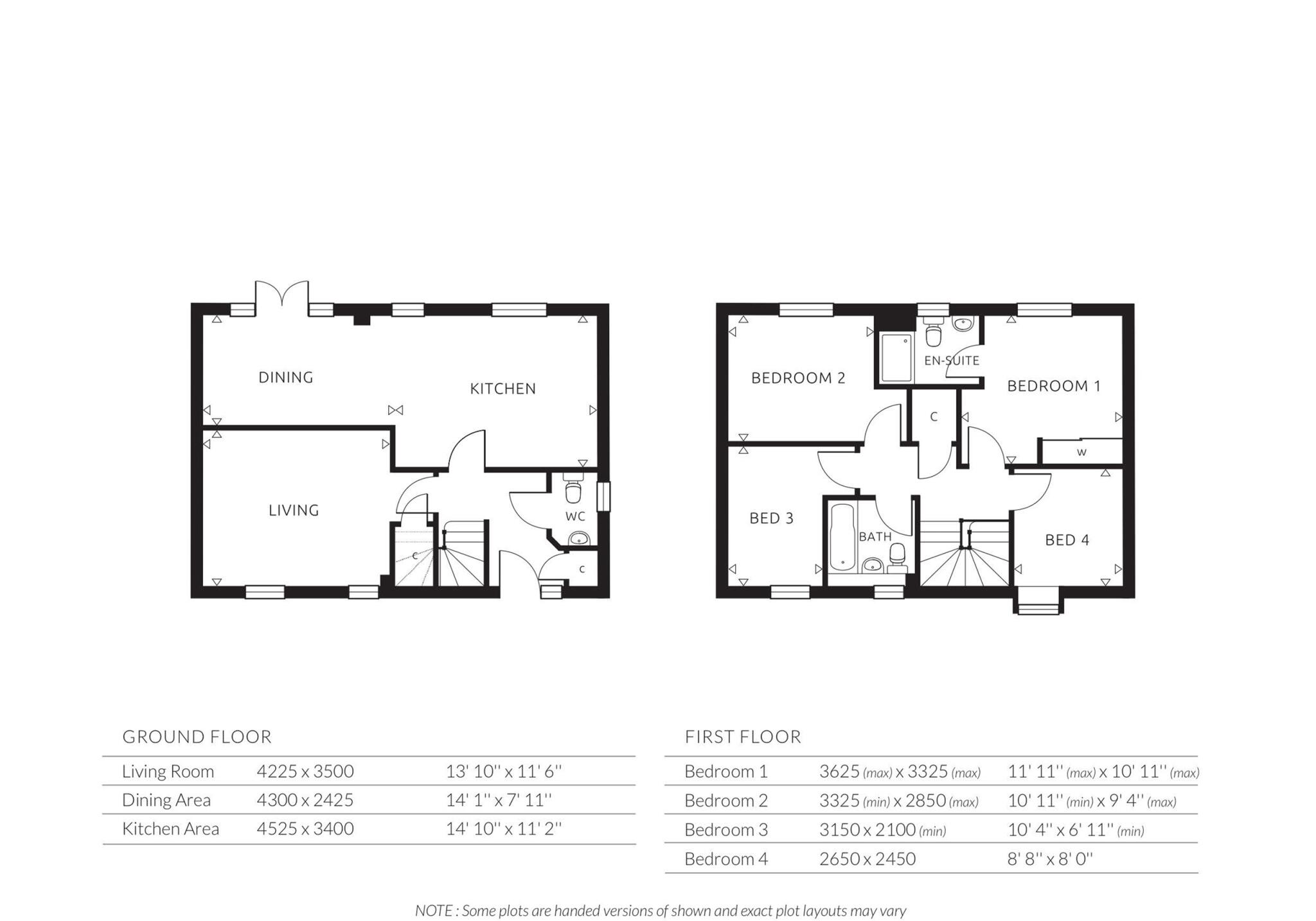
SHOW HOME OPEN DAILY, 10AM-5PM. Plot 3, one of just three Brambling's house types on the Hedgerows development, is a stunning 4 bed detached house with open plan kitchen diner, separate living room, cloakroom, family bathroom & En-suite, a generous enclosed rear garden, garage with power & light.
Property Oracle says ..
This is a modern detached property in Thurston, Suffolk. It features 4 bedrooms and 2 bathrooms. The property is located in a new build estate and is close to local amenities such as a train station and a school. The condition of the property appears to be excellent, and it likely benefits from modern fixtures and fittings. The price seems reasonable compared to the average in the area.
Therefore, we give this property 7 / 10. *Disclaimer: This is our option and does constitute a recommendation or financial advice. Do your own research. *
- Price
- 7
- Condition
- 9
- Location
- 7
- Land
- 6
- Bedrooms
- 4
- Bathrooms
- 2
The heatmap indicates the level of crime in the area. The color of the heatmap indicates the crime severity and recency.
Metrics Year-on-Year
- Average area value
- 418,571.00 £Decreased by 7.66 %
- Average area rental value
- 1,600.00 £/moIncreased by 55.19 %
- Est rental Yield
- 4.59 %Increased by 68.13 %
- Crime Rate
- 13.00 %Unchanged by 0.00 %
Agent Activity
William H. Brown created the listing.
Nearby Schools
| Name | Type | Ofsted | Distance |
|---|---|---|---|
| Thurston Community College | Community School | Good | 0.23 KM |
| Rougham Church Of England Primary School | Academy Sponsor Led | 3.24 KM | |
| Great Barton Church Of England Primary Academy | Academy Converter | 4.82 KM | |
| Ixworth Church Of England Primary School | Academy Sponsor Led | 5.64 KM | |
| Sybil Andrews Academy | Academy Sponsor Led | Requires improvement | 5.99 KM |
Images
Nearby Streets
| Name | Average Price | Average Sqft | Distance |
|---|---|---|---|
| Lady Road | £ 346,495 | 0 | 0.00 KM |
| Skipper Close | £ 370,000 | 0 | 0.00 KM |
| The Acorns | £ 575,000 | 0 | 0.00 KM |
| Meadow Lane | £ 0 | 0 | 0.00 KM |
| Hunter Drive | £ 0 | 0 | 0.00 KM |
Nearby Transport
| Name | NLC | TLC | Distance |
|---|---|---|---|
| Thurston | 7356 | TRS | 0.59 KM |
Nearby Listings
| Address | Price | Type | Score | Distance |
|---|---|---|---|---|
| Norton Road, Thurston, Bury St. Edmunds | £ 425,000 | BUY | 7 / 10 | 0.00 KM |
| Norton Road, Thurston, Bury St. Edmunds | £ 390,000 | BUY | 7 / 10 | 0.00 KM |
| Norton Road, Thurston, Bury St. Edmunds | £ 299,000 | BUY | 7 / 10 | 0.00 KM |
| Norton Road, Thurston, Bury St. Edmunds | £ 350,000 | BUY | 9 / 10 | 0.00 KM |
| Rylands Close, Thurston, Bury St. Edmunds | £ 290,000 | BUY | 7 / 10 | 0.00 KM |
Nearby Properties
| Address | Price | Distance |
|---|---|---|
| 6 Rylands Close | £ 97,500 | 0.00 KM |
| 10 Barleyfields | £ 161,500 | 0.15 KM |
| 2 Barleyfields | £ 200,000 | 0.15 KM |
| 28 Barleyfields | £ 220,000 | 0.15 KM |
| 44 Barleyfields | £ 480,000 | 0.15 KM |