VI
Bramston Road, Harlesden, London, NW10 5TX
By Vita Properties
£ 1,575,000
Reviews
3 out of 5 stars
Vita Properties says ..
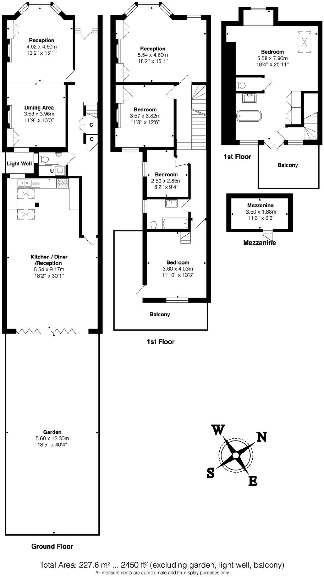
Kate Brookfield x Vita Properties are delighted to present this outstanding five bedroom period home on Bramston Road.
Property Oracle says ..
Therefore, we give this property 7 / 10. *Disclaimer: This is our option and does constitute a recommendation or financial advice. Do your own research. *
- Price
- 7
- Condition
- 8
- Location
- 7
- Land
- 7
- Bedrooms
- 5
- Bathrooms
- 2
- Sqft (est)
- 2,449.87
- Lot (est)
- 741.42
The heatmap indicates the level of crime in the area. The color of the heatmap indicates the crime severity and recency.
Metrics Year-on-Year
- Average area value
- 745,000.00 £Decreased by 11.71 %
- Est sale value
- 1,874,150.55 £Decreased by 15.09 %
- Average area rental value
- 2,378.00 £/moIncreased by 14.49 %
- Est letting value
- 4,899.74 £/moUnchanged by 0.00 %
- Est rental Yield
- 3.83 %Increased by 29.83 %
- Crime Rate
- 4.00 %Unchanged by 0.00 %
from 843,775.00 £
from 2,207,332.87 £
from 2,077.00 £/mo
from 4,899.74 £/mo
from 2.95 %
from 4.00 %
Agent Activity
Vita Properties created the listing.
Nearby Schools
| Name | Type | Ofsted | Distance |
|---|---|---|---|
| Newman Catholic College | Voluntary Aided School | Good | 0.16 KM |
| Roundwood School And Community Centre | Free Schools Alternative Provision | 0.34 KM | |
| Capital City Academy | Academy Sponsor Led | Good | 0.39 KM |
| Furness Primary School | Academy Converter | Good | 0.41 KM |
| Treetops Children'S Centre | Children's Centre | 0.58 KM |
Images
Nearby Streets
| Name | Average Price | Average Sqft | Distance |
|---|---|---|---|
| Wrottesley Road | £ 0 | 0 | 0.00 KM |
| Wrottesley Road | £ 0 | 0 | 0.00 KM |
| Wrottesley Road | £ 0 | 0 | 0.00 KM |
| Wrottesley Road | £ 0 | 0 | 0.00 KM |
| Wrottesley Road | £ 0 | 0 | 0.00 KM |
Nearby Transport
| Name | NLC | TLC | Distance |
|---|---|---|---|
| Willesden Junction | 1457 | WIJ | 0.92 KM |
| Kensal Green | 1447 | KNL | 1.59 KM |
| Kensal Rise | 1448 | KNR | 2.00 KM |
| Harlesden | 1521 | HDN | 2.20 KM |
| Brondesbury Park | 1438 | BSP | 3.08 KM |
Nearby Listings
| Address | Price | Type | Score | Distance |
|---|---|---|---|---|
| Bramston Road, Harlesden, London, NW10 5TX | £ 1,575,000 | BUY | 7 / 10 | 0.00 KM |
| 28 Bramston Road, London, NW10 5TU | £ 800,000 | BUY | 6 / 10 | 0.05 KM |
| Bramston Road, London, NW10 | £ 575,000 | BUY | 6 / 10 | 0.05 KM |
| Bramston Road, Kensal Rise | £ 550,000 | BUY | 5 / 10 | 0.07 KM |
| Bramston Road, Kensal Rise, London, NW10 | £ 1,575,000 | BUY | 7 / 10 | 0.10 KM |
Nearby Properties
| Address | Price | Distance |
|---|---|---|
| 25 Bramston Road | £ 227,500 | 0.08 KM |
| 31a Bramston Road | £ 567,500 | 0.08 KM |
| 7 Bramston Road | £ 1,450,000 | 0.08 KM |
| 35b Bramston Road | £ 283,000 | 0.08 KM |
| 19 Bramston Road | £ 500,000 | 0.08 KM |