Barker Road, Sutton Coldfield, B74 2NY
By Chosen Home
£ 900,000
Reviews
4 out of 5 stars
Chosen Home says ..
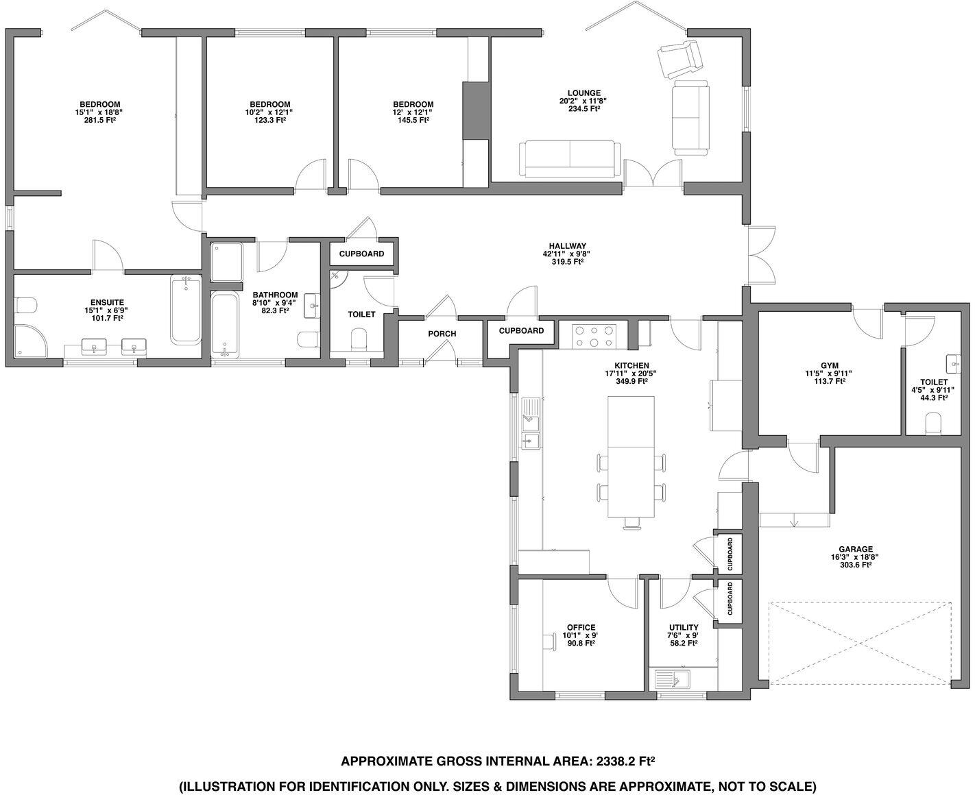
Welcome to 28 Barker Road... This exceptional three-bedroom detached bungalow is set on a substantial plot with impressive frontage and a beautifully landscaped south-facing rear garden. Offering generous internal space and fantastic outdoor living, it’s a rare oppor...
Property Oracle says ..
The property is a detached bungalow located on Barker Road, Sutton Coldfield. It is in close proximity to schools and transportation hubs. The bungalow appears to be in good condition, with a modern kitchen and well-maintained bathrooms. The property features a well-manicured garden with a patio area and a summer house, offering ample outdoor space. Given the property’s condition, location, and size, it appears to be reasonably priced and offers good value for money.
Therefore, we give this property 8 / 10. *Disclaimer: This is our option and does constitute a recommendation or financial advice. Do your own research. *
- Price
- 9
- Condition
- 8
- Location
- 9
- Land
- 7
- Bedrooms
- 3
- Bathrooms
- 2
- Sqft (est)
- 2,248.80
The heatmap indicates the level of crime in the area. The color of the heatmap indicates the crime severity and recency.
Metrics Year-on-Year
- Average area value
- 1,363,333.00 £Increased by 35.76 %
- Est sale value
- 1,704,590.40 £Increased by 71.88 %
- Average area rental value
- 2,132.00 £/moIncreased by 10.07 %
- Est letting value
- 2,248.80 £/mo
- Est rental Yield
- 1.88 %Decreased by 18.61 %
- Crime Rate
- 1.00 %Unchanged by 0.00 %
Agent Activity
Chosen Home created the listing.
Nearby Schools
| Name | Type | Ofsted | Distance |
|---|---|---|---|
| St Joseph'S Catholic Primary School | Academy Converter | 0.74 KM | |
| Bishop Vesey'S Grammar School | Academy Converter | Outstanding | 0.77 KM |
| Coppice Primary School | Foundation School | Good | 0.95 KM |
| Langley School | Foundation Special School | Good | 0.99 KM |
| Holland House Infant School And Nursery | Children's Centre | 1.68 KM |
Images
Nearby Streets
| Name | Average Price | Average Sqft | Distance |
|---|---|---|---|
| Norfolk Road | £ 0 | 0 | 0.00 KM |
| Keepers Gate | £ 937,500 | 0 | 0.00 KM |
| Midland Road | £ 700,000 | 0 | 0.00 KM |
| Hayward Road | £ 0 | 0 | 0.00 KM |
| Station Approach | £ 785,000 | 0 | 0.00 KM |
Nearby Transport
| Name | NLC | TLC | Distance |
|---|---|---|---|
| Four Oaks | 1042 | FOK | 0.80 KM |
| Sutton Coldfield | 1044 | SUT | 0.92 KM |
| Butlers Lane | 1179 | BUL | 2.48 KM |
| Wylde Green | 1138 | WYL | 3.01 KM |
| Blake Street | 1176 | BKT | 4.05 KM |
Nearby Listings
| Address | Price | Type | Score | Distance |
|---|---|---|---|---|
| Barker Road, Sutton Coldfield, B74 2NY | £ 900,000 | BUY | 8 / 10 | 0.00 KM |
| Barker Road, Four Oaks | £ 1,100,000 | BUY | 7 / 10 | 0.00 KM |
| Barker Road, Four Oaks | £ 1,395,000 | BUY | 7 / 10 | 0.00 KM |
| Wyvern Road, Four Oaks, Sutton Coldfield, B74 | £ 975,000 | BUY | 7 / 10 | 0.07 KM |
| Wyvern Road, Sutton Coldfield | £ 1,300,000 | BUY | 8 / 10 | 0.14 KM |
Nearby Properties
| Address | Price | Distance |
|---|---|---|
| 1 Barker Road | £ 550,000 | 0.01 KM |
| 1a Barker Road | £ 850,000 | 0.03 KM |
| 6 Wyvern Road | £ 950,000 | 0.07 KM |
| 2 Wyvern Road | £ 680,000 | 0.07 KM |
| 40 Wyvern Road | £ 755,000 | 0.07 KM |