Jackson-Stops says ..
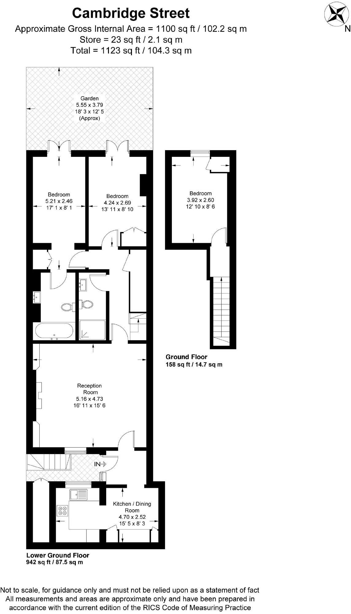
A beautifully presented three double bedroom duplex apartment is on the market in Pimlico, SW1. Located right in the centre of the ever popular Pimlico Grid, this well proportioned (1100 sqft) property occupies both the garden floor and part of the ground floor. With its own private entrance, a ...
Property Oracle says ..
This property is a 3 bedroom, 2 bathroom flat located on Cambridge Street in Pimlico, Westminster. The property benefits from a private garden, and is within walking distance of Victoria Station and several highly-rated schools. The property is presented in good condition, having undergone modernisation whilst retaining some traditional features. The list price of £1,395,000 is slightly above the average price per square foot for the area, however, given the property’s condition, location, and private garden, it represents reasonable value for money.
Therefore, we give this property 8 / 10. *Disclaimer: This is our option and does constitute a recommendation or financial advice. Do your own research. *
- Price
- 7
- Condition
- 9
- Location
- 10
- Land
- 8
- Bedrooms
- 3
- Bathrooms
- 2
- Sqft (est)
- 928.00
- Lot (est)
- 1,123.00
The heatmap indicates the level of crime in the area. The color of the heatmap indicates the crime severity and recency.
Metrics Year-on-Year
- Average area value
- 1,189,286.00 £Increased by 2.36 %
- Est sale value
- 833,344.00 £Decreased by 37.90 %
- Average area rental value
- 2,412.00 £/moDecreased by 1.51 %
- Est letting value
- 928.00 £/moDecreased by 66.67 %
- Est rental Yield
- 2.43 %Decreased by 3.95 %
- Crime Rate
- 9.00 %Unchanged by 0.00 %
Agent Activity
Jackson-Stops created the listing.
Nearby Schools
| Name | Type | Ofsted | Distance |
|---|---|---|---|
| Eaton Square School | Other Independent School | 0.35 KM | |
| St Gabriel'S Cofe Primary School | Voluntary Aided School | Good | 0.38 KM |
| Sir Simon Milton Westminster University Technical College | University Technical College | 0.41 KM | |
| South Locality Hub Lead - Churchill Gardens Children'S Centre | Children's Centre | 0.47 KM | |
| Churchill Gardens Primary Academy | Academy Sponsor Led | Good | 0.52 KM |
Images
Nearby Streets
| Name | Average Price | Average Sqft | Distance |
|---|---|---|---|
| Saint George's Drive | £ 0 | 0 | 0.00 KM |
| Cumberland Court | £ 0 | 0 | 0.00 KM |
| Glasgow Terrace | £ 415,000 | 0 | 0.00 KM |
| Bulleid Way | £ 0 | 0 | 0.00 KM |
| Eccleston Bridge | £ 725,000 | 0 | 0.00 KM |
Nearby Transport
| Name | NLC | TLC | Distance |
|---|---|---|---|
| Victoria | 5426 | VIC | 0.64 KM |
| Battersea Park | 5420 | BAK | 1.50 KM |
| Queenstown Road (Battersea) | 5596 | QRB | 1.68 KM |
| Wandsworth Road | 5372 | WWR | 2.23 KM |
| Vauxhall | 5597 | VXH | 2.27 KM |
Nearby Listings
| Address | Price | Type | Score | Distance |
|---|---|---|---|---|
| Cambridge Street, Pimlico | £ 1,395,000 | BUY | 8 / 10 | 0.00 KM |
| Cambridge Street, London, SW1V | £ 475,000 | BUY | 6 / 10 | 0.02 KM |
| Cambridge Street, Pimlico, SW1V | £ 800,000 | BUY | 6 / 10 | 0.03 KM |
| Warwick Square, London, SW1V | £ 1,300,000 | BUY | 6 / 10 | 0.05 KM |
| Alderney street, London, SW1V | £ 289,000 | BUY | Unknown | 0.06 KM |
Nearby Properties
| Address | Price | Distance |
|---|---|---|
| 93 Cambridge Street | £ 430,000 | 0.04 KM |
| 88b Cambridge Street | £ 950,000 | 0.04 KM |
| 99a Cambridge Street | £ 745,000 | 0.04 KM |
| 106e Cambridge Street | £ 1,280,000 | 0.04 KM |
| 99b Cambridge Street | £ 630,000 | 0.04 KM |