Cardinals Way, Islington, London, N19
By Drivers & Norris
£ 750,000
Reviews
3 out of 5 stars
Drivers & Norris says ..
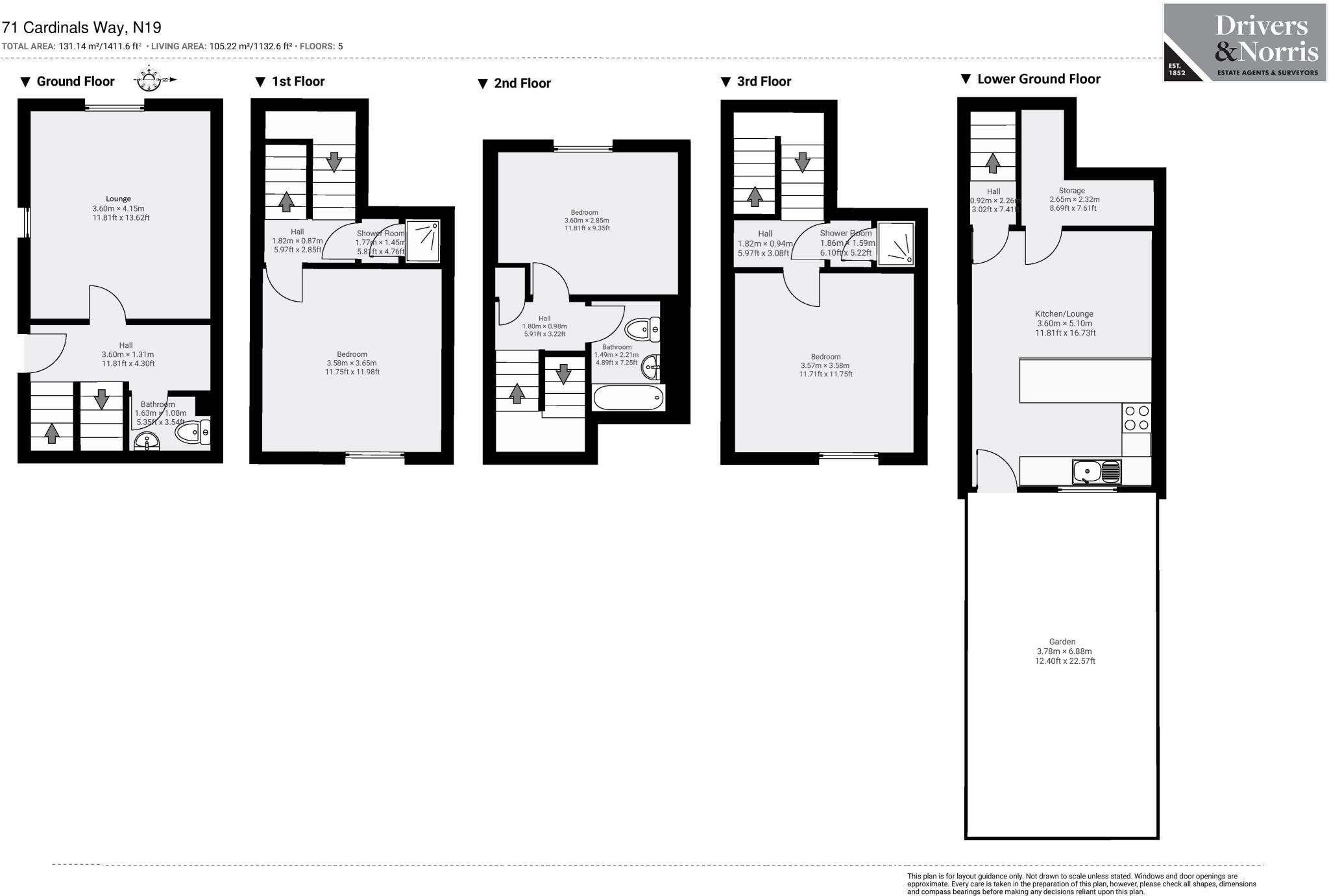
Three double bedroom town house arranged over four levels located in this quiet residential turning adjacent to Whitehall Park, within in a short distance of numerous bus routes and Archway station ( Northern Line) is approximately 600 metres away. Offered for sale chain free the accommodation co...
Property Oracle says ..
This three-bedroom terraced house in Islington, London is listed at £750,000. The property benefits from a small garden, and is located within a reasonable distance of several schools and transportation links. The interior appears to be in good condition, with a modern kitchen and bathroom. However, the property is smaller than average for the area (1,120.74 sqft vs 1,223 sqft average). The list price is higher than the average price for the area (£750,000 vs £510,453), but comparable properties in the area have sold for similar prices. More information on the property’s condition and features would be needed to provide a more comprehensive analysis.
Therefore, we give this property 6 / 10. *Disclaimer: This is our option and does constitute a recommendation or financial advice. Do your own research. *
- Price
- 6
- Condition
- 8
- Location
- 7
- Land
- 4
- Bedrooms
- 3
- Bathrooms
- 1
- Sqft (est)
- 1,120.74
- Lot (est)
- 1,411.58
The heatmap indicates the level of crime in the area. The color of the heatmap indicates the crime severity and recency.
Metrics Year-on-Year
- Average area value
- 575,000.00 £Decreased by 30.23 %
- Est sale value
- 857,366.10 £Increased by 51.79 %
- Average area rental value
- 2,509.00 £/moIncreased by 9.42 %
- Est letting value
- 3,362.22 £/moIncreased by 200.00 %
- Est rental Yield
- 5.24 %Increased by 56.89 %
- Crime Rate
- 5.00 %Unchanged by 0.00 %
Agent Activity
Drivers & Norris created the listing.
Nearby Schools
| Name | Type | Ofsted | Distance |
|---|---|---|---|
| City Of London Academy, Highgate Hill | Free Schools | 0.24 KM | |
| Whitehall Park School | Free Schools | Good | 0.43 KM |
| Margaret Mcmillan Nursery School And Children'S Centre | Children's Centre | 0.52 KM | |
| Margaret Mcmillan Nursery School | Local Authority Nursery School | Good | 0.52 KM |
| Coleridge Primary School | Community School | Outstanding | 0.70 KM |
Images
Nearby Streets
| Name | Average Price | Average Sqft | Distance |
|---|---|---|---|
| Parkland Walk | £ 1,333,333 | 0 | 0.00 KM |
| Stanhope Road | £ 550,000 | 0 | 0.00 KM |
| A1 | £ 0 | 0 | 0.00 KM |
| A1 | £ 0 | 0 | 0.00 KM |
| Navigator Square | £ 0 | 0 | 0.00 KM |
Nearby Transport
| Name | NLC | TLC | Distance |
|---|---|---|---|
| Upper Holloway | 1524 | UHL | 0.72 KM |
| Crouch Hill | 7406 | CRH | 1.43 KM |
| Kentish Town | 1553 | KTN | 2.46 KM |
| Finsbury Park | 6119 | FPK | 2.70 KM |
| Hornsey | 6015 | HRN | 2.70 KM |
Nearby Listings
| Address | Price | Type | Score | Distance |
|---|---|---|---|---|
| Cardinals Way, Islington, London, N19 | £ 750,000 | BUY | 6 / 10 | 0.00 KM |
| Pilgrims Way, N19 | £ 349,000 | BUY | 6 / 10 | 0.07 KM |
| St. John'S Way, Archway, n19 | £ 695,000 | BUY | 6 / 10 | 0.08 KM |
| Cheverton Road, London, N19 | £ 450,000 | BUY | Unknown | 0.11 KM |
| Cheverton Road, Crouch End, London, N19 | £ 450,000 | BUY | Unknown | 0.11 KM |
Nearby Properties
| Address | Price | Distance |
|---|---|---|
| 48 Cardinals Way | £ 613,000 | 0.04 KM |
| 49 Pilgrims Way | £ 190,000 | 0.07 KM |
| 67 Pilgrims Way | £ 117,000 | 0.07 KM |
| 55 Pilgrims Way | £ 97,500 | 0.07 KM |
| 1 Pilgrims Way | £ 350,000 | 0.07 KM |