Stayton Road, Sutton, Surrey, SM1
By Burn & Warne
£ 575,000
Reviews
3 out of 5 stars
Burn & Warne says ..
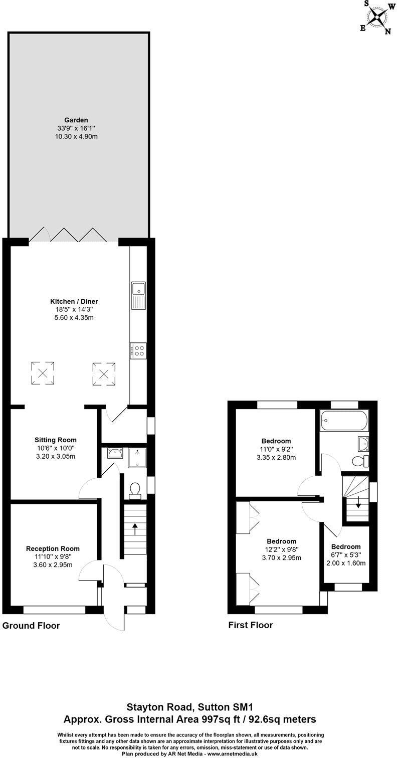
BURN AND WARNE *EXTENDED THREE BEDROOM END OF TERRACED HOUSE *18'5 X 14'3 KITCHEN/DINER UTILITY & GROUND FLOOR SHOWER *OFF ROAD PARKING 35'0 REAR GARDEN *CLOSE TO WESTBOURNE SCHOOL This 1930's three bed end terraced house has been extended to the rear showcasing two rece...
Property Oracle says ..
This three-bedroom property in Sutton, Surrey is listed at £575,000. The property benefits from a modern extension and appears to be well-maintained, with a recently updated kitchen and bathroom. The location is convenient, with nearby schools (All Saints Benhilton Cofe Primary School is within walking distance) and transport links (Sutton Common station is approximately 0.43km away). The average house price in the area is £491,889, and the average price per square foot is £507. While the property is slightly above the average price, the modern updates and desirable location may justify the higher price point. The lack of plot size information makes it difficult to fully assess the value.
Therefore, we give this property 7 / 10. *Disclaimer: This is our option and does constitute a recommendation or financial advice. Do your own research. *
- Price
- 7
- Condition
- 8
- Location
- 8
- Land
- 6
- Bedrooms
- 3
- Bathrooms
- 0
- Sqft (est)
- 996.74
The heatmap indicates the level of crime in the area. The color of the heatmap indicates the crime severity and recency.
Metrics Year-on-Year
- Average area value
- 364,000.00 £Decreased by 29.95 %
- Est sale value
- 266,129.58 £Decreased by 53.08 %
- Average area rental value
- 1,700.00 £/moDecreased by 10.62 %
- Est letting value
- 996.74 £/moDecreased by 50.00 %
- Est rental Yield
- 5.60 %Increased by 27.56 %
- Crime Rate
- 1.00 %Unchanged by 0.00 %
Agent Activity
Burn & Warne created the listing.
Nearby Schools
| Name | Type | Ofsted | Distance |
|---|---|---|---|
| All Saints Benhilton Cofe Primary School | Voluntary Aided School | Good | 0.14 KM |
| Robin Hood Junior School | Community School | Good | 0.91 KM |
| Sutton Grammar School | Academy Converter | 0.96 KM | |
| Manor Park Children'S Centre (Sutton Central East) | Children's Centre | 1.14 KM | |
| Manor Park Primary Academy | Academy Converter | 1.14 KM |
Images
Nearby Streets
| Name | Average Price | Average Sqft | Distance |
|---|---|---|---|
| All Saints Road | £ 400,000 | 0 | 0.00 KM |
| Dovercourt Lane | £ 0 | 0 | 0.00 KM |
| Vale Road | £ 0 | 0 | 0.00 KM |
| Bushey Road | £ 0 | 0 | 0.00 KM |
| Wilcox Road | £ 0 | 0 | 0.00 KM |
Nearby Transport
| Name | NLC | TLC | Distance |
|---|---|---|---|
| Sutton Common | 5436 | SUC | 0.43 KM |
| Sutton | 5385 | SUO | 1.52 KM |
| West Sutton | 5293 | WSU | 1.57 KM |
| St Helier | 5290 | SIH | 1.98 KM |
| Morden South | 5291 | MDS | 2.66 KM |
Nearby Listings
| Address | Price | Type | Score | Distance |
|---|---|---|---|---|
| William Road, Sutton, Surrey, SM1 | £ 325,000 | BUY | 5 / 10 | 0.00 KM |
| Stayton Road, Sutton, Surrey, SM1 | £ 575,000 | BUY | 7 / 10 | 0.00 KM |
| Waverley Avenue, Sutton, SM1 | £ 650,000 | BUY | 8 / 10 | 0.00 KM |
| Sutton Court Road, Sutton, Surrey, SM1 | £ 325,000 | BUY | 6 / 10 | 0.00 KM |
| Beauchamp Road, Sutton, SM1 | £ 499,950 | BUY | 6 / 10 | 0.00 KM |
Nearby Properties
| Address | Price | Distance |
|---|---|---|
| 5 All Saints Road | £ 514,000 | 0.06 KM |
| 18 Hunting Gate Mews | £ 230,000 | 0.14 KM |
| 17 Hunting Gate Mews | £ 195,000 | 0.14 KM |
| 1 Hunting Gate Mews | £ 265,000 | 0.14 KM |
| 4 Hunting Gate Mews | £ 400,000 | 0.14 KM |