Thorburn Square, Bermondsey, SE1
By Chestertons Estate Agents
£ 300,000
Reviews
3 out of 5 stars
Chestertons Estate Agents says ..
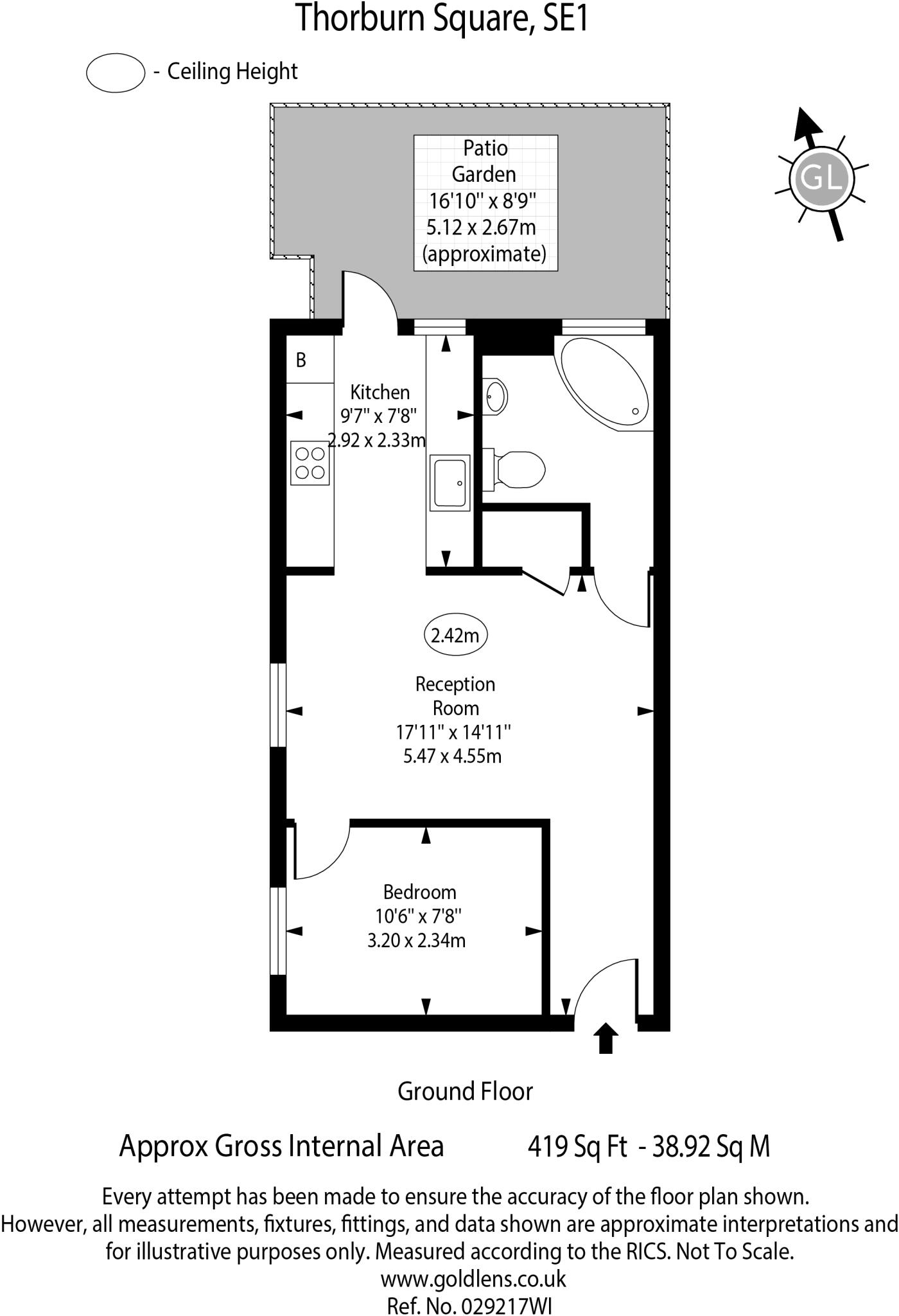
A charming one-bedroom ground floor flat with private patio in the peaceful Thorburn square.
Property Oracle says ..
This one-bedroom flat in Thorburn Square, Bermondsey, offers a blend of affordability and location. The property includes a private patio, a valuable asset in London. While the flat is in reasonable condition, there’s room for modernisation, particularly in the kitchen and bathroom. Its location provides access to local schools and transport links. The asking price of £300,000 represents good value compared to the average price per square foot in the area, making it an attractive option for first-time buyers or investors.
Therefore, we give this property 7 / 10. *Disclaimer: This is our option and does constitute a recommendation or financial advice. Do your own research. *
- Price
- 8
- Condition
- 6
- Location
- 7
- Land
- 7
- Bedrooms
- 1
- Bathrooms
- 1
- Sqft (est)
- 556.31
The heatmap indicates the level of crime in the area. The color of the heatmap indicates the crime severity and recency.
Metrics Year-on-Year
- Average area value
- 460,000.00 £Decreased by 10.12 %
- Est sale value
- 422,239.29 £Increased by 4.12 %
- Average area rental value
- 2,317.00 £/moIncreased by 6.73 %
- Est letting value
- 1,668.93 £/moUnchanged by 0.00 %
- Est rental Yield
- 6.04 %Increased by 18.66 %
- Crime Rate
- 3.00 %Unchanged by 0.00 %
Agent Activity
Chestertons Estate Agents created the listing.
Nearby Schools
| Name | Type | Ofsted | Distance |
|---|---|---|---|
| Spa School, Bermondsey | Academy Special Converter | 0.14 KM | |
| City Of London Academy (Southwark) | Academy Sponsor Led | Good | 0.35 KM |
| Harris Academy Bermondsey | Academy Sponsor Led | Outstanding | 0.39 KM |
| Phoenix Primary School | Community School | Outstanding | 0.51 KM |
| South Bermondsey Children And Parents Centre | Children's Centre | 0.67 KM |
Images
Nearby Streets
| Name | Average Price | Average Sqft | Distance |
|---|---|---|---|
| Estate Road | £ 0 | 0 | 0.00 KM |
| Beatrice Road | £ 800,000 | 0 | 0.00 KM |
| Rouel Road | £ 0 | 0 | 0.00 KM |
| Catlin Street | £ 288,333 | 0 | 0.00 KM |
| Ainsdale Drive | £ 0 | 0 | 0.00 KM |
Nearby Transport
| Name | NLC | TLC | Distance |
|---|---|---|---|
| South Bermondsey | 5425 | SBM | 1.55 KM |
| Wapping | 1085 | WPE | 2.05 KM |
| Rotherhithe | 1039 | ROE | 2.12 KM |
| New Cross | 5150 | NWX | 2.22 KM |
| Canada Water | 1659 | ZCW | 2.22 KM |
Nearby Listings
| Address | Price | Type | Score | Distance |
|---|---|---|---|---|
| Thorburn Square, Bermondsey, SE1 | £ 300,000 | BUY | 7 / 10 | 0.00 KM |
| Welsford Street, Bermondsey, London, SE1 | £ 385,000 | BUY | 6 / 10 | 0.08 KM |
| Thorburn Square, Bermondsey, SE1 | £ 320,000 | BUY | 7 / 10 | 0.09 KM |
| Monnow Road, Bermondsey, SE1 | £ 400,000 | BUY | 6 / 10 | 0.10 KM |
| Simms Road, Bermondsey, SE16 | £ 750,000 | BUY | 6 / 10 | 0.12 KM |
Nearby Properties
| Address | Price | Distance |
|---|---|---|
| 3 Thorburn Square | £ 407,777 | 0.01 KM |
| 9 Thorburn Square | £ 385,000 | 0.01 KM |
| 37 Thorburn Square | £ 192,000 | 0.01 KM |
| 31 Thorburn Square | £ 175,000 | 0.01 KM |
| 22 Thorburn Square | £ 126,500 | 0.01 KM |