Rues Farm Road, IP11
By Wainwrights Estate & Letting Agents
£ 110,000
Reviews
3 out of 5 stars
Wainwrights Estate & Letting Agents says ..
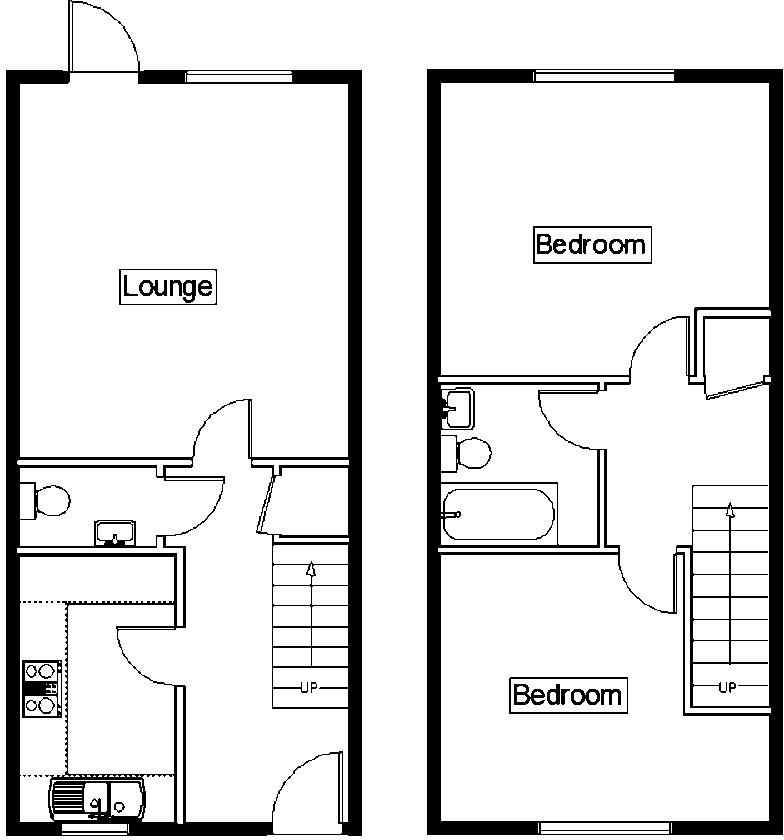
40% shared ownership. No onward chain. Two double bedrooms. End of Terrace House. Allocated parking for two cars. Built in 2021. Viewing highly recommended.
Property Oracle says ..
This property is a modern two bedroom end of terrace house located in Eastern Felixstowe, Suffolk. The property is in excellent condition and benefits from a modern fitted kitchen and bathroom. The location is convenient with nearby schools and transport links. However, the plot size is very small. The list price is significantly lower than the average price for the area, but this is likely due to the smaller plot size and the fact that it is an end of terrace property. Overall, this is a well-presented property that would be suitable for a first-time buyer or investor.
Therefore, we give this property 6 / 10. *Disclaimer: This is our option and does constitute a recommendation or financial advice. Do your own research. *
- Price
- 6
- Condition
- 10
- Location
- 7
- Land
- 1
- Bedrooms
- 2
- Bathrooms
- 1
- Sqft (est)
- 512.00
The heatmap indicates the level of crime in the area. The color of the heatmap indicates the crime severity and recency.
Metrics Year-on-Year
- Average area value
- 550,639.00 £Increased by 42.23 %
- Est sale value
- 257,536.00 £Increased by 85.61 %
- Average area rental value
- 1,103.00 £/moIncreased by 16.84 %
- Est letting value
- 512.00 £/mo
- Est rental Yield
- 2.40 %Decreased by 18.09 %
- Crime Rate
- 58.00 %Unchanged by 0.00 %
Agent Activity
Wainwrights Estate & Letting Agents marked this listing as sold.
Wainwrights Estate & Letting Agents created the listing.
Nearby Schools
| Name | Type | Ofsted | Distance |
|---|---|---|---|
| Kingsfleet Primary School | Community School | Good | 0.44 KM |
| Felixstowe International College | Other Independent School | Good | 1.14 KM |
| Colneis Junior School | Community School | Good | 1.45 KM |
| Fairfield Infant School | Community School | Good | 2.47 KM |
| Set Causton | Academy Converter | 4.21 KM |
Images
Nearby Streets
| Name | Average Price | Average Sqft | Distance |
|---|---|---|---|
| Fleet Road | £ 0 | 0 | 0.00 KM |
| Ranson Road | £ 0 | 0 | 0.00 KM |
| Walnut Close | £ 0 | 0 | 0.00 KM |
| Bawdsey Close | £ 0 | 0 | 0.00 KM |
| Thermere Court | £ 316,665 | 0 | 0.00 KM |
Nearby Transport
| Name | NLC | TLC | Distance |
|---|---|---|---|
| Felixstowe | 7214 | FLX | 2.64 KM |
| Trimley | 7225 | TRM | 5.81 KM |
Nearby Listings
| Address | Price | Type | Score | Distance |
|---|---|---|---|---|
| Rues Farm Road, IP11 | £ 110,000 | BUY | 6 / 10 | 0.00 KM |
| Rues Farm Road, Felixstowe, Suffolk, IP11 | £ 265,000 | BUY | 7 / 10 | 0.03 KM |
| Rues Farm Road, Felixstowe | £ 270,000 | BUY | 7 / 10 | 0.08 KM |
| Estuary Drive, Felixstowe | £ 575,000 | BUY | 7 / 10 | 0.11 KM |
| Estuary Drive, Felixstowe, Suffolk, IP11 | £ 318,250 | BUY | Unknown | 0.11 KM |
Nearby Properties
| Address | Price | Distance |
|---|---|---|
| 22 Estuary Drive | £ 250,000 | 0.07 KM |
| 25 Estuary Drive | £ 319,500 | 0.07 KM |
| 49 Westmorland Road | £ 397,000 | 0.19 KM |
| 59 Westmorland Road | £ 281,500 | 0.19 KM |
| 55 Westmorland Road | £ 196,500 | 0.19 KM |