Barnard Marcus says ..
AUCTION SALE 18 November 2025 - Land with planning permission for an end of terrace houseFreehold siteFull vacant possession
Property Oracle says ..
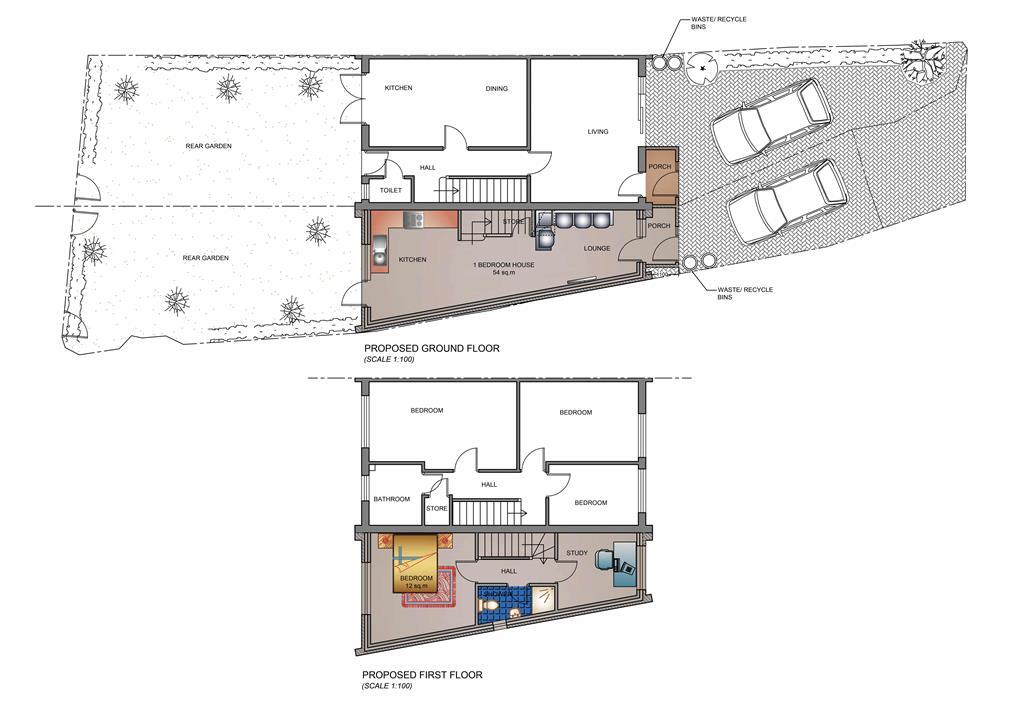
The property is a plot of land in Hextable, near Swanley. It is close to local schools and amenities, and has good transport links to London. The property appears to be in good condition and has a garden. The asking price is £50,000, which is significantly lower than the average property price in the area.
Therefore, we give this property 6 / 10. *Disclaimer: This is our option and does constitute a recommendation or financial advice. Do your own research. *
- Price
- 8
- Condition
- 7
- Location
- 6
- Land
- 5
- Bedrooms
- 0
- Bathrooms
- 0
The heatmap indicates the level of crime in the area. The color of the heatmap indicates the crime severity and recency.
Metrics Year-on-Year
- Average area value
- 1,145,000.00 £Increased by 51.85 %
- Average area rental value
- 1,717.00 £/moDecreased by 6.07 %
- Est rental Yield
- 1.80 %Decreased by 38.14 %
- Crime Rate
- 14.00 %Unchanged by 0.00 %
Agent Activity
Barnard Marcus created the listing.
Nearby Schools
| Name | Type | Ofsted | Distance |
|---|---|---|---|
| Hextable Primary School | Community School | Good | 0.55 KM |
| St Pauls' Church Of England Voluntary Controlled Primary School | Voluntary Controlled School | Good | 1.35 KM |
| Downsview Community Primary School | Community School | Good | 1.68 KM |
| St Bartholomew'S Catholic Primary School, Swanley | Voluntary Aided School | Good | 1.71 KM |
| Swanley Children'S Centre | Children's Centre | 1.72 KM |
Images
Nearby Streets
| Name | Average Price | Average Sqft | Distance |
|---|---|---|---|
| Main Road | £ 0 | 0 | 0.00 KM |
| The Beeches | £ 0 | 0 | 0.00 KM |
| New Barn Road | £ 0 | 0 | 0.00 KM |
| Poppy Close | £ 0 | 0 | 0.00 KM |
| Alexandra Close | £ 350,000 | 0 | 0.00 KM |
Nearby Transport
| Name | NLC | TLC | Distance |
|---|---|---|---|
| Swanley | 5075 | SAY | 2.52 KM |
| Crayford | 5100 | CRY | 4.22 KM |
| Bexley | 5093 | BXY | 5.16 KM |
| Dartford | 5101 | DFD | 5.65 KM |
| Farningham Road | 5105 | FNR | 5.79 KM |
Nearby Listings
| Address | Price | Type | Score | Distance |
|---|---|---|---|---|
| Panters, Hextable, SWANLEY | £ 50,000 | BUY | 6 / 10 | 0.00 KM |
| Panters, Hextable, SWANLEY | £ 50,000 | BUY | 6 / 10 | 0.00 KM |
| Panters, Hextable, Swanley | £ 350,000 | BUY | 7 / 10 | 0.01 KM |
| Lower Road, Hextable | £ 375,000 | BUY | 6 / 10 | 0.08 KM |
| Land Adjacent to 30 Panters, Hextable, Swanley, BR8 7RW | £ 60,000 | BUY | 4 / 10 | 0.09 KM |
Nearby Properties
| Address | Price | Distance |
|---|---|---|
| 60 Panters | £ 292,000 | 0.00 KM |
| 67 Panters | £ 175,000 | 0.00 KM |
| 50 Panters | £ 305,000 | 0.00 KM |
| 32 Panters | £ 267,000 | 0.00 KM |
| 78 Panters | £ 185,000 | 0.00 KM |