Walnut Way, Ickleford, Hitchin, SG5
By Country Properties
£ 290,000
Reviews
3 out of 5 stars
Country Properties says ..
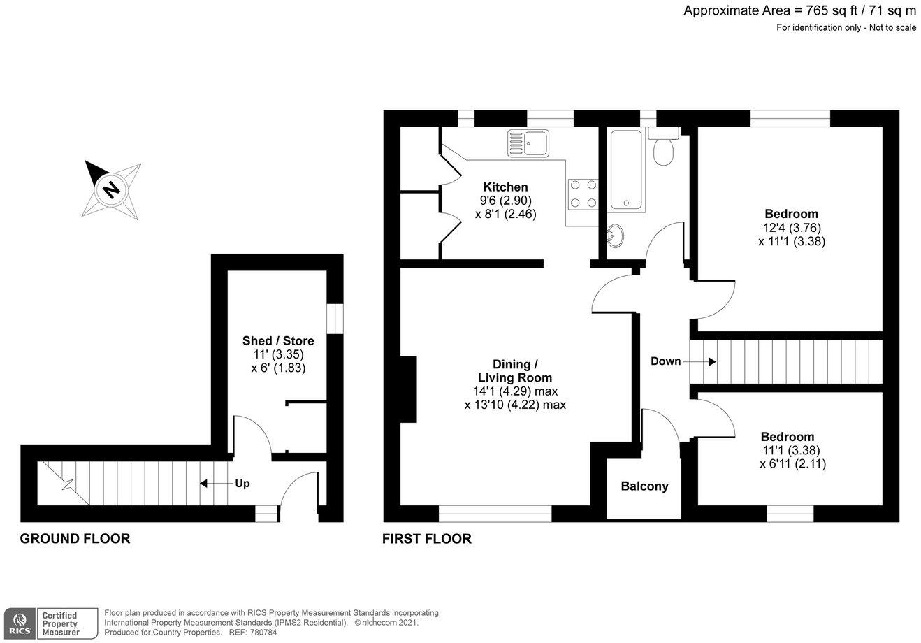
A Stylish Two Bedroom Maisonette with Private Garden & BalconyNestled in the charming village of Ickleford, this beautifully presented two bedroom maisonette offers a perfect blend of comfort, privacy, and outdoor living. Situated in a quiet residential area, this property ...
Property Oracle says ..
This is a well-presented two-bedroom maisonette in the village of Ickleford, Hertfordshire. The property is in good condition and benefits from a garden. It is located close to local schools and transportation links, making it a desirable location for families and commuters. The property is modern and well-maintained. The price seems reasonable for the location and condition of the property.
Therefore, we give this property 7 / 10. *Disclaimer: This is our option and does constitute a recommendation or financial advice. Do your own research. *
- Price
- 8
- Condition
- 8
- Location
- 7
- Land
- 7
- Bedrooms
- 2
- Bathrooms
- 1
- Sqft (est)
- 550.23
The heatmap indicates the level of crime in the area. The color of the heatmap indicates the crime severity and recency.
Metrics Year-on-Year
- Average area value
- 611,875.00 £Increased by 8.86 %
- Est sale value
- 317,482.71 £Increased by 482.83 %
- Average area rental value
- 1,550.00 £/moDecreased by 22.50 %
- Est letting value
- 550.23 £/mo
- Est rental Yield
- 3.04 %Decreased by 28.81 %
- Crime Rate
- 7.00 %Unchanged by 0.00 %
Agent Activity
Country Properties created the listing.
Nearby Schools
| Name | Type | Ofsted | Distance |
|---|---|---|---|
| Ickleford Primary School | Voluntary Controlled School | Good | 0.42 KM |
| Our Lady Catholic Primary School | Academy Converter | Requires improvement | 0.95 KM |
| The Priory School | Foundation School | Good | 1.00 KM |
| Strathmore Infant And Nursery School | Community School | Good | 1.16 KM |
| Nh7 York Road Family Centre | Children's Centre | 1.81 KM |
Images
Nearby Streets
| Name | Average Price | Average Sqft | Distance |
|---|---|---|---|
| Chambers Lane | £ 437,500 | 0 | 0.00 KM |
| Greenfield Avenue | £ 435,000 | 0 | 0.00 KM |
| Cedar Avenue | £ 644,000 | 0 | 0.00 KM |
| Turnpike Lane | £ 595,000 | 0 | 0.00 KM |
| Manor Close | £ 700,000 | 0 | 0.00 KM |
Nearby Transport
| Name | NLC | TLC | Distance |
|---|---|---|---|
| Hitchin | 6086 | HIT | 2.91 KM |
| Letchworth Garden City | 6089 | LET | 5.95 KM |
| Arlesey | 6171 | ARL | 6.33 KM |
Nearby Listings
| Address | Price | Type | Score | Distance |
|---|---|---|---|---|
| Walnut Way, Ickleford, Hitchin, SG5 | £ 290,000 | BUY | 7 / 10 | 0.00 KM |
| Walnut Way, Ickleford, Hitchin, Hertfordshire, SG5 | £ 275,000 | BUY | Unknown | 0.01 KM |
| Walnut Way, Ickleford, Hitchin, Hertfordshire, SG5 | £ 260,000 | BUY | 7 / 10 | 0.04 KM |
| Chambers Lane, Ickleford, Hitchin, Hertfordshire, SG5 | £ 360,000 | BUY | Unknown | 0.07 KM |
| Cedar Avenue, Ickleford, SG5 3XU | £ 725,000 | BUY | 7 / 10 | 0.16 KM |
Nearby Properties
| Address | Price | Distance |
|---|---|---|
| 19 Walnut Way | £ 125,000 | 0.04 KM |
| 30 Walnut Way | £ 230,000 | 0.04 KM |
| 56 Walnut Way | £ 212,500 | 0.06 KM |
| 51 Walnut Way | £ 216,500 | 0.06 KM |
| 43 Walnut Way | £ 135,000 | 0.06 KM |