WOOTTON BRIDGE
TH

WOOTTON BRIDGE

By The Wright Estate Agency

£ 575,000

Reviews

3 out of 5 stars

The Wright Estate Agency says ..

CHAIN FREE........Situated on the outskirts of the charming village of Wootton, this attractively individual detached house offers a delightful blend of modern living and serene countryside views. Set within a generous quarter-acre plot, the property boasts uninterrupted vistas across open fields...

Property Oracle says ..

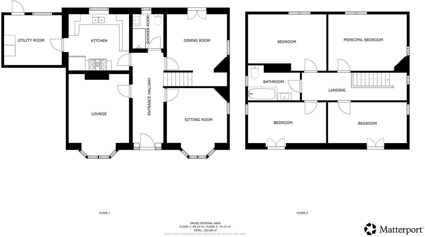
This is a detached property in Wootton Bridge, Isle of Wight, featuring 4 bedrooms and 2 bathrooms. The house appears to be in good condition, with a modern interior and a large garden. The property is located close to local amenities, including a primary school and transportation links. The asking price of £575,000 seems reasonable for the area, considering the size and condition of the property.

Therefore, we give this property 7 / 10. *Disclaimer: This is our option and does constitute a recommendation or financial advice. Do your own research. *

Price
7
Condition
8
Location
7
Land
9
Bedrooms
4
Bathrooms
2

The heatmap indicates the level of crime in the area. The color of the heatmap indicates the crime severity and recency.

Metrics Year-on-Year

Average area value
431,250.00 £
Increased by 5.19 %
from 409,967.00 £
Average area rental value
1,300.00 £/mo
Decreased by 23.48 %
from 1,699.00 £/mo
Est rental Yield
3.62 %
Decreased by 27.16 %
from 4.97 %
Crime Rate
12.00 %
Unchanged by 0.00 %
from 12.00 %

Agent Activity

  • The Wright Estate Agency created the listing.

Nearby Schools

NameTypeOfstedDistance
Wootton Community Primary SchoolCommunity SchoolGood0.87 KM
Priory SchoolOther Independent SchoolGood3.10 KM
Queensgate Foundation PrimaryFoundation SchoolGood4.18 KM
East Cowes Children'S CentreChildren's Centre Linked Site4.26 KM
Summerfields Primary SchoolCommunity SchoolGood4.31 KM

Images

DSC_1668 (1) (1).jpg DSC_1638 (1).jpg DSC_1663 (1).jpg DSC_1633 - Copy.JPG DSC_1683 (1).jpg DSC_1644.JPG DSC_1648 (1).jpg DSC_1693 (1).jpg DSC_1634 - Copy.JPG DSC_1627 - Copy.JPG DSC_1631 - Copy.JPG DSC_1652 (1).jpg DSC_1658 (1).jpg DSC_1641 (1).jpg DSC_1650 (1).jpg DSC_1646.JPG DSC_1667 (1).jpg DSC_1654.JPG DSC_1682 (1).jpg DSC_1698 (1).jpg

Nearby Streets

NameAverage PriceAverage SqftDistance
The Acorns £ 600,00000.00 KM
Harwood Close £ 596,66700.00 KM
Church Close £ 000.00 KM
Mount Road £ 699,95000.00 KM

Nearby Transport

NameNLCTLCDistance
Ryde Esplanade5542RYD9.56 KM
Ryde Pier Head5541RYP9.60 KM
Ryde St Johns Road5543RYR9.85 KM

Nearby Listings

AddressPriceTypeScoreDistance
WOOTTON BRIDGE £ 575,000BUY7 / 100.00 KM
Lushington Hill, Wootton Bridge £ 750,000BUY7 / 100.11 KM
Lushington Hill, Wootton Bridge, Ryde £ 450,000BUY7 / 100.17 KM
Wootton Bridge, Ryde, Isle of Wight £ 600,000BUY6 / 100.28 KM
Hunters Moon Close, Wootton Bridge, Ryde £ 625,000BUYUnknown0.41 KM

Nearby Properties

AddressPriceDistance
37 Lushington Hill £ 457,5000.20 KM
23 Lushington Hill £ 265,0000.20 KM
41 Lushington Hill £ 390,0000.20 KM
51 Lushington Hill £ 330,0000.20 KM
4 Lushington Hill £ 235,0000.20 KM