Butters John Bee says ..
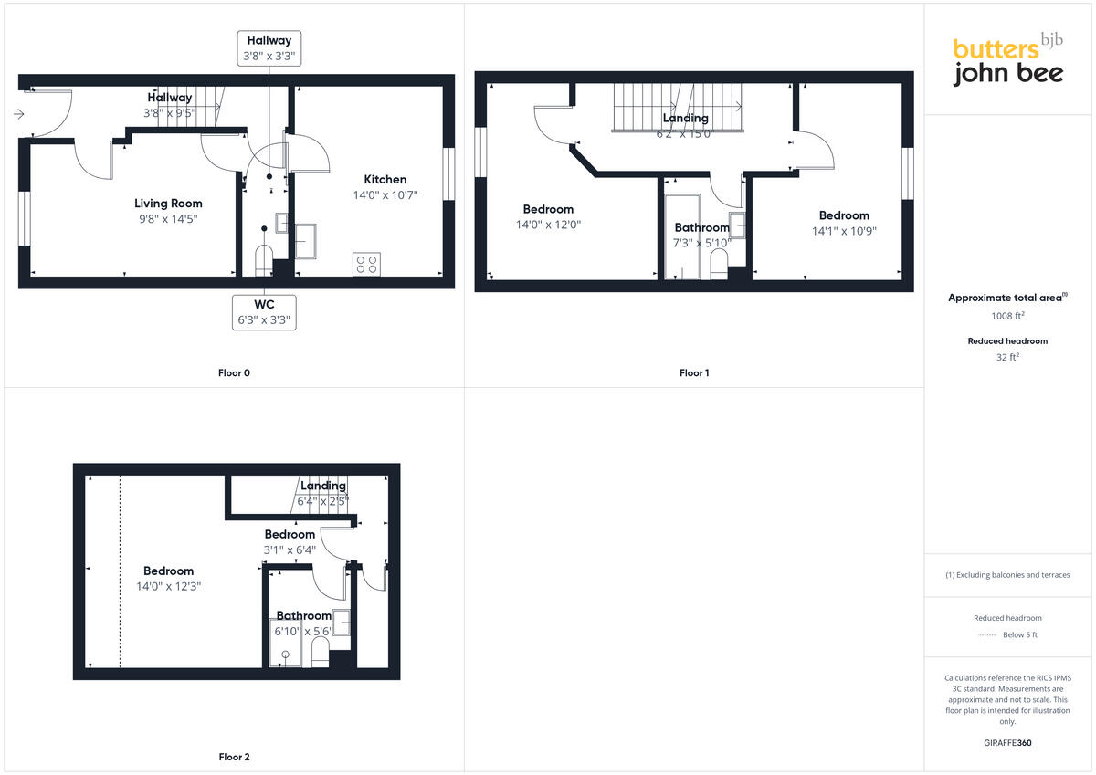
This beautifully presented three-bedroom terraced house spans three floors, offering versatile and stylish accommodation, showcasing a blend of modern design and character features, perfectly suited for contemporary living
Property Oracle says ..
This is a 3-bedroom terraced property located on Derrington Avenue, Crewe. It offers 1,008 sqft of living space and is listed for £170,000. The property is located in a residential area with good access to local schools and transport links, including Crewe train station. The internal photos suggest the property is in generally good condition, with a modern kitchen and bathrooms. However, the property does not have a garden. The price per square foot is below the local average, suggesting reasonable value for money.
Therefore, we give this property 5 / 10. *Disclaimer: This is our option and does constitute a recommendation or financial advice. Do your own research. *
- Price
- 7
- Condition
- 7
- Location
- 6
- Land
- 3
- Bedrooms
- 3
- Bathrooms
- 2
- Sqft (est)
- 1,008.00
The heatmap indicates the level of crime in the area. The color of the heatmap indicates the crime severity and recency.
Metrics Year-on-Year
- Average area value
- 164,500.00 £Decreased by 3.74 %
- Est sale value
- 179,424.00 £Increased by 6.59 %
- Average area rental value
- 788.00 £/moIncreased by 5.07 %
- Est letting value
- 0.00 £/mo
- Est rental Yield
- 5.75 %Increased by 9.11 %
- Crime Rate
- 27.00 %Unchanged by 0.00 %
Agent Activity
Butters John Bee created the listing.
Nearby Schools
| Name | Type | Ofsted | Distance |
|---|---|---|---|
| Westminster Nursery School | Local Authority Nursery School | Good | 0.28 KM |
| Ruskin Community High School | Community School | Good | 0.48 KM |
| Edleston Primary School | Community School | Good | 0.87 KM |
| Crewe Engineering And Design Utc | University Technical College | Good | 1.03 KM |
| Brierley Primary School | Community School | Good | 1.11 KM |
Images
Nearby Streets
| Name | Average Price | Average Sqft | Distance |
|---|---|---|---|
| Broady Court | £ 0 | 0 | 0.00 KM |
| Gainsborough Road | £ 0 | 0 | 0.00 KM |
| Owen Street | £ 0 | 0 | 0.00 KM |
| High Street | £ 0 | 0 | 0.00 KM |
| Sandon Street | £ 0 | 0 | 0.00 KM |
Nearby Transport
| Name | NLC | TLC | Distance |
|---|---|---|---|
| Crewe | 1243 | CRE | 1.14 KM |
| Sandbach | 1261 | SDB | 8.51 KM |
| Nantwich | 1247 | NAN | 8.96 KM |
Nearby Listings
| Address | Price | Type | Score | Distance |
|---|---|---|---|---|
| Derrington Avenue, Crewe | £ 170,000 | BUY | 5 / 10 | 0.00 KM |
| Derrington Avenue, Crewe, Cheshire, CW2 | £ 240,000 | BUY | Unknown | 0.05 KM |
| Derrington Avenue, Crewe, CW2 | £ 85,000 | BUY | 6 / 10 | 0.05 KM |
| Maxwell Street, Crewe, Cheshire, CW2 | £ 110,000 | BUY | 6 / 10 | 0.11 KM |
| Stalbridge Road, Crewe, Cheshire, CW2 | £ 75,000 | BUY | 3 / 10 | 0.11 KM |
Nearby Properties
| Address | Price | Distance |
|---|---|---|
| 75 Derrington Avenue | £ 93,000 | 0.05 KM |
| 41 Derrington Avenue | £ 85,000 | 0.05 KM |
| 20 Derrington Avenue | £ 138,000 | 0.05 KM |
| 51 Derrington Avenue | £ 131,000 | 0.05 KM |
| 29 Derrington Avenue | £ 90,000 | 0.05 KM |