PU
High Street, Waltham Cross, EN8
By Purplebricks
£ 220,000
Reviews
3 out of 5 stars
Purplebricks says ..
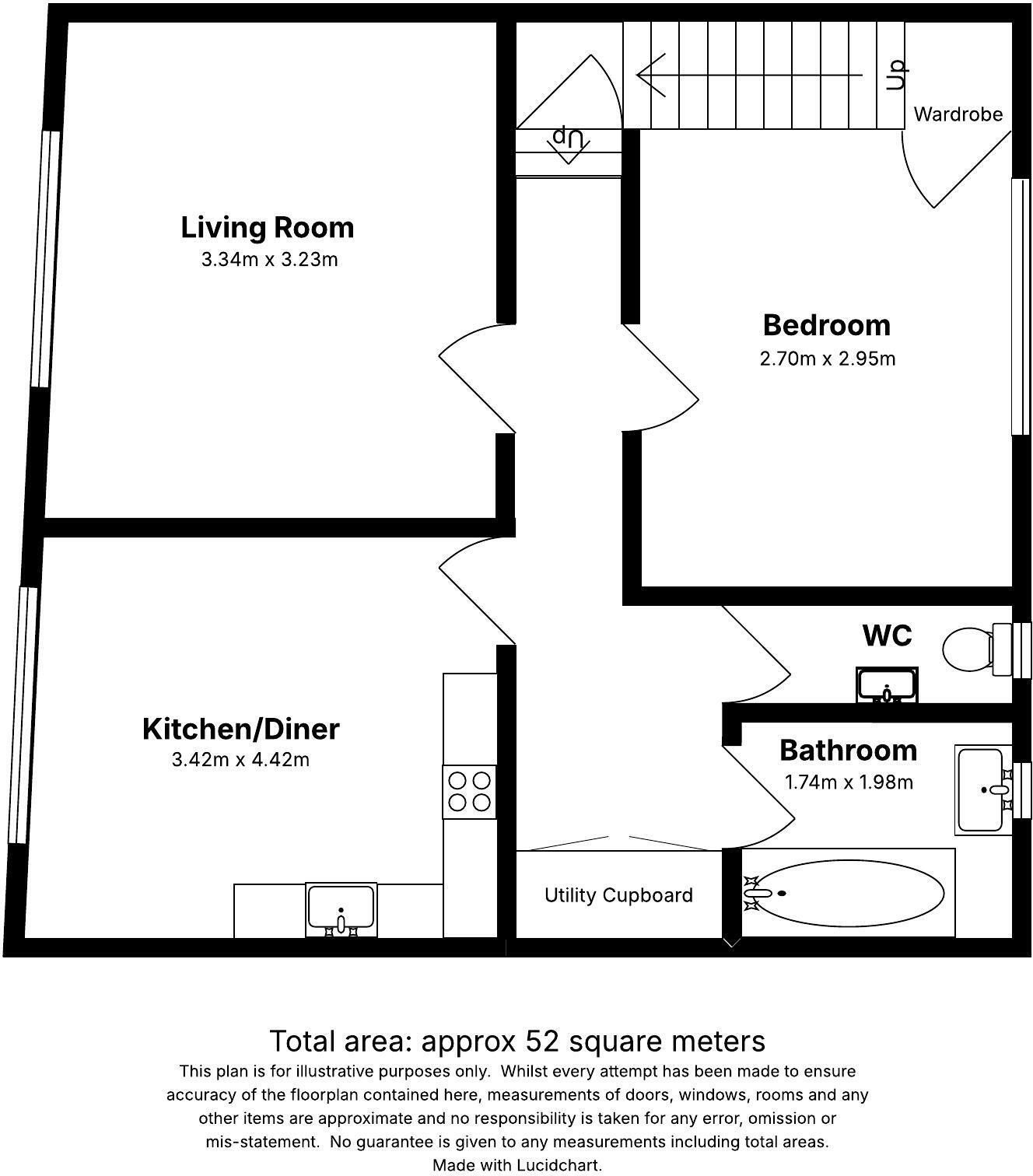
***CHAIN FREE*** Welcome to this inviting one-bedroom flat located on Cheshunt High Street. Here you will be perfectly located, spoilt for choice by all the high street has to offer, within comfortable commuting distance into central London, with quick access to the A10 and M25, and only a short...
Property Oracle says ..
Therefore, we give this property 6 / 10. *Disclaimer: This is our option and does constitute a recommendation or financial advice. Do your own research. *
- Price
- 8
- Condition
- 8
- Location
- 7
- Land
- 3
- Bedrooms
- 1
- Bathrooms
- 1
- Sqft (est)
- 559.72
The heatmap indicates the level of crime in the area. The color of the heatmap indicates the crime severity and recency.
Metrics Year-on-Year
- Average area value
- 700,000.00 £Increased by 50.11 %
- Est sale value
- 206,536.68 £Increased by 3.36 %
- Average area rental value
- 2,188.00 £/moIncreased by 26.84 %
- Est letting value
- 559.72 £/moUnchanged by 0.00 %
- Est rental Yield
- 3.75 %Decreased by 15.54 %
- Crime Rate
- 19.00 %Unchanged by 0.00 %
from 466,323.00 £
from 199,820.04 £
from 1,725.00 £/mo
from 559.72 £/mo
from 4.44 %
from 19.00 %
Agent Activity
Purplebricks created the listing.
Nearby Schools
| Name | Type | Ofsted | Distance |
|---|---|---|---|
| Millbrook School | Community School | Requires improvement | 0.47 KM |
| Burleigh Primary School | Community School | Good | 0.54 KM |
| Arlesdene Nursery School And Pre-School | Local Authority Nursery School | Outstanding | 0.73 KM |
| B6 Arlesdene Family Centre | Children's Centre | 0.73 KM | |
| Brookland Infant And Nursery School | Community School | Good | 0.98 KM |
Images
Nearby Streets
| Name | Average Price | Average Sqft | Distance |
|---|---|---|---|
| Church Lane | £ 0 | 0 | 0.00 KM |
| Neatby Court | £ 249,995 | 0 | 0.00 KM |
| Blaxland Terrace | £ 0 | 0 | 0.00 KM |
| Blindman's Lane | £ 0 | 0 | 0.00 KM |
| Victoria Close | £ 221,662 | 0 | 0.00 KM |
Nearby Transport
| Name | NLC | TLC | Distance |
|---|---|---|---|
| Cheshunt | 6814 | CHN | 1.50 KM |
| Theobalds Grove | 6949 | TEO | 1.89 KM |
| Waltham Cross | 6823 | WLC | 2.89 KM |
| Turkey Street | 6952 | TUR | 4.28 KM |
| Enfield Lock | 6815 | ENL | 4.36 KM |
Nearby Listings
| Address | Price | Type | Score | Distance |
|---|---|---|---|---|
| High Street, Waltham Cross, EN8 | £ 220,000 | BUY | 6 / 10 | 0.00 KM |
| Wycliffe Close, Cheshunt | £ 310,000 | BUY | 5 / 10 | 0.03 KM |
| Wycliffe Close, Cheshunt, Waltham Cross | £ 475,000 | BUY | 7 / 10 | 0.04 KM |
| Wycliffe Close, Cheshunt, Hertfordshire | £ 475,000 | BUY | 7 / 10 | 0.04 KM |
| Woolpack Court, High Street, Cheshunt, Hertfordshire, EN8 0BP | £ 450,000 | BUY | 8 / 10 | 0.07 KM |
Nearby Properties
| Address | Price | Distance |
|---|---|---|
| 46a High Street | £ 215,000 | 0.01 KM |
| 62a High Street | £ 113,000 | 0.05 KM |
| 62d High Street | £ 58,000 | 0.05 KM |
| 62b High Street | £ 173,500 | 0.05 KM |
| 8 Wycliffe Close | £ 200,000 | 0.07 KM |