Winkworth says ..
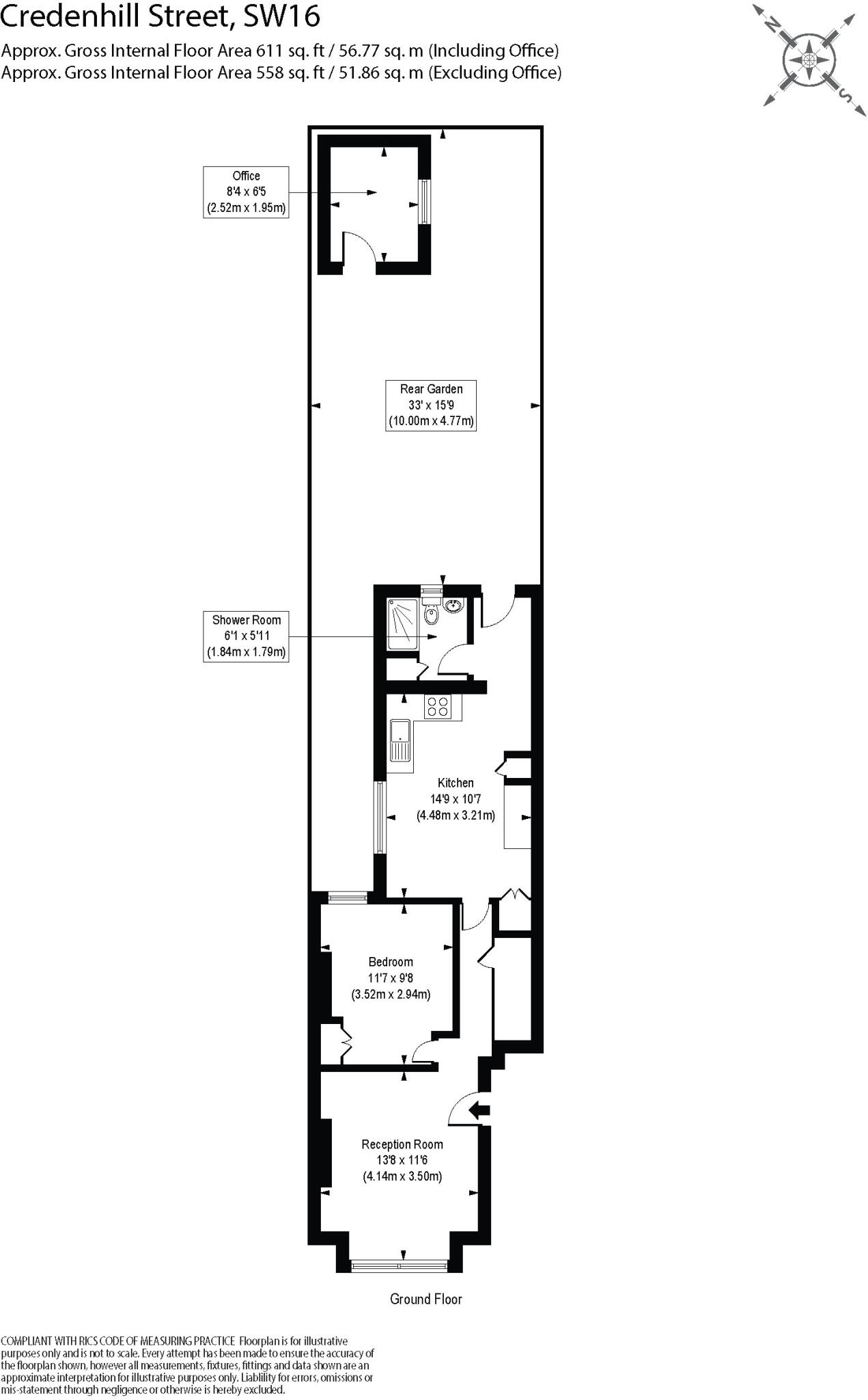
A beautifully presented one-bedroom garden flat with plenty of natural light. This ground floor property features a bright reception room, complete with elegant cornicing, window shutters, a charming Victorian fireplace, and wooden flooring throughout. The spacious double bedroom also boasts wood...
Property Oracle says ..
This one-bedroom property in Furzedown, Wandsworth, presents a well-renovated and attractively presented home. The photos showcase a modern, stylish interior with a recently updated kitchen and bathroom. The property benefits from a sizeable, well-maintained rear garden, a rare commodity in London. Its location in Furzedown provides access to good transport links via Streatham Common station and several well-regarded schools are nearby. The asking price appears competitive with other properties in the area given its state of renovation, but the precise square footage of the property and surrounding comparables must be considered for a truly accurate assessment of value. Overall, this property is likely to be attractive to first-time buyers or those seeking a modern, low-maintenance home in a convenient location. Note that a lack of complete data for nearby comparable properties makes determining a highly precise market analysis challenging.
Therefore, we give this property 7 / 10. *Disclaimer: This is our option and does constitute a recommendation or financial advice. Do your own research. *
- Price
- 7
- Condition
- 9
- Location
- 7
- Land
- 6
- Bedrooms
- 1
- Bathrooms
- 1
- Sqft (est)
- 611.07
The heatmap indicates the level of crime in the area. The color of the heatmap indicates the crime severity and recency.
Metrics Year-on-Year
- Average area value
- 579,986.00 £Decreased by 3.59 %
- Est sale value
- 345,254.55 £Decreased by 11.58 %
- Average area rental value
- 2,411.00 £/moDecreased by 0.29 %
- Est letting value
- 1,222.14 £/moUnchanged by 0.00 %
- Est rental Yield
- 4.99 %Increased by 3.53 %
- Crime Rate
- 4.00 %Unchanged by 0.00 %
Agent Activity
Winkworth created the listing.
Nearby Schools
| Name | Type | Ofsted | Distance |
|---|---|---|---|
| Penwortham Primary School | Community School | Good | 0.37 KM |
| Goldfinch Primary School | Academy Sponsor Led | 0.40 KM | |
| Granton Primary School | Community School | Outstanding | 0.65 KM |
| Fayland Children'S Centre | Children's Centre | 0.68 KM | |
| Graveney School | Academy Converter | Outstanding | 0.94 KM |
Images
Nearby Streets
| Name | Average Price | Average Sqft | Distance |
|---|---|---|---|
| Meadfoot Road | £ 550,000 | 0 | 0.00 KM |
| Bennetts Close | £ 0 | 0 | 0.00 KM |
| Woodside Way | £ 0 | 0 | 0.00 KM |
| Furzedown Road | £ 0 | 0 | 0.00 KM |
| Stirling Close | £ 344,375 | 0 | 0.00 KM |
Nearby Transport
| Name | NLC | TLC | Distance |
|---|---|---|---|
| Streatham Common | 5384 | SRC | 0.88 KM |
| Streatham | 5383 | STE | 1.50 KM |
| Mitcham Eastfields | 5069 | MTC | 1.82 KM |
| Tooting | 5389 | TOO | 1.93 KM |
| Norbury | 5428 | NRB | 2.61 KM |
Nearby Listings
| Address | Price | Type | Score | Distance |
|---|---|---|---|---|
| Credenhill Street, London, SW16 | £ 450,000 | BUY | 7 / 10 | 0.00 KM |
| Credenhill Street, Furzedown, SW16 | £ 399,950 | BUY | 6 / 10 | 0.02 KM |
| Credenhill Street, SW16 | £ 400,000 | BUY | 6 / 10 | 0.03 KM |
| Credenhill Street, Streatham, London, SW16 | £ 750,000 | BUY | 5 / 10 | 0.03 KM |
| Credenhill Street, LONDON, London, SW16 | £ 425,000 | BUY | 7 / 10 | 0.04 KM |
Nearby Properties
| Address | Price | Distance |
|---|---|---|
| 29 Credenhill Street | £ 325,000 | 0.03 KM |
| 65a Credenhill Street | £ 218,000 | 0.03 KM |
| 1c Credenhill Street | £ 230,000 | 0.03 KM |
| 57 Credenhill Street | £ 290,000 | 0.03 KM |
| 15a Credenhill Street | £ 173,000 | 0.03 KM |