Philip Ling Estates says ..
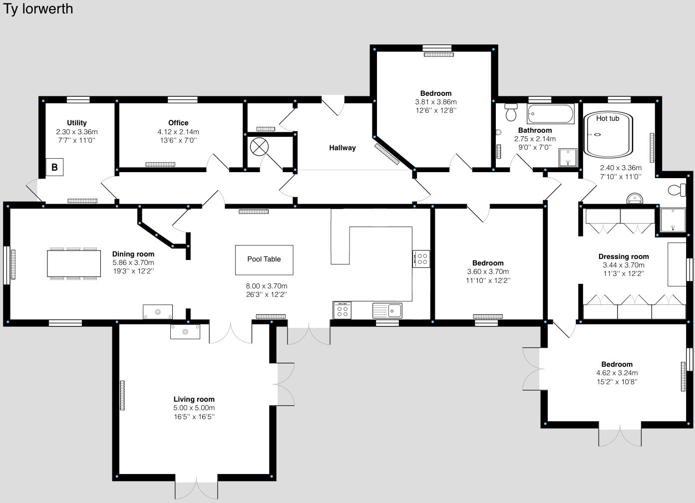
Ty Iorwerth is a traditionally built, three bedroom, detached property under a tiled roof. Access from the road is via a walled, double entrance onto a tarmacadam driveway, leading to the front of the property & detached garage with ample room for parking and turning. From the driveway there is a...
Property Oracle says ..
Therefore, we give this property 6 / 10. *Disclaimer: This is our option and does constitute a recommendation or financial advice. Do your own research. *
- Price
- 6
- Condition
- 6
- Location
- 7
- Land
- 7
- Bedrooms
- 3
- Bathrooms
- 2
The heatmap indicates the level of crime in the area. The color of the heatmap indicates the crime severity and recency.
Metrics Year-on-Year
- Average area value
- 310,998.00 £Decreased by 1.08 %
- Average area rental value
- 1,363.00 £/moIncreased by 13.58 %
- Est rental Yield
- 5.26 %Increased by 14.85 %
- Crime Rate
- 0.00 %
from 314,389.00 £
from 1,200.00 £/mo
from 4.58 %
from 0.00 %
Agent Activity
Philip Ling Estates created the listing.
Nearby Schools
| Name | Type | Ofsted | Distance |
|---|---|---|---|
| Ysgol Wirfoddol Penboyr | Welsh Establishment | 0.62 KM | |
| Ysgol Gynradd Brynsaron | Welsh Establishment | 3.66 KM | |
| Ysgol Y Ddwylan | Welsh Establishment | 7.26 KM | |
| Ysgol Gyfun Emlyn | Welsh Establishment | 7.41 KM |
Images
Nearby Streets
| Name | Average Price | Average Sqft | Distance |
|---|---|---|---|
| Pwllmarl Bungalows | £ 0 | 0 | 0.00 KM |
| Nantyrefail Fach | £ 552,500 | 0 | 0.00 KM |
| Glyncoed | £ 0 | 0 | 0.00 KM |
| Geler View | £ 93,750 | 0 | 0.00 KM |
| Graigwen | £ 279,950 | 0 | 0.00 KM |
Nearby Listings
| Address | Price | Type | Score | Distance |
|---|---|---|---|---|
| Ty Iorwerth, Waungilwen | £ 380,000 | BUY | 6 / 10 | 0.00 KM |
| Nant Gilwen Development | £ 400,000 | BUY | 7 / 10 | 0.15 KM |
| Drefach Felindre, Llandysul | £ 400,000 | BUY | 5 / 10 | 0.20 KM |
| Waungilwen,Llandysul, Carmarthenshire. SA44 5YF | £ 490,000 | BUY | 7 / 10 | 0.25 KM |
| Dre-Fach Felindre, Llandysul, SA44 | £ 250,000 | BUY | 6 / 10 | 0.27 KM |
Nearby Properties
| Address | Price | Distance |
|---|---|---|
| 1 Meiros Lane | £ 83,000 | 0.66 KM |
| 2 Meiros Lane | £ 85,000 | 0.66 KM |
| 4 Gilwen Terrace | £ 158,500 | 0.76 KM |
| 3 Gilwen Terrace | £ 40,000 | 0.76 KM |
| 5 Gilwen Terrace | £ 150,000 | 0.89 KM |