eXp UK says ..
QUOTE PROPERTY REF: LC0723. NO ONWARD CHAIN. Guide Price 130k-140k. Early viewing highly recommended for this three bedroom, terraced property in a popular area of Tredegar. Fully refurbed throughout to a high standard, with light and airy living spaces, and a large garden. Close to all the es...
Property Oracle says ..
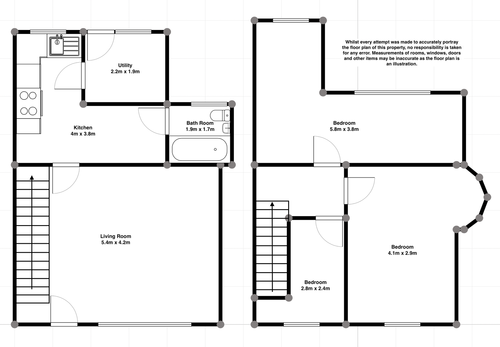
This is a three-bedroom terraced house on Beaufort Road in Tredegar. The interior has been modernised, featuring new carpets, a contemporary kitchen, and a well-maintained bathroom. The property includes a garden with a patio and a gravelled area. While the interior is in good condition, the exterior, particularly the garden, could use some improvement. The property is located in a residential area with access to local amenities and transportation links. Considering the price per square foot is significantly below the area average, this property presents good value for money.
Therefore, we give this property 6 / 10. *Disclaimer: This is our option and does constitute a recommendation or financial advice. Do your own research. *
- Price
- 8
- Condition
- 7
- Location
- 6
- Land
- 6
- Bedrooms
- 3
- Bathrooms
- 1
- Sqft (est)
- 925.05
The heatmap indicates the level of crime in the area. The color of the heatmap indicates the crime severity and recency.
Metrics Year-on-Year
- Average area value
- 300,000.00 £Decreased by 22.28 %
- Est sale value
- 391,296.15 £Decreased by 3.86 %
- Average area rental value
- 1,073.00 £/moDecreased by 13.47 %
- Est letting value
- 925.05 £/moUnchanged by 0.00 %
- Est rental Yield
- 4.29 %Increased by 11.43 %
- Crime Rate
- 8.00 %Unchanged by 0.00 %
Agent Activity
eXp UK created the listing.
Nearby Schools
| Name | Type | Ofsted | Distance |
|---|---|---|---|
| Glanhowy Primary School | Welsh Establishment | 1.16 KM | |
| Deighton Primary School | Welsh Establishment | 1.39 KM | |
| All Saints R.C. Primary School | Welsh Establishment | 1.74 KM | |
| Georgetown C.P. School | Welsh Establishment | 1.93 KM | |
| Tredegar Comprehensive School | Welsh Establishment | 2.09 KM |
Images
Nearby Streets
| Name | Average Price | Average Sqft | Distance |
|---|---|---|---|
| Colbourne Close | £ 135,000 | 0 | 0.00 KM |
| Graig-Y-Nos | £ 80,000 | 0 | 0.00 KM |
| Ebenezer Street | £ 0 | 0 | 0.00 KM |
| St. Georges Court | £ 65,000 | 0 | 0.00 KM |
| Shaw Close | £ 160,000 | 0 | 0.00 KM |
Nearby Transport
| Name | NLC | TLC | Distance |
|---|---|---|---|
| Ebbw Vale Town | 3628 | EBB | 3.86 KM |
| Ebbw Vale Parkway | 9915 | EBV | 5.40 KM |
| Pontlottyn | 4023 | PLT | 6.25 KM |
| Rhymney | 4027 | RHY | 6.45 KM |
| Tir-Phil | 4025 | TIR | 7.10 KM |
Nearby Listings
| Address | Price | Type | Score | Distance |
|---|---|---|---|---|
| Beaufort Road, Tredegar, NP22 4NY | £ 125,000 | BUY | 6 / 10 | 0.00 KM |
| Beaufort Road,Tredegar,NP22 4NY | £ 130,000 | BUY | 6 / 10 | 0.00 KM |
| Beaufort Road, Tredegar, NP22 | £ 120,000 | BUY | 6 / 10 | 0.00 KM |
| Beaufort Road, Tredegar | £ 130,000 | BUY | Unknown | 0.00 KM |
| Beaufort Road, Tredegar | £ 135,000 | BUY | Unknown | 0.06 KM |
Nearby Properties
| Address | Price | Distance |
|---|---|---|
| 85 Beaufort Road | £ 80,000 | 0.01 KM |
| 95 Beaufort Road | £ 70,000 | 0.01 KM |
| 116 Beaufort Road | £ 72,000 | 0.01 KM |
| 109 Beaufort Road | £ 89,500 | 0.01 KM |
| 89 Beaufort Road | £ 30,000 | 0.01 KM |