Sinnott Green says ..
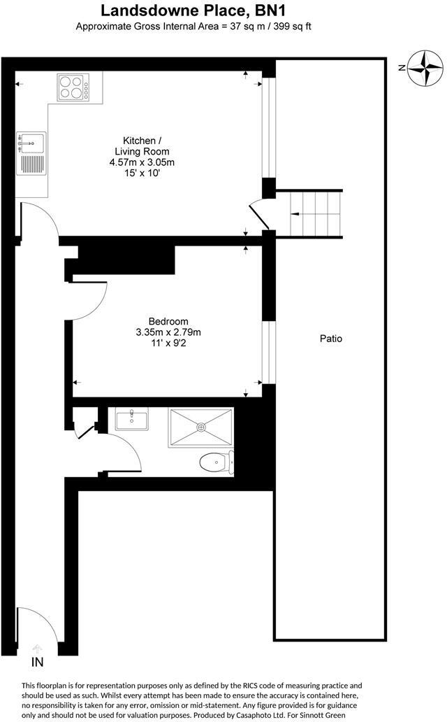
built circa 1850, this attractive GROUND FLOOR GARDEN FLAT is offered in good order, Open plan living room with RE FITTED KITCHEN, double bedroom, RE FITTED SHOWER ROOM, upvc double glazing, private patio, CHAIN FREE, great location being a short stroll to Church Road and the seafront
Property Oracle says ..
Therefore, we give this property 7 / 10. *Disclaimer: This is our option and does constitute a recommendation or financial advice. Do your own research. *
- Price
- 7
- Condition
- 8
- Location
- 8
- Land
- 6
- Bedrooms
- 1
- Bathrooms
- 1
- Sqft (est)
- 398.26
The heatmap indicates the level of crime in the area. The color of the heatmap indicates the crime severity and recency.
Metrics Year-on-Year
- Average area value
- 454,808.00 £Decreased by 9.50 %
- Est sale value
- 252,098.58 £Increased by 10.47 %
- Average area rental value
- 1,996.00 £/moIncreased by 22.91 %
- Est letting value
- 796.52 £/moIncreased by 100.00 %
- Est rental Yield
- 5.27 %Increased by 35.82 %
- Crime Rate
- 8.00 %Unchanged by 0.00 %
from 502,528.00 £
from 228,202.98 £
from 1,624.00 £/mo
from 398.26 £/mo
from 3.88 %
from 8.00 %
Agent Activity
Sinnott Green created the listing.
Nearby Schools
| Name | Type | Ofsted | Distance |
|---|---|---|---|
| Brunswick Primary School | Community School | Good | 0.20 KM |
| The Montessori Place | Other Independent School | Outstanding | 0.73 KM |
| Brighton Girls Gdst | Other Independent School | 0.77 KM | |
| Cardinal Newman Catholic School | Voluntary Aided School | Good | 1.08 KM |
| Cottesmore St Mary'S Catholic Primary School | Voluntary Aided School | Good | 1.09 KM |
Images
Nearby Streets
| Name | Average Price | Average Sqft | Distance |
|---|---|---|---|
| Cambridge Road | £ 481,238 | 0 | 0.00 KM |
| Kerrison Mews | £ 0 | 0 | 0.00 KM |
| Dudley Mews | £ 617,500 | 0 | 0.00 KM |
| Western Street | £ 0 | 0 | 0.00 KM |
| Norfolk Terrace | £ 263,750 | 0 | 0.00 KM |
Nearby Transport
| Name | NLC | TLC | Distance |
|---|---|---|---|
| Hove | 5273 | HOV | 1.52 KM |
| Brighton | 5268 | BTN | 2.02 KM |
| Preston Park | 5285 | PRP | 2.12 KM |
| London Road (Brighton) | 5281 | LRB | 2.74 KM |
| Aldrington | 5280 | AGT | 2.88 KM |
Nearby Listings
| Address | Price | Type | Score | Distance |
|---|---|---|---|---|
| Lansdowne Place, Hove | £ 229,500 | BUY | 7 / 10 | 0.00 KM |
| Lansdowne Place, Hove, BN3 1FJ | £ 250,000 | BUY | Unknown | 0.01 KM |
| Lansdowne Place, Hove | £ 450,000 | BUY | 6 / 10 | 0.01 KM |
| Lansdowne Place, Hove | £ 130,000 | BUY | 4 / 10 | 0.01 KM |
| 104, Lansdowne Place, Hove, BN3 1FJ | £ 1,000,000 | BUY | 3 / 10 | 0.01 KM |
Nearby Properties
| Address | Price | Distance |
|---|---|---|
| 106a Lansdowne Place | £ 72,500 | 0.01 KM |
| Second Floor Flat | £ 120,000 | 0.06 KM |
| 125b Lansdowne Place | £ 54,950 | 0.06 KM |
| 98b Lansdowne Place | £ 812,000 | 0.07 KM |
| 18 Farm Road | £ 880,000 | 0.07 KM |