PLOTS 1 - 5 Schoolyard Gardens, HD6
By Fine & Country
£ 415,000
Reviews
4 out of 5 stars
Fine & Country says ..
COMING SOON - CALL US TO REGISTER YOUR INTEREST
Property Oracle says ..
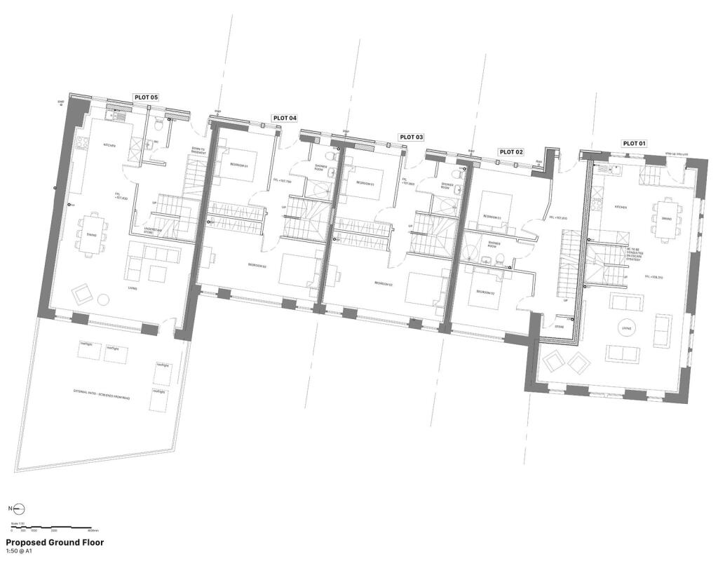
The property is located in Rastrick, Calderdale, a desirable area in West Yorkshire. The area benefits from good local schools, including Longroyde Primary School, Rastrick High School, Carr Green Primary School, Highbury School and Field Lane Primary School, all within a reasonable distance. The proximity to Brighouse train station provides convenient access to other towns and cities. Based on the provided images, the property appears to be a new build, offering modern and well-designed interiors. The development includes a communal garden, as shown in the aerial and garden images. While the exact plot size is not specified, the images suggest a reasonable amount of outdoor space. The list price of £415,000 is higher than the average price for the area (£249,500), but this is likely due to the new build status, modern design, and the inclusion of a communal garden. Considering comparable properties in the area and the overall quality of the development, the price appears reasonable, although it is at the higher end of the market.
Therefore, we give this property 8 / 10. *Disclaimer: This is our option and does constitute a recommendation or financial advice. Do your own research. *
- Price
- 7
- Condition
- 10
- Location
- 8
- Land
- 7
- Bedrooms
- 4
- Bathrooms
- 2
The heatmap indicates the level of crime in the area. The color of the heatmap indicates the crime severity and recency.
Metrics Year-on-Year
- Average area value
- 280,825.00 £Increased by 28.98 %
- Average area rental value
- 925.00 £/moIncreased by 6.57 %
- Est rental Yield
- 3.95 %Decreased by 17.36 %
- Crime Rate
- 4.00 %Unchanged by 0.00 %
Agent Activity
Fine & Country created the listing.
Nearby Schools
| Name | Type | Ofsted | Distance |
|---|---|---|---|
| Longroyde Primary School | Foundation School | Good | 0.64 KM |
| Rastrick High School | Academy Converter | Good | 0.67 KM |
| Carr Green Primary School | Community School | Outstanding | 0.70 KM |
| Highbury School | Community Special School | Outstanding | 1.17 KM |
| Field Lane Primary School | Academy Sponsor Led | Requires improvement | 1.28 KM |
Images
Nearby Streets
| Name | Average Price | Average Sqft | Distance |
|---|---|---|---|
| The Forge | £ 0 | 0 | 0.00 KM |
| Jumble Dyke | £ 245,000 | 0 | 0.00 KM |
| Back Close Lea Drive | £ 140,000 | 0 | 0.00 KM |
| Healey Wood Gardens | £ 450,000 | 0 | 0.00 KM |
| Town View | £ 235,000 | 0 | 0.00 KM |
Nearby Transport
| Name | NLC | TLC | Distance |
|---|---|---|---|
| Brighouse | 8514 | BGH | 1.38 KM |
| Huddersfield | 8437 | HUD | 4.75 KM |
| Deighton | 8441 | DHN | 4.85 KM |
| Lockwood | 8443 | LCK | 6.37 KM |
| Low Moor | 8416 | LMR | 7.69 KM |
Nearby Listings
| Address | Price | Type | Score | Distance |
|---|---|---|---|---|
| PLOTS 6 - 11 Schoolyard Gardens, Brighouse, HD6 | £ 435,000 | BUY | 8 / 10 | 0.00 KM |
| PLOTS 1 - 5 Schoolyard Gardens, HD6 | £ 415,000 | BUY | 8 / 10 | 0.00 KM |
| PLOT 3 Schoolyard Gardens, HD6 | £ 415,000 | BUY | 7 / 10 | 0.00 KM |
| PLOT 4, Schoolyard Gardens, HD6 | £ 425,000 | BUY | 6 / 10 | 0.00 KM |
| 20 Ogden Lane, Rastrick, HD6 3HF | £ 179,950 | BUY | 6 / 10 | 0.01 KM |
Nearby Properties
| Address | Price | Distance |
|---|---|---|
| 11 Stackgarth | £ 121,500 | 0.02 KM |
| 5 Ivy Terrace | £ 140,000 | 0.18 KM |
| 6 Grammar School Place | £ 140,000 | 0.20 KM |
| 13 Church Street | £ 245,000 | 0.21 KM |
| 18 Church Street | £ 100,000 | 0.21 KM |