Hamptons Sales says ..
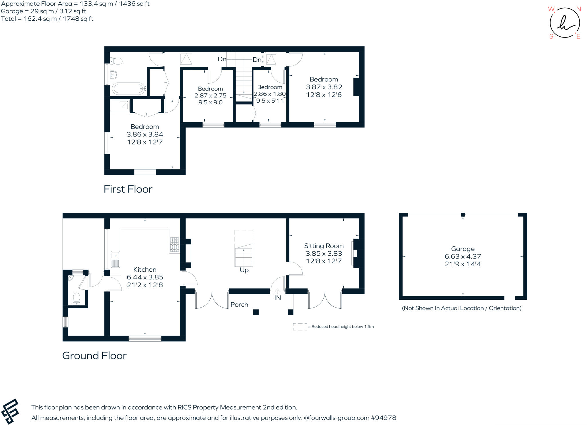
Located in the popular hamlet of Priding lies this lovely four bedroom cottage sat on a big plot with an abundance of gardens & grounds.
Property Oracle says ..
Therefore, we give this property 6 / 10. *Disclaimer: This is our option and does constitute a recommendation or financial advice. Do your own research. *
- Price
- 6
- Condition
- 6
- Location
- 7
- Land
- 8
- Bedrooms
- 4
- Bathrooms
- 2
- Sqft (est)
- 1,111.80
The heatmap indicates the level of crime in the area. The color of the heatmap indicates the crime severity and recency.
Metrics Year-on-Year
- Average area value
- 468,189.00 £Increased by 38.49 %
- Est sale value
- 548,117.40 £Increased by 75.44 %
- Average area rental value
- 2,227.00 £/moIncreased by 30.77 %
- Est letting value
- 2,223.60 £/moIncreased by 100.00 %
- Est rental Yield
- 5.71 %Decreased by 5.46 %
- Crime Rate
- 0.00 %
from 338,065.00 £
from 312,415.80 £
from 1,703.00 £/mo
from 1,111.80 £/mo
from 6.04 %
from 0.00 %
Agent Activity
Hamptons Sales created the listing.
Nearby Schools
| Name | Type | Ofsted | Distance |
|---|---|---|---|
| Lakefield Cofe Primary School | Academy Converter | Good | 2.40 KM |
| Longney Church Of England Primary Academy | Academy Converter | Good | 3.98 KM |
| Walmore Hill Primary School | Community School | Good | 4.21 KM |
| Whitminster Endowed Church Of England Primary School | Voluntary Controlled School | Good | 4.79 KM |
| Westbury-On-Severn Church Of England Primary School | Voluntary Aided School | Good | 5.44 KM |
Images
Nearby Streets
| Name | Average Price | Average Sqft | Distance |
|---|---|---|---|
| Riverside Cottages | £ 445,000 | 0 | 0.00 KM |
| Epney Road | £ 0 | 0 | 0.00 KM |
| Bury Court Road | £ 899,950 | 0 | 0.00 KM |
| Park View | £ 0 | 0 | 0.00 KM |
| Moor Street | £ 616,225 | 0 | 0.00 KM |
Nearby Transport
| Name | NLC | TLC | Distance |
|---|---|---|---|
| Cam And Dursley | 3238 | CDU | 8.53 KM |
Nearby Listings
| Address | Price | Type | Score | Distance |
|---|---|---|---|---|
| Overton Lane, Priding, GL2 | £ 550,000 | BUY | 6 / 10 | 0.00 KM |
| Priding, Saul | £ 450,000 | BUY | 7 / 10 | 0.06 KM |
| Framilode Passage, Saul | £ 550,000 | BUY | 8 / 10 | 0.49 KM |
| Framilode Passage | £ 675,000 | BUY | 7 / 10 | 0.51 KM |
| Framilode Passage | £ 500,000 | BUY | 7 / 10 | 0.55 KM |
Nearby Properties
| Address | Price | Distance |
|---|---|---|
| Sunflower Cottage | £ 350,000 | 0.09 KM |
| Orchard House | £ 605,000 | 0.11 KM |
| The Hollies | £ 365,000 | 0.41 KM |
| 6 Park View | £ 240,000 | 1.27 KM |
| 11 Passage Road | £ 360,000 | 1.32 KM |