Bury St. Edmunds, Suffolk
BE

Bury St. Edmunds, Suffolk

By Bedfords

£ 295,000

Reviews

3 out of 5 stars

Bedfords says ..

OPEN DAY - Saturday 29th March - 10am to 12noon. No appointment necessary. Semi-detached four-bedroom home in need of modernisation with no upward chain.

Property Oracle says ..

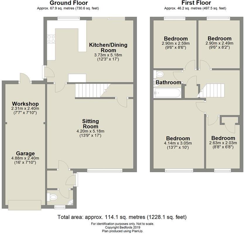
This property is a 4-bedroom semi-detached house located in Bury St Edmunds, Suffolk. The property benefits from a garage and a garden. It is in a convenient location with nearby schools and transportation links. While the property appears to be in reasonable condition, some modernisation may be needed to enhance its appeal. The list price of £295,000 is slightly below the average price for the area, but given the property’s size and condition, it seems to be a reasonable price.

Therefore, we give this property 7 / 10. *Disclaimer: This is our option and does constitute a recommendation or financial advice. Do your own research. *

Price
7
Condition
7
Location
8
Land
6
Bedrooms
4
Bathrooms
1
Sqft (est)
1,228.16

The heatmap indicates the level of crime in the area. The color of the heatmap indicates the crime severity and recency.

Metrics Year-on-Year

Average area value
488,748.00 £
Decreased by 5.95 %
from 519,665.00 £
Est sale value
611,623.68 £
Decreased by 4.60 %
from 641,099.52 £
Average area rental value
1,587.00 £/mo
Decreased by 5.76 %
from 1,684.00 £/mo
Est letting value
1,228.16 £/mo
Unchanged by 0.00 %
from 1,228.16 £/mo
Est rental Yield
3.90 %
Increased by 0.26 %
from 3.89 %
Crime Rate
7.00 %
Unchanged by 0.00 %
from 7.00 %

Agent Activity

  • Bedfords created the listing.

Nearby Schools

NameTypeOfstedDistance
South Lee SchoolOther Independent School0.36 KM
Hardwick Children'S CentreChildren's Centre0.44 KM
Hardwick Primary SchoolAcademy Converter0.64 KM
Riverwalk SchoolAcademy Special Converter1.14 KM
Learning Support, Western Area Education OfficeMiscellaneous1.20 KM

Images

Picture No. 16 Picture No. 19 Picture No. 18 Picture No. 13 Picture No. 14 Picture No. 12 Picture No. 10 Picture No. 08 Picture No. 11 Picture No. 09 Picture No. 07 Picture No. 02 Picture No. 05 Picture No. 03 Picture No. 06 Picture No. 04

Nearby Streets

NameAverage PriceAverage SqftDistance
Victory Close £ 000.00 KM
Haven Close £ 000.00 KM
Vale Lane £ 180,00000.00 KM
Wilks Road £ 250,00000.00 KM
Sandpiper Road £ 252,50000.00 KM

Nearby Transport

NameNLCTLCDistance
Bury St Edmunds7008BSE2.91 KM
Thurston7356TRS9.13 KM

Nearby Listings

AddressPriceTypeScoreDistance
Bury St. Edmunds, Suffolk £ 295,000BUY7 / 100.00 KM
Victory Close, Bury St. Edmunds £ 360,000BUY7 / 100.05 KM
Victory Close, Bury St Edmunds £ 290,000BUY6 / 100.07 KM
Bury Park Drive, Bury St. Edmunds £ 325,000BUY7 / 100.13 KM
Sicklesmere Road, Bury St. Edmunds £ 475,000BUY6 / 100.17 KM

Nearby Properties

AddressPriceDistance
14 Victory Close £ 192,0000.03 KM
5 Victory Close £ 219,5000.03 KM
15 Victory Close £ 277,0000.03 KM
6 Victory Close £ 370,0000.04 KM
19 Victory Close £ 446,5000.04 KM