Elliot Close, Oadby, Leicester
Phillips George Estate Agents logo

Elliot Close, Oadby, Leicester

By Phillips George Estate Agents

£ 495,000

Reviews

3 out of 5 stars

Phillips George Estate Agents says ..

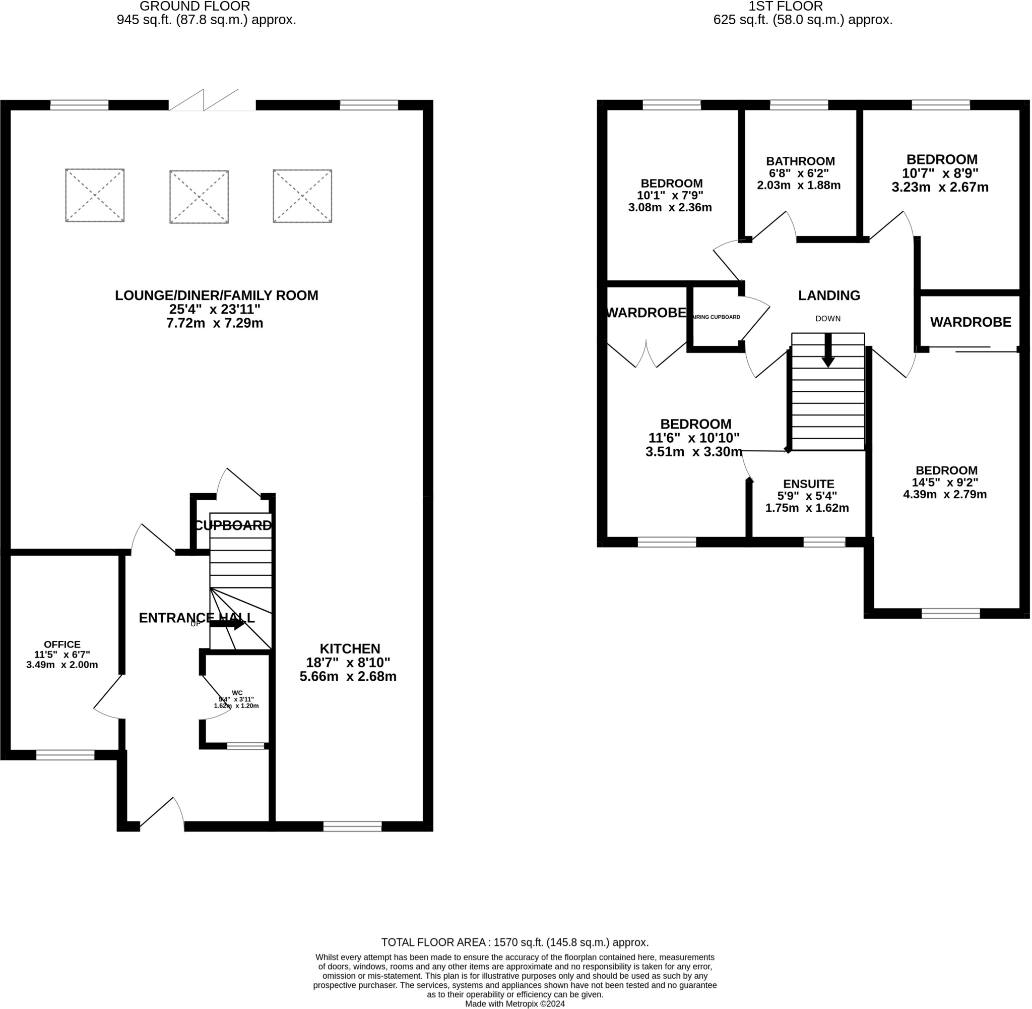
Open plan family living at is finest! This property has undergone a schedule of refurbishment and reconfiguration to make the home flow in a much more desirable and modern way and has been finished to an impeccable standard. The size and presentation of the home combined with the ongoing desirabi...

Property Oracle says ..

This four-bedroom, two-bathroom detached house in Elliot Close, Oadby, presents as a well-maintained and recently updated family home. The property benefits from a modern, contemporary design, evident in the kitchen and bathrooms which feature stylish fixtures and high-quality finishes. The open-plan living area, incorporating a pool table, is a unique selling point which suggests a versatile and family-friendly layout. The extension, clearly seen in the rear photographs, adds considerably to the overall living space. The inclusion of a garden, though perhaps not expansive, provides outdoor space.

The location in Oadby is advantageous, with highly-rated schools within reasonable proximity, suggesting appeal to families. Access to Leicester and South Wigston adds to the convenience. While comparable properties are available in the area, the extensive refurbishment and modern finishes of this property suggest that the list price reflects the investment made to improve it, offering a contemporary and well-presented home suitable for family living. Further information on the plot size would allow for a more detailed analysis of its value. The lack of sqft data in the comparable properties makes it difficult to come to more definitive conclusions about its value and a precise comparison to the local average price per sqft.

Therefore, we give this property 7 / 10. *Disclaimer: This is our option and does constitute a recommendation or financial advice. Do your own research. *

Price
7
Condition
9
Location
8
Land
4
Bedrooms
4
Bathrooms
2
Sqft (est)
1,569.38

The heatmap indicates the level of crime in the area. The color of the heatmap indicates the crime severity and recency.

Metrics Year-on-Year

Average area value
406,377.00 £
Increased by 5.24 %
from 386,160.00 £
Est sale value
900,824.12 £
Increased by 16.19 %
from 775,273.72 £
Average area rental value
1,398.00 £/mo
Increased by 12.02 %
from 1,248.00 £/mo
Est letting value
1,569.38 £/mo
Unchanged by 0.00 %
from 1,569.38 £/mo
Est rental Yield
4.13 %
Increased by 6.44 %
from 3.88 %
Crime Rate
7.00 %
Unchanged by 0.00 %
from 7.00 %

Agent Activity

  • Phillips George Estate Agents created the listing.

Nearby Schools

NameTypeOfstedDistance
Woodland Grange Primary SchoolAcademy Converter0.21 KM
Manor High SchoolAcademy ConverterGood1.21 KM
Brookside Primary SchoolAcademy Converter1.35 KM
Beauchamp CollegeAcademy Converter1.81 KM
Gartree High SchoolAcademy ConverterOutstanding1.97 KM

Images

IMG_6602_DxO_EDIT IMG_6552_DxO_WORK... IMG_6562_DxO IMG_6570_DxO IMG_6435_DxO IMG_6556_DxO IMG_6582_DxO IMG_6529_DxO IMG_6461_DxO IMG_6481_DxO IMG_6416_DxO IMG_6448_DxO IMG_6516_DxO IMG_6537_DxO_ IMG_6452_DxO IMG_6611_DxO_EDIT IMG_6547_DxO IMG_6574_DxO IMG_6524_DxO IMG_6465_DxO IMG_6422_DxO IMG_6606_DxO_EDIT

Nearby Streets

NameAverage PriceAverage SqftDistance
Fenwick Road £ 000.00 KM
Florence Wragg Way £ 405,00000.00 KM
Laurel Drive £ 000.00 KM
Tamar Road £ 500,00000.00 KM
Belvoir Close £ 000.00 KM

Nearby Transport

NameNLCTLCDistance
South Wigston1949SWS8.64 KM
Leicester1947LEI8.71 KM

Nearby Listings

AddressPriceTypeScoreDistance
Elliot Close, Oadby, Leicester £ 495,000BUY7 / 100.00 KM
Devonia Road, Oadby, LE2 £ 475,000BUY7 / 100.04 KM
Elliot Close, OADBY, Leicester, Leicestershire, LE2 £ 395,000BUY7 / 100.05 KM
Elliot Close, Oadby, Leicester £ 420,000BUY6 / 100.05 KM
Hawker Road, Oadby, Leicester, LE2 £ 420,000BUY7 / 100.10 KM

Nearby Properties

AddressPriceDistance
16 Elliot Close £ 126,0000.03 KM
6 Elliot Close £ 225,0000.03 KM
19 Elliot Close £ 212,0000.03 KM
9 Elliot Close £ 237,0000.03 KM
18 Elliot Close £ 226,0000.03 KM