June Lane, Midhurst, West Sussex, GU29
SO

June Lane, Midhurst, West Sussex, GU29

By Southdown Property Solutions

£ 965,000

Reviews

4 out of 5 stars

Southdown Property Solutions says ..

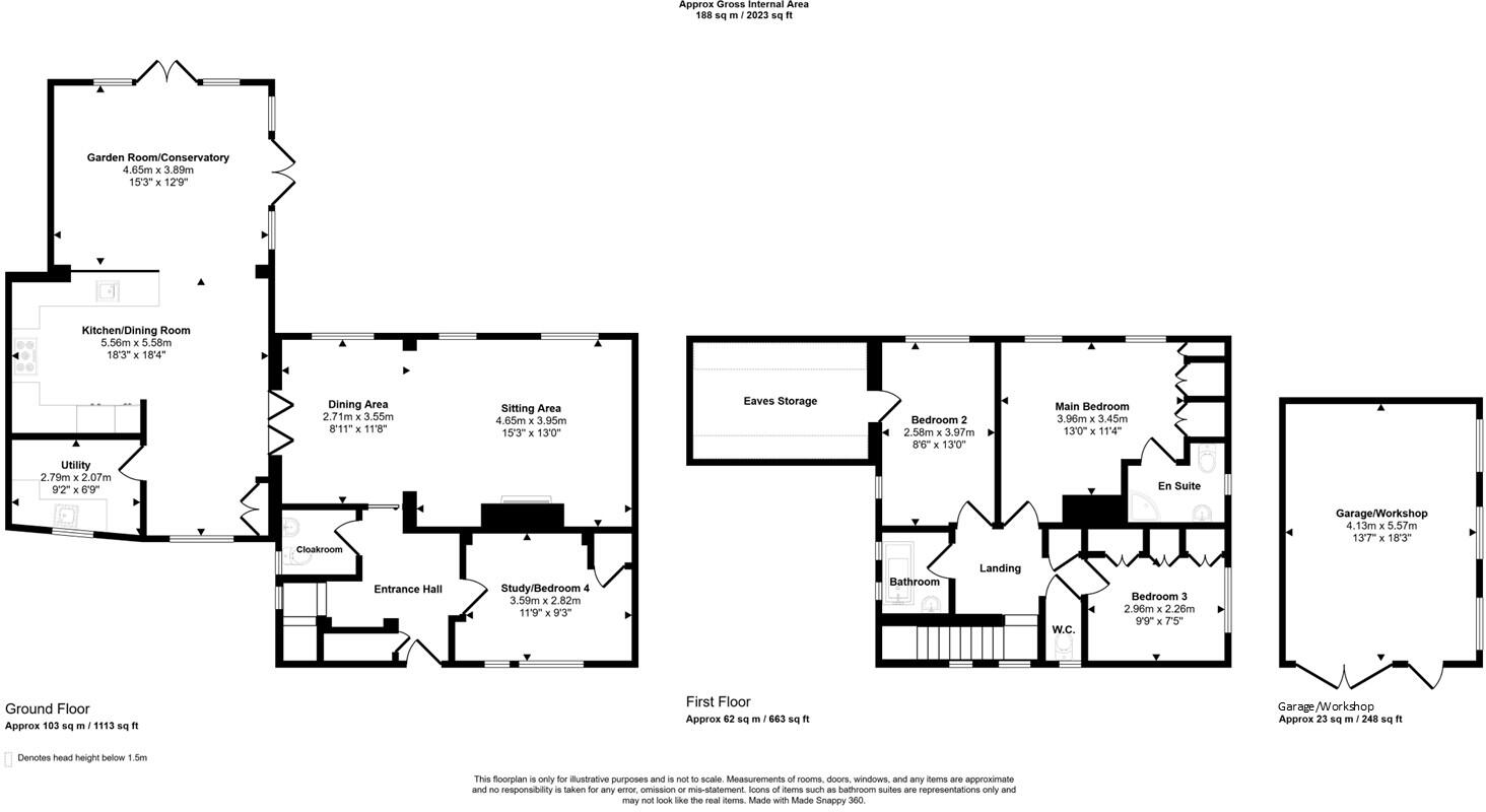
360 TOUR AVAILABLE Situated in a sought-after residential road within 1/4 mile of the town centre, this exceptionally well presented home offers a wonderful blend of quality and elegance, and being set in a plot of around 0.25 acre is complemented by a delightful south-westerly landscaped re...

Property Oracle says ..

The property is located in Midhurst, West Sussex, a town known for its charming market square and proximity to the South Downs National Park. The nearby Midhurst Rother College is rated as \“Outstanding\” by Ofsted, suggesting good local schooling options. The property itself appears to be well-maintained and in excellent condition, with recent renovations or extensions evident in the images. There is a substantial garden, featuring mature trees and landscaping. The list price is significantly higher than the average house price in the area, however, the property’s size (2,023.62 sqft) is considerably larger than the average (1,024 sqft), and its condition and features (including a conservatory and detached garage) justify a premium. While a definitive price per sqft comparison is impossible due to missing data in nearby listings, the property appears to offer good value considering its size, condition, and location, although it is important to note that the property is more than double the average price for the area. The property also benefits from a large garden which is a desirable feature in the area.

Therefore, we give this property 8 / 10. *Disclaimer: This is our option and does constitute a recommendation or financial advice. Do your own research. *

Price
7
Condition
9
Location
8
Land
8
Bedrooms
3
Bathrooms
2
Sqft (est)
2,023.62

The heatmap indicates the level of crime in the area. The color of the heatmap indicates the crime severity and recency.

Metrics Year-on-Year

Average area value
568,889.00 £
Decreased by 6.48 %
from 608,317.00 £
Est sale value
983,479.32 £
Decreased by 15.33 %
from 1,161,557.88 £
Average area rental value
1,200.00 £/mo
Decreased by 24.24 %
from 1,584.00 £/mo
Est letting value
2,023.62 £/mo
Unchanged by 0.00 %
from 2,023.62 £/mo
Est rental Yield
2.53 %
Decreased by 18.91 %
from 3.12 %
Crime Rate
22.00 %
Unchanged by 0.00 %
from 22.00 %

Agent Activity

  • Southdown Property Solutions created the listing.

Nearby Schools

NameTypeOfstedDistance
Midhurst Rother CollegeAcademy Sponsor LedOutstanding0.34 KM
Midhurst Cofe Primary SchoolVoluntary Controlled SchoolGood0.59 KM
Conifers SchoolOther Independent School1.43 KM
Easebourne Cofe Primary SchoolVoluntary Controlled SchoolGood1.79 KM
Stedham Primary SchoolCommunity SchoolGood4.11 KM

Images

Picture No. 20 Picture No. 17 Picture No. 11 Picture No. 05 Picture No. 09 Picture No. 01 Picture No. 02 Picture No. 04 Picture No. 07 Picture No. 08 Picture No. 10 Picture No. 12 Picture No. 13 Picture No. 15 Picture No. 16 Picture No. 18 Picture No. 19 Picture No. 21 Picture No. 22 Picture No. 23 Picture No. 24 Picture No. 25

Nearby Streets

NameAverage PriceAverage SqftDistance
Wyndham Court £ 399,95000.00 KM
Belloc Close £ 000.00 KM
Pretoria Road £ 000.00 KM
Hill Top £ 000.00 KM
Victoria Avenue £ 316,66700.00 KM

Nearby Listings

AddressPriceTypeScoreDistance
June Lane, Midhurst, West Sussex, GU29 £ 965,000BUY8 / 100.00 KM
June Lane, Midhurst, West Sussex, GU29 £ 345,000BUY5 / 100.01 KM
June Lane, MIDHURST, West Sussex, GU29 £ 280,000BUY5 / 100.01 KM
June Lane, Midhurst, GU29 £ 450,000BUY7 / 100.01 KM
June Lane, Midhurst, GU29 £ 450,000BUY7 / 100.01 KM

Nearby Properties

AddressPriceDistance
Sandyridge £ 340,0000.01 KM
Heather Bank £ 220,0000.01 KM
Trenance £ 370,0000.01 KM
Hideaway £ 475,0000.01 KM
Bramleys £ 788,0000.01 KM