Lee Street, Hull, East Riding Of Yorkshire, HU8
By Taylors
£ 170,000
Reviews
3 out of 5 stars
Taylors says ..
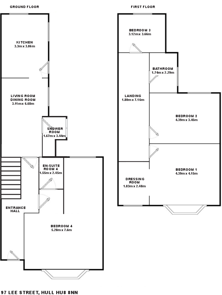
OFFERS £170K To £180K*ATTENTION INVESTORS*RARE INVESTMENT OPPORTUNITY IN ESTABLISHED LOCATION*STRONG YIELDS WITH SETTLED TENANTS*WELL MAINTAINED HMO PROPERTY (4 ROOMS)*SAFETY CERTIFICATES AVAILABLE*2 COMMUNAL BATHROOMS & 1 EN-SUITE*TURN KEY INVESTMENT*GROSS RENT £24,870*HISTORY CAN BE PROVIDED
Property Oracle says ..
The property is a 4 bedroom end of terrace house located on Lee Street, Hull, East Riding of Yorkshire. It has 3 bathrooms and is 1,608.13 square feet. The list price is £170,000.
The property is situated in the Holderness area of Kingston Upon Hull. Several good primary schools are within a kilometre radius, including Westcott Primary School and Malet Lambert. The property is also reasonably close to Hull train station (4.73km).
Based on the provided images, the property appears to be in good condition. The kitchen and bathrooms have recently been modernised. The décor throughout the property is modern and clean. There is no evidence of significant repair or renovation needs.
The property has a small yard/garden area to the rear. The plot size is listed as 0.00 sqft, suggesting this is minimal.
Considering the average house price in the area is £148,654 and the average price per sqft is £161, the list price of £170,000 for this 1608 sqft property seems slightly high, but not unreasonable. Nearby comparable properties on Lee Street have sold for between £85,000 and £155,000, indicating some price variation in the street. The higher end of this range supports the asking price, although the lack of plot size information for comparable properties makes a precise comparison difficult. The property’s modernised interior and proximity to schools and transport links could justify a slightly higher price than some of the other properties on Lee Street.
Therefore, we give this property 6 / 10. *Disclaimer: This is our option and does constitute a recommendation or financial advice. Do your own research. *
- Price
- 7
- Condition
- 8
- Location
- 7
- Land
- 3
- Bedrooms
- 4
- Bathrooms
- 3
- Sqft (est)
- 1,608.13
The heatmap indicates the level of crime in the area. The color of the heatmap indicates the crime severity and recency.
Metrics Year-on-Year
- Average area value
- 169,091.00 £Increased by 8.36 %
- Est sale value
- 360,221.12 £Increased by 38.27 %
- Average area rental value
- 772.00 £/moIncreased by 26.14 %
- Est letting value
- 1,608.13 £/mo
- Est rental Yield
- 5.48 %Increased by 16.35 %
- Crime Rate
- 11.00 %Unchanged by 0.00 %
Agent Activity
Taylors created the listing.
Nearby Schools
| Name | Type | Ofsted | Distance |
|---|---|---|---|
| Westcott Primary School | Academy Sponsor Led | Good | 0.58 KM |
| Malet Lambert | Academy Converter | Good | 0.97 KM |
| Estcourt Primary Academy | Academy Converter | Good | 1.00 KM |
| Buckingham Primary Academy | Academy Sponsor Led | Good | 1.01 KM |
| Estcourt | Children's Centre Linked Site | 1.05 KM |
Images
Nearby Streets
| Name | Average Price | Average Sqft | Distance |
|---|---|---|---|
| Byron Street | £ 125,000 | 0 | 0.00 KM |
| Acacia Drive | £ 130,000 | 0 | 0.00 KM |
| Pear Tree Close | £ 225,000 | 0 | 0.00 KM |
| Thornhill Avenue | £ 0 | 0 | 0.00 KM |
| Cambriam Avenue | £ 70,000 | 0 | 0.00 KM |
Nearby Transport
| Name | NLC | TLC | Distance |
|---|---|---|---|
| Hull | 8126 | HUL | 4.73 KM |
| New Holland | 6209 | NHL | 8.92 KM |
Nearby Listings
| Address | Price | Type | Score | Distance |
|---|---|---|---|---|
| Lee Street, Hull, East Riding Of Yorkshire, HU8 | £ 170,000 | BUY | 6 / 10 | 0.00 KM |
| Wordsworth Street, Hull, East Yorkshire, HU8 | £ 110,000 | BUY | 6 / 10 | 0.08 KM |
| Lee Street, Hull | £ 120,000 | BUY | Unknown | 0.09 KM |
| Summergangs Road, Hull, HU8 | £ 140,000 | BUY | 6 / 10 | 0.14 KM |
| Summergangs Road, Hull, HU8 | £ 132,500 | BUY | Unknown | 0.14 KM |
Nearby Properties
| Address | Price | Distance |
|---|---|---|
| 85 Lee Street | £ 150,000 | 0.00 KM |
| 75 Lee Street | £ 155,000 | 0.00 KM |
| 91 Lee Street | £ 116,000 | 0.00 KM |
| 102 Lee Street | £ 67,000 | 0.00 KM |
| 108 Lee Street | £ 85,000 | 0.00 KM |