Cumber Close, Malborough, Kingsbridge, TQ7
By Charles Head
£ 250,000
Reviews
2 out of 5 stars
Charles Head says ..
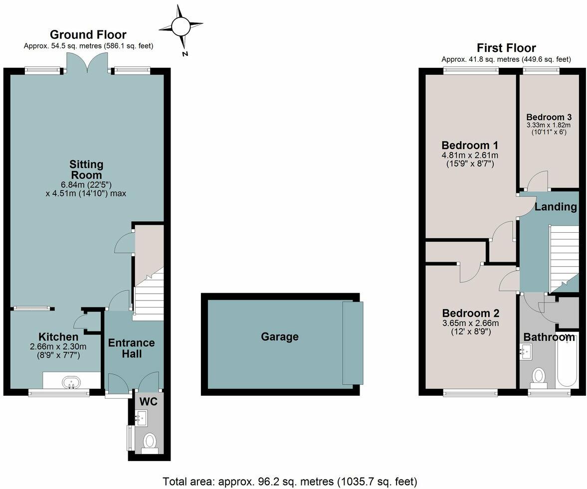
This 3-bedroom property, boasting stunning countryside views, is a blank canvas waiting for your personal touch. Ready for renovation, it could be your next exciting project.
Property Oracle says ..
This three-bedroom property in Malborough, Kingsbridge, presents a mixed bag of opportunities and challenges. The location benefits from proximity to several well-regarded schools and the attractive South Hams area, but access to public transportation is limited. The house itself needs a significant investment in modernization. The interior images clearly show a property in need of extensive refurbishment. From floor coverings to bathroom fixtures and wall repairs in one bedroom, substantial renovation work is needed throughout. The small, enclosed garden space offers privacy but is modest in size. The price point of £250,000 reflects the condition and desirability of the location, requiring a prospective buyer to factor in significant renovation costs. Additional information on comparable properties in the area and school catchment zones would provide a more accurate evaluation of its value. Overall, the property offers the potential for creating a desirable home but requires a significant budget to realise its full potential. The absence of nearby comparable properties hinders a complete market analysis, and a buyer would need to conduct thorough due diligence to reach a fully informed decision. The property’s condition is its major drawback; however, with the right investment, it could transform into a pleasant family home in an otherwise appealing location.
Therefore, we give this property 5 / 10. *Disclaimer: This is our option and does constitute a recommendation or financial advice. Do your own research. *
- Price
- 7
- Condition
- 4
- Location
- 6
- Land
- 3
- Bedrooms
- 3
- Bathrooms
- 1
- Sqft (est)
- 1,035.49
The heatmap indicates the level of crime in the area. The color of the heatmap indicates the crime severity and recency.
Metrics Year-on-Year
- Average area value
- 504,375.00 £Decreased by 47.90 %
- Est sale value
- 567,448.52 £Decreased by 36.35 %
- Average area rental value
- 1,350.00 £/moDecreased by 5.40 %
- Est letting value
- 1,035.49 £/moUnchanged by 0.00 %
- Est rental Yield
- 3.21 %Increased by 81.36 %
- Crime Rate
- 24.00 %Unchanged by 0.00 %
Agent Activity
Charles Head created the listing.
Nearby Schools
| Name | Type | Ofsted | Distance |
|---|---|---|---|
| Malborough With South Huish Church Of England Primary School | Voluntary Controlled School | Good | 0.93 KM |
| Salcombe Church Of England Primary School | Academy Converter | Good | 3.18 KM |
| West Alvington Church Of England Academy | Academy Converter | Good | 4.64 KM |
| Kingsbridge Academy | Academy Converter | 5.08 KM | |
| Kingsbridge Community Primary School | Community School | Requires improvement | 6.60 KM |
Images
Nearby Streets
| Name | Average Price | Average Sqft | Distance |
|---|---|---|---|
| Rookhouse Lane | £ 0 | 0 | 0.00 KM |
| Stable Court | £ 0 | 0 | 0.00 KM |
| Well Hill | £ 0 | 0 | 0.00 KM |
| Higher Soar Badgers Barn | £ 0 | 0 | 0.00 KM |
Nearby Listings
| Address | Price | Type | Score | Distance |
|---|---|---|---|---|
| Cumber Close, Malborough, Kingsbridge, TQ7 | £ 250,000 | BUY | 5 / 10 | 0.00 KM |
| Cumber Close, Malborough | £ 255,000 | BUY | 7 / 10 | 0.04 KM |
| Cumber Close, Malborough | £ 380,000 | BUY | 7 / 10 | 0.05 KM |
| Cumber Close, Malborough, Kingsbridge | £ 195,000 | BUY | 6 / 10 | 0.06 KM |
| Cumber Close, Malborough | £ 175,000 | BUY | 4 / 10 | 0.06 KM |
Nearby Properties
| Address | Price | Distance |
|---|---|---|
| 34 Cumber Close | £ 135,000 | 0.05 KM |
| 29 Cumber Close | £ 96,000 | 0.05 KM |
| 39 Cumber Close | £ 70,000 | 0.05 KM |
| 165 Cumber Close | £ 225,000 | 0.05 KM |
| 16 Cumber Close | £ 149,000 | 0.05 KM |