Elmvale Drive, Hutton - EXCEPTIONAL THROUGHOUT
By Ashley Leahy Estate Agents
£ 365,000
Reviews
3 out of 5 stars
Ashley Leahy Estate Agents says ..
A truly exceptional detached bungalow located in this highly regarded cul de sac in the village of Hutton on the Western fringes of Weston super Mare. This fabulous bungalow is an absolute pleasure to present to the market, having been comprehensively updated by our clients. The bungalow...
Property Oracle says ..
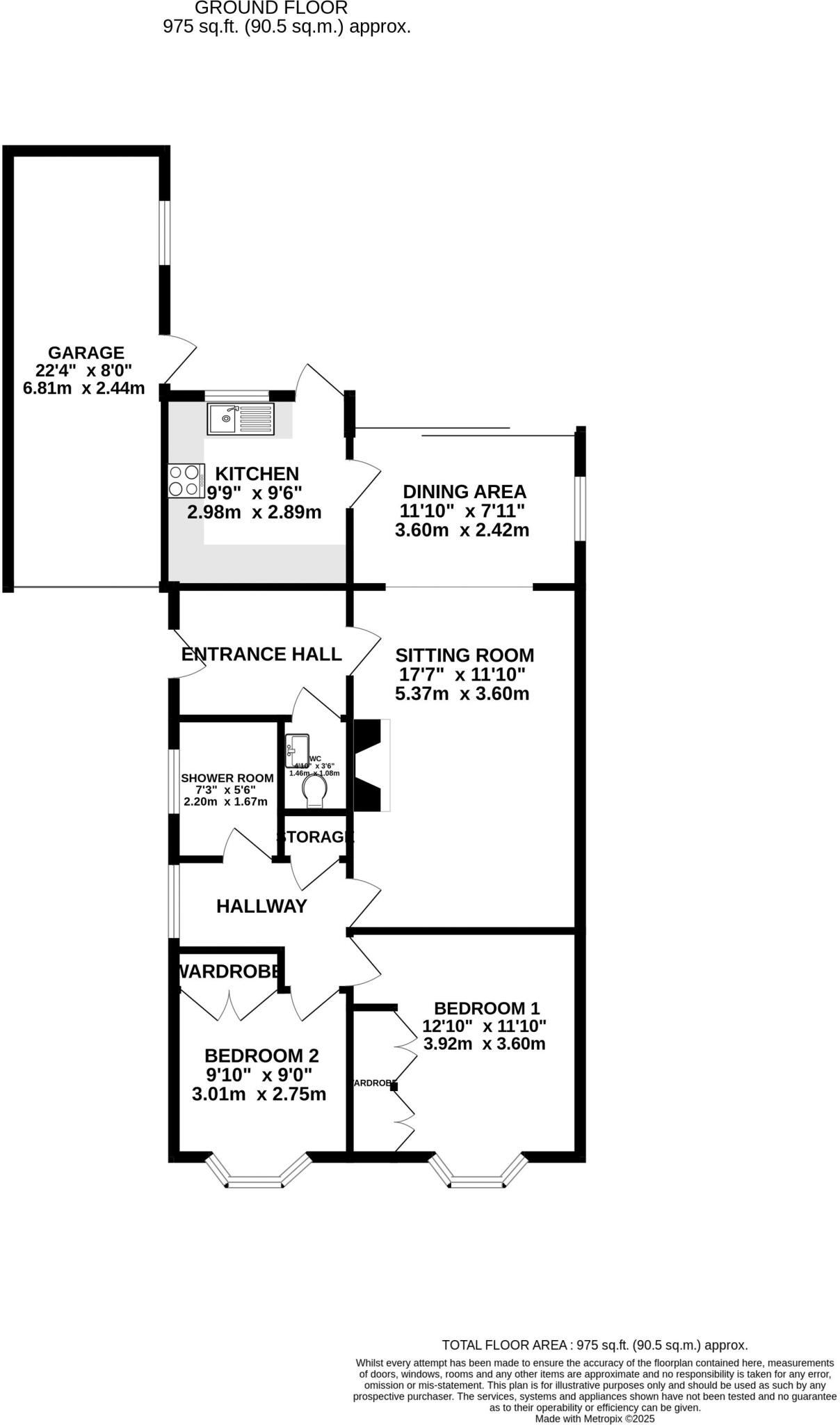
This is a well-presented, modern, detached bungalow in Hutton, North Somerset. The property benefits from a good-sized garden and is located close to local amenities, including a primary school and train station. The property is in good condition and would make an ideal home for a small family or retired couple. The property is listed at £365,000, which seems reasonable given its location, condition, and size. The average price per square foot in the area is £690, but this property is priced lower, possibly due to it being a 2-bedroom bungalow.
Therefore, we give this property 7 / 10. *Disclaimer: This is our option and does constitute a recommendation or financial advice. Do your own research. *
- Price
- 7
- Condition
- 8
- Location
- 7
- Land
- 7
- Bedrooms
- 2
- Bathrooms
- 1
- Sqft (est)
- 975.00
The heatmap indicates the level of crime in the area. The color of the heatmap indicates the crime severity and recency.
Metrics Year-on-Year
- Average area value
- 881,250.00 £Increased by 10.74 %
- Est sale value
- 672,750.00 £Increased by 54.71 %
- Average area rental value
- 1,300.00 £/moDecreased by 43.36 %
- Est letting value
- 975.00 £/moUnchanged by 0.00 %
- Est rental Yield
- 1.77 %Decreased by 48.84 %
- Crime Rate
- 10.00 %Unchanged by 0.00 %
Agent Activity
Ashley Leahy Estate Agents created the listing.
Nearby Schools
| Name | Type | Ofsted | Distance |
|---|---|---|---|
| Hutton Church Of England Primary School | Academy Converter | 0.69 KM | |
| Locking Primary School | Academy Converter | 1.88 KM | |
| Winterstoke Hundred Academy | Free Schools | 1.95 KM | |
| Parklands Educate Together Primary | Free Schools | 2.19 KM | |
| Haywood Village Academy | Academy Sponsor Led | Outstanding | 2.82 KM |
Images
Nearby Streets
| Name | Average Price | Average Sqft | Distance |
|---|---|---|---|
| Windmill Hill | £ 0 | 0 | 0.00 KM |
| Elmhurst Road | £ 0 | 0 | 0.00 KM |
| The Bury | £ 699,950 | 0 | 0.00 KM |
| Ashfield Grove | £ 0 | 0 | 0.00 KM |
| Maxwell Road | £ 0 | 0 | 0.00 KM |
Nearby Transport
| Name | NLC | TLC | Distance |
|---|---|---|---|
| Weston Milton | 3388 | WNM | 3.11 KM |
| Worle | 3390 | WOR | 3.89 KM |
| Weston-Super-Mare | 3391 | WSM | 5.53 KM |
Nearby Listings
| Address | Price | Type | Score | Distance |
|---|---|---|---|---|
| Elmvale Drive, Hutton - EXCEPTIONAL THROUGHOUT | £ 365,000 | BUY | 7 / 10 | 0.00 KM |
| Elmvale Drive, Hutton, Weston-super-Mare | £ 320,000 | BUY | 6 / 10 | 0.05 KM |
| Elmvale Drive, Hutton | £ 300,000 | BUY | 6 / 10 | 0.06 KM |
| Elmvale Drive, Hutton, Weston-super-Mare, North Somerset, BS24 | £ 300,000 | BUY | 6 / 10 | 0.09 KM |
| Elmvale Drive, Hutton, Weston-Super-Mare, BS24 | £ 330,000 | BUY | Unknown | 0.10 KM |
Nearby Properties
| Address | Price | Distance |
|---|---|---|
| 4 Longleaze Gardens | £ 259,500 | 0.04 KM |
| 1 Longleaze Gardens | £ 255,000 | 0.04 KM |
| 3 Longleaze Gardens | £ 182,000 | 0.04 KM |
| 19 Elmvale Drive | £ 190,000 | 0.05 KM |
| 26 Elmvale Drive | £ 295,000 | 0.05 KM |