JO
Sterling Avenue, Edgware, HA8
By Joseph Scott
£ 350,000
Reviews
2 out of 5 stars
Joseph Scott says ..
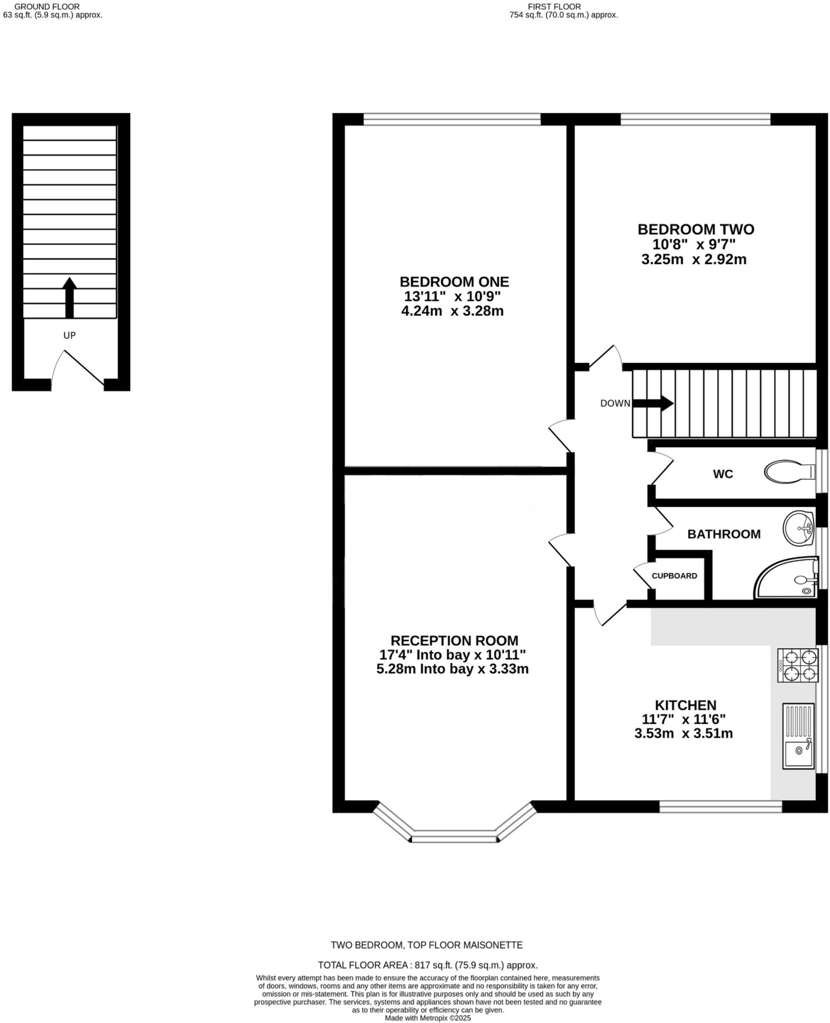
Tucked away on a quiet residential street in the ever-popular Stonegrove area of Edgware, this delightful two-bedroom first floor maisonette offers a rare blend of space, character, and practicality.
Property Oracle says ..
Therefore, we give this property 5 / 10. *Disclaimer: This is our option and does constitute a recommendation or financial advice. Do your own research. *
- Price
- 4
- Condition
- 4
- Location
- 7
- Land
- 7
- Bedrooms
- 2
- Bathrooms
- 1
- Sqft (est)
- 573.00
The heatmap indicates the level of crime in the area. The color of the heatmap indicates the crime severity and recency.
Metrics Year-on-Year
- Average area value
- 523,881.00 £Decreased by 13.55 %
- Est sale value
- 316,869.00 £Increased by 12.86 %
- Average area rental value
- 1,887.00 £/moDecreased by 11.95 %
- Est letting value
- 573.00 £/moUnchanged by 0.00 %
- Est rental Yield
- 4.32 %Increased by 1.89 %
- Crime Rate
- 2.00 %Unchanged by 0.00 %
from 606,004.00 £
from 280,770.00 £
from 2,143.00 £/mo
from 573.00 £/mo
from 4.24 %
from 2.00 %
Agent Activity
Joseph Scott created the listing.
Nearby Schools
| Name | Type | Ofsted | Distance |
|---|---|---|---|
| London Academy | Academy Sponsor Led | Good | 0.68 KM |
| Tashbar Of Edgware | Other Independent School | Inadequate | 0.87 KM |
| Edgware Jewish Girls - Beis Chinuch | Other Independent School | Good | 0.95 KM |
| Holland House School | Other Independent School | 0.96 KM | |
| Beit Shvidler Primary School | Voluntary Aided School | Good | 1.24 KM |
Images
Nearby Streets
| Name | Average Price | Average Sqft | Distance |
|---|---|---|---|
| Barnes Close | £ 675,000 | 0 | 0.00 KM |
| Savoy Close | £ 0 | 0 | 0.00 KM |
| Princes Close | £ 0 | 0 | 0.00 KM |
| Crossgate | £ 0 | 0 | 0.00 KM |
| Stonegrove Court | £ 0 | 0 | 0.00 KM |
Nearby Transport
| Name | NLC | TLC | Distance |
|---|---|---|---|
| Elstree And Borehamwood | 1542 | ELS | 3.61 KM |
| Mill Hill Broadway | 1527 | MIL | 3.78 KM |
| Kenton | 1399 | KNT | 5.77 KM |
| South Kenton | 1453 | SOK | 6.32 KM |
| Harrow And Wealdstone | 1397 | HRW | 6.58 KM |
Nearby Listings
| Address | Price | Type | Score | Distance |
|---|---|---|---|---|
| Sterling Avenue, Edgware, HA8 | £ 350,000 | BUY | 5 / 10 | 0.00 KM |
| Glendale Avenue, Edgware, HA8 | £ 945,000 | BUY | 7 / 10 | 0.07 KM |
| Sterling Avenue, Edgware, HA8 | £ 360,000 | BUY | 7 / 10 | 0.09 KM |
| Hillside Gardens, Edgware | £ 810,000 | BUY | 6 / 10 | 0.11 KM |
| Hillside Gardens, Edgware, HA8 | £ 675,000 | BUY | Unknown | 0.14 KM |
Nearby Properties
| Address | Price | Distance |
|---|---|---|
| 67 Glendale Avenue | £ 570,000 | 0.13 KM |
| 37 Glendale Avenue | £ 162,500 | 0.13 KM |
| 57 Glendale Avenue | £ 492,250 | 0.13 KM |
| 77b Glendale Avenue | £ 760,000 | 0.13 KM |
| 49 Glendale Avenue | £ 474,950 | 0.13 KM |